New Homes » Kyushu » Fukuoka Prefecture » Kasuya District Shime
 
| | Kasuya-gun, Fukuoka Shime 福岡県糟屋郡志免町 |
| Nishitetsu "Sakuragaoka third" walk 4 minutes 西鉄バス「桜丘第三」歩4分 |
| ☆ 1 Building ・ Building 2 is already completed. You can see at any time! ☆ Day ・ Good view ☆ Development subdivision in ◆ Please feel free to send free dial 0800-603-2314 ☆1号棟・2号棟は完成済みです。いつでもご覧頂けます!☆日当り・眺望良好☆開発分譲地内◆フリーダイアル0800-603-2314までお気軽にどうぞ |
| ◆ Many Sumo non-listed property is also being published at our HP, Come please visit! ◇ customers who thought that scary likely to be hard sell to go to the customer ◇ real estate agent that borrowing of the mortgage are wondering whether anxiety can, Region if our staff "good of the people" is the NO.1! ◇ While the request of sale, Quite the customer that does not sell in the amount of hope ~ Please consult any worries Plenty of real estate, Peace of mind ・ It boasts a secure transactions! ~ Please feel free to send free dial 0800-603-2314 ◆弊社HPにてスーモ非掲載物件も多数公開中、是非ご覧ください!◇住宅ローンの借り入れが出来るか不安に思っているお客様◇不動産屋に行くと押し売りされそうで怖いと思っているお客様、弊社スタッフ『人の良さ』なら地域NO.1です!◇売却の依頼をしているが、なかなか希望の金額で売れないというお客様 ~ 不動産のことならどんなお悩みでもご相談ください、安心・安全な取引が自慢です! ~ フリーダイアル0800-603-2314までお気軽にどうぞ |
Features pickup 特徴ピックアップ | | Parking two Allowed / Land 50 square meters or more / Energy-saving water heaters / System kitchen / Bathroom Dryer / Japanese-style room / Washbasin with shower / Toilet 2 places / Bathroom 1 tsubo or more / 2-story / Warm water washing toilet seat / Underfloor Storage / TV monitor interphone / Water filter 駐車2台可 /土地50坪以上 /省エネ給湯器 /システムキッチン /浴室乾燥機 /和室 /シャワー付洗面台 /トイレ2ヶ所 /浴室1坪以上 /2階建 /温水洗浄便座 /床下収納 /TVモニタ付インターホン /浄水器 | Price 価格 | | 22,800,000 yen ~ 24,800,000 yen 2280万円 ~ 2480万円 | Floor plan 間取り | | 4LDK 4LDK | Units sold 販売戸数 | | 3 units 3戸 | Total units 総戸数 | | 3 units 3戸 | Land area 土地面積 | | 184.41 sq m ~ 184.56 sq m (55.78 tsubo ~ 55.82 square meters) 184.41m2 ~ 184.56m2(55.78坪 ~ 55.82坪) | Building area 建物面積 | | 93.96 sq m ~ 98.01 sq m (28.42 tsubo ~ 29.64 square meters) 93.96m2 ~ 98.01m2(28.42坪 ~ 29.64坪) | Completion date 完成時期(築年月) | | December 2013 schedule 2013年12月予定 | Address 住所 | | Kasuya-gun, Fukuoka Shime Oaza Yoshihara 894 No. 福岡県糟屋郡志免町大字吉原894番 | Traffic 交通 | | Nishitetsu "Sakuragaoka third" walk 4 minutes 西鉄バス「桜丘第三」歩4分 | Related links 関連リンク | | [Related Sites of this company] 【この会社の関連サイト】 | Person in charge 担当者より | | Rep FP Chiba Taro Age: 30 Daigyokai Experience: 6 years Nice to meet you. My name is Chiba Sawara shop. Customers As you said, "you were good in charge.", Since we support the My Home Purchase with full force, Anything please consult. 担当者FP千葉 太郎年齢:30代業界経験:6年はじめまして。早良店の千葉と申します。お客様に「あなたが担当で良かった」と言っていただけるよう、マイホーム購入を全力でサポートいたしますので、何でもご相談ください。 | Contact お問い合せ先 | | TEL: 0800-603-2314 [Toll free] mobile phone ・ Also available from PHS Caller ID is not notified Please contact the "saw SUUMO (Sumo)" If it does not lead, If the real estate company TEL:0800-603-2314【通話料無料】携帯電話・PHSからもご利用いただけます 発信者番号は通知されません 「SUUMO(スーモ)を見た」と問い合わせください つながらない方、不動産会社の方は
| Building coverage, floor area ratio 建ぺい率・容積率 | | Building coverage 40%, Volume of 60% 建ぺい率40%、容積率60% | Time residents 入居時期 | | Consultation 相談 | Land of the right form 土地の権利形態 | | Ownership 所有権 | Structure and method of construction 構造・工法 | | Wooden 2-story 木造2階建 | Use district 用途地域 | | One low-rise 1種低層 | Overview and notices その他概要・特記事項 | | Contact: Chiba Taro, Building confirmation number: No. H25SHC114301, No. H25SHC114302, No. H25SHC114313 担当者:千葉 太郎、建築確認番号:第H25SHC114301号、第H25SHC114302号、第H25SHC114313号 | Company profile 会社概要 | | <Mediation> Minister of Land, Infrastructure and Transport (2) No. 007017 (Corporation) All Japan Real Estate Association (One company) Kyushu Real Estate Fair Trade Council member (Ltd.) House Freedom Spanish mackerel shop Yubinbango814-0022 Fukuoka Sawara KuHara 1-39-19 <仲介>国土交通大臣(2)第007017号(公社)全日本不動産協会会員 (一社)九州不動産公正取引協議会加盟(株)ハウスフリーダム早良店〒814-0022 福岡県福岡市早良区原1-39-19 |
Same specifications photos (appearance)同仕様写真(外観)  ☆ Same specifications appearance ☆
☆同仕様外観☆
 ☆ Same specifications appearance ☆
☆同仕様外観☆
Same specifications photos (living)同仕様写真(リビング)  ☆ Same specifications living ☆
☆同仕様リビング☆
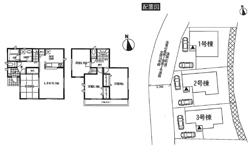
Floor plan間取り図  (1 Building), Price 24,800,000 yen, 4LDK, Land area 184.41 sq m , Building area 98.01 sq m
(1号棟)、価格2480万円、4LDK、土地面積184.41m2、建物面積98.01m2
Same specifications photo (bathroom)同仕様写真(浴室)  ☆ Same specification bathroom ☆
☆同仕様浴室☆
Same specifications photo (kitchen)同仕様写真(キッチン)  ☆ Same specification kitchen ☆
☆同仕様キッチン☆
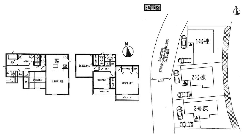
Floor plan間取り図  (Building 2), Price 23.8 million yen, 4LDK, Land area 184.41 sq m , Building area 97.2 sq m
(2号棟)、価格2380万円、4LDK、土地面積184.41m2、建物面積97.2m2
 (3 Building), Price 22,800,000 yen, 4LDK, Land area 184.56 sq m , Building area 93.96 sq m
(3号棟)、価格2280万円、4LDK、土地面積184.56m2、建物面積93.96m2
Location
|