New Homes » Kyushu » Fukuoka Prefecture » Kasuya District Umi-machi


Kasuya-gun, Fukuoka Umi-machi
Nishitetsu "upper Umi entrance" walk 7 minutes
Walk up to Umi park 4 minutes. Umi Park Hills birth of all 26 compartments in elementary and junior high schools within walking distance. ■ Long-term high-quality housing the Ministry of Land, Infrastructure and Transport certification ■ Energy-saving top-runner standard conformity
Local guide map
Local guide map
Features pickup
Long-term high-quality housing / Pre-ground survey / Land 50 square meters or more / Facing south / System kitchen / Bathroom Dryer / All room storage / LDK15 tatami mats or more / Around traffic fewer / Japanese-style room / Shaping land / Face-to-face kitchen / Toilet 2 places / 2-story / South balcony / Zenshitsuminami direction / Warm water washing toilet seat / Nantei / Underfloor Storage / The window in the bathroom / IH cooking heater / Walk-in closet / Living stairs / All-electric
Property name
Nishitetsu Sunny Villa Umi Park Hills Phase 1, Second stage
Price
26,900,000 yen ~ 30.5 million yen
Floor plan
4LDK
Units sold
7 units
Total units
26 units
Land area
201.81 sq m ~ 219.28 sq m
Building area
99.36 sq m ~ 111.78 sq m
Driveway burden-road
Road width: 6m, Asphaltic pavement
Completion date
2013 in late November
Address
Kasuya-gun, Fukuoka Umi-machi Myojin hill 1
Traffic
Nishitetsu "upper Umi entrance" walk 7 minutes
Related links
[Related Sites of this company]
Contact
Nishi-Nippon Railroad Co., Ltd. Nishitetsu residence of gallery Onojo shop TEL: 0800-603-1235 [Toll free] mobile phone ・ Also available from PHS
Caller ID is not notified
Please contact the "saw SUUMO (Sumo)"
If it does not lead, If the real estate company
Sale schedule
Phase 1 minute Phase 2 minutes, Turnkey.
Building coverage, floor area ratio
Kenpei rate: 40%, Volume ratio: 60%
Time residents
Consultation
Land of the right form
Ownership
Structure and method of construction
Wooden 2 × 4 construction method slate 葺 2-story
Construction
Nishitetsu construction
Use district
One low-rise
Land category
Residential land
Other limitations
Setback Yes
Overview and notices
Building confirmation number: No. KJH13-02268-1 (2013 July 9, 2008)
Company profile
<Seller> Governor of Fukuoka Prefecture (2) No. 014,966 (one company) Real Estate Association (Corporation) metropolitan area real estate Fair Trade Council member Nishi-Nippon Railroad Co., Ltd. Nishitetsu residence of gallery Onojo shop Yubinbango816-0943 Fukuoka Prefecture Ōnojō Shirakihara 1-17-15


Local appearance photo

Local appearance photo. Local (10 May 2013) shooting No. 19 place
Local (10 May 2013) shooting No. 19 place

Local appearance photo. Local (11 May 2013) shooting No. 13 place
Local (11 May 2013) shooting No. 13 place

Local appearance photo. Local (11 May 2013) shooting No. 22 place Corner lot
Local (11 May 2013) shooting No. 22 place Corner lot

Living

Living. Indoor (10 May 2013) shooting No. 19 place
Indoor (10 May 2013) shooting No. 19 place

Kitchen

Kitchen. Indoor (10 May 2013) shooting No. 19 place
Indoor (10 May 2013) shooting No. 19 place

Bathroom

Bathroom. Indoor (10 May 2013) shooting No. 19 place
Indoor (10 May 2013) shooting No. 19 place

Power generation ・ Hot water equipment

Power generation ・ Hot water equipment. Solar panels can be installed in all residence (optional supported). Economic life will be started in the next generation eco.
Solar panels can be installed in all residence (optional supported). Economic life will be started in the next generation eco.

Power generation ・ Hot water equipment. Standard equipped Eco Cute in all-electric dwelling unit. Utility costs are also deals advanced equipment in the energy saving.
Standard equipped Eco Cute in all-electric dwelling unit. Utility costs are also deals advanced equipment in the energy saving.

Construction ・ Construction method ・ specification

Construction ・ Construction method ・ specification. Haisuji diameter 13 mm, At intervals of 150 mm, Thickness 150 mm. Differential settlement is unlikely to occur because the load is applied to the whole basis, It has very good moisture resistance.
Haisuji diameter 13 mm, At intervals of 150 mm, Thickness 150 mm. Differential settlement is unlikely to occur because the load is applied to the whole basis, It has very good moisture resistance.

Construction ・ Construction method ・ specification. The plumbing is, We are using the excellent polybutene pipe corrosion resistance. Without that red rust occurs such as a metal tube, It is hygienic and safety. Also, Excellent heat resistance, It has become a design that takes into account the long-term life.
The plumbing is, We are using the excellent polybutene pipe corrosion resistance. Without that red rust occurs such as a metal tube, It is hygienic and safety. Also, Excellent heat resistance, It has become a design that takes into account the long-term life.

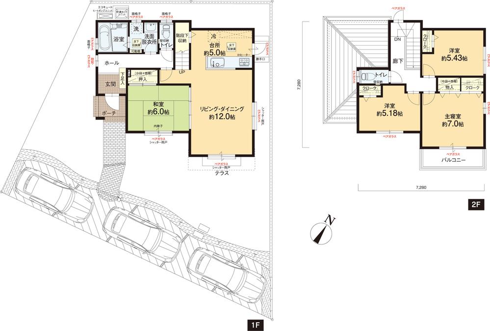
Floor plan

Floor plan. 820m until Umi Municipal SakuraGen Elementary School
820m until Umi Municipal SakuraGen Elementary School

Floor plan. (No. 20 locations), Price 28.5 million yen, 4LDK, Land area 201.81 sq m , Building area 100 sq m
(No. 20 locations), Price 28.5 million yen, 4LDK, Land area 201.81 sq m , Building area 100 sq m

Primary school

Primary school. 820m until Umi Municipal SakuraGen Elementary School
820m until Umi Municipal SakuraGen Elementary School

Junior high school

Junior high school. Umi Municipal Umi until junior high school 1080m
Umi Municipal Umi until junior high school 1080m

Supermarket

Supermarket. Nishitetsu 800m until the store (Umi store)
Nishitetsu 800m until the store (Umi store)

Other Equipment

Other Equipment. Excellent thermal insulation, Well the efficiency of heating and cooling, Utility costs burden is also reduced Low-E double-glazing. Unpleasant condensation is also less comfortable
Excellent thermal insulation, Well the efficiency of heating and cooling, Utility costs burden is also reduced Low-E double-glazing. Unpleasant condensation is also less comfortable

Local guide map
Local guide map

Other Equipment. One place of the external outlet installed in the outer wall, It can be changed in the future 200V (completion time of 100V). It is safe even if the Kaikaeru the private car, such as the electric car.
One place of the external outlet installed in the outer wall, It can be changed in the future 200V (completion time of 100V). It is safe even if the Kaikaeru the private car, such as the electric car.

Other Equipment
Other Equipment

The entire compartment Figure
The entire compartment Figure

Station

station. Nishitetsu 560m until the "upper Umi entrance" bus stop
Nishitetsu 560m until the "upper Umi entrance" bus stop

station. 860m until JR Kashii Line "Umi" station
860m until JR Kashii Line "Umi" station

Hospital

Hospital. 450m until Okabe hospital
450m until Okabe hospital

Post office

post office. Umi Hon 1100m to the post office
Umi Hon 1100m to the post office

Kindergarten ・ Nursery

kindergarten ・ Nursery. Umi Hachiman Shrine to nursery school 930m
Umi Hachiman Shrine to nursery school 930m



Location