New Homes » Kyushu » Fukuoka Prefecture » Kitakyushu Kokuraminami District
 
| | Kitakyushu, Fukuoka Prefecture Kokuraminami District 福岡県北九州市小倉南区 |
| JR Nippō Main Line "Shimosone" walk 3 minutes JR日豊本線「下曽根」歩3分 |
| Building up to 20-year warranty for peace of mind (paid) Flat 35S corresponding station ・ Supermarket ・ Yang per well in a breeze All rooms are two-sided lighting at a convenience store within walking distance 安心の建物最長20年保証(有償)フラット35S対応駅・スーパー・コンビニ徒歩圏内で楽々全室2面採光で陽当り良好 |
| Many in our HP published in http / / illhousing3180.com / ■ Solid foundation ■ Basic packing method ■ Wall ventilation method ■ Barrier-free ■ Anti-termite treatment ■ Low formalin ■ Non-Hyo Lum Al-Dade ■ 24-hour ventilation system ■ All pair glass ■ 1.2 floor heated toilet seat ■ Entrance de heat-resistant door ■ Stairs ・ toilet ・ Bathroom handrail ■ 1 pyeong type bathroom ■ Underfloor Storage ■ Outside faucet ■ 1F room window shutter ■ Intercom with TV monitor ■ Faucet integrated water purifier ■ Eco Jaws 弊社HPにて多数公開中http://illhousing3180.com/■ベタ基礎■基礎パッキン工法■壁通気工法■バリアフリー■防蟻処理■低ホルマリン■ノンヒョルムアルデイド■24時間換気システム■オールペアガラス■1.2階温水便座■玄関ド耐熱ドア■階段・トイレ・浴室手摺り■1坪タイプバスルーム■床下収納■外水栓■1F居室窓シャッター■TVモニター付インターホン■蛇口一体型浄水器■エコジョーズ |
Features pickup 特徴ピックアップ | | Design house performance with evaluation / Measures to conserve energy / Corresponding to the flat-35S / Parking two Allowed / 2 along the line more accessible / Fiscal year Available / Energy-saving water heaters / Super close / It is close to the city / Facing south / System kitchen / Bathroom Dryer / Yang per good / All room storage / A quiet residential area / LDK15 tatami mats or more / Japanese-style room / Shaping land / garden / Washbasin with shower / Face-to-face kitchen / Barrier-free / Toilet 2 places / Bathroom 1 tsubo or more / 2-story / Double-glazing / Warm water washing toilet seat / Nantei / Underfloor Storage / The window in the bathroom / TV monitor interphone / High-function toilet / Mu front building / Water filter / City gas / All rooms are two-sided lighting / Flat terrain 設計住宅性能評価付 /省エネルギー対策 /フラット35Sに対応 /駐車2台可 /2沿線以上利用可 /年度内入居可 /省エネ給湯器 /スーパーが近い /市街地が近い /南向き /システムキッチン /浴室乾燥機 /陽当り良好 /全居室収納 /閑静な住宅地 /LDK15畳以上 /和室 /整形地 /庭 /シャワー付洗面台 /対面式キッチン /バリアフリー /トイレ2ヶ所 /浴室1坪以上 /2階建 /複層ガラス /温水洗浄便座 /南庭 /床下収納 /浴室に窓 /TVモニタ付インターホン /高機能トイレ /前面棟無 /浄水器 /都市ガス /全室2面採光 /平坦地 | Event information イベント情報 | | Local tours (please make a reservation beforehand) schedule / During the public time / 10:00 ~ 19:00 現地見学会(事前に必ず予約してください)日程/公開中時間/10:00 ~ 19:00 | Price 価格 | | 26,800,000 yen 2680万円 | Floor plan 間取り | | 4LDK 4LDK | Units sold 販売戸数 | | 1 units 1戸 | Land area 土地面積 | | 156.85 sq m (registration) 156.85m2(登記) | Building area 建物面積 | | 96.05 sq m (registration) 96.05m2(登記) | Driveway burden-road 私道負担・道路 | | Nothing, North 3.9m width 無、北3.9m幅 | Completion date 完成時期(築年月) | | January 2014 2014年1月 | Address 住所 | | Kitakyushu, Fukuoka Prefecture Kokuraminami District Shimosone 1 福岡県北九州市小倉南区下曽根1 | Traffic 交通 | | JR Nippō Main Line "Shimosone" walk 3 minutes Nishitetsu "Shimosone Station" walk 2 minutes JR日豊本線「下曽根」歩3分 西鉄バス「下曽根駅前」歩2分 | Related links 関連リンク | | [Related Sites of this company] 【この会社の関連サイト】 | Person in charge 担当者より | | Rep Hayafune Yusuke Age: 20 Daigyokai Experience: 7 years * is in unpublished Property Listed at our website mediation of new ready-built ・ It has been a professional in charge of buying and selling. To meet the customer's needs and we will help, "Dream of My Home" !! 担当者早船 雄介年齢:20代業界経験:7年*弊社ホームページにて未公開物件掲載中です新築建売の仲介・売買の専門担当をさせて頂いております。お客様のニーズにお応えし『夢のマイホーム』のお手伝いをさせて頂きます!! | Contact お問い合せ先 | | TEL: 093-614-3180 Please inquire as "saw SUUMO (Sumo)" TEL:093-614-3180「SUUMO(スーモ)を見た」と問い合わせください | Building coverage, floor area ratio 建ぺい率・容積率 | | 80% ・ 200% 80%・200% | Time residents 入居時期 | | February 2014 schedule 2014年2月予定 | Land of the right form 土地の権利形態 | | Ownership 所有権 | Structure and method of construction 構造・工法 | | Wooden 2-story (framing method) 木造2階建(軸組工法) | Use district 用途地域 | | Residential 近隣商業 | Overview and notices その他概要・特記事項 | | Contact: Hayafune Yusuke, Facilities: Public Water Supply, This sewage, City gas, Building confirmation number: 13-03361-1, Parking: car space 担当者:早船 雄介、設備:公営水道、本下水、都市ガス、建築確認番号:13-03361-1、駐車場:カースペース | Company profile 会社概要 | | <Mediation> Governor of Fukuoka Prefecture (3) No. 013975 (Corporation), Fukuoka Prefecture Building Lots and Buildings Transaction Business Association (One company) Kyushu Real Estate Fair Trade Council member aisle housing Yubinbango807-0077 Kitakyushu, Fukuoka Prefecture Yahatanishi-ku Okita 2-4-33 <仲介>福岡県知事(3)第013975号(公社)福岡県宅地建物取引業協会会員 (一社)九州不動産公正取引協議会加盟アイルハウジング〒807-0077 福岡県北九州市八幡西区沖田2-4-33 |
 Living
リビング
Kitchenキッチン  Since the face-to-face is the kitchen, Peace of mind can have small children
対面キッチンですので、小さいお子様がいても安心
Bathroom浴室  Because it is a tub in the bathroom dryer Hitotsubo type, You can leisurely bath
浴室乾燥機完備一坪タイプの浴槽ですので、ユッタリ入浴できますよ
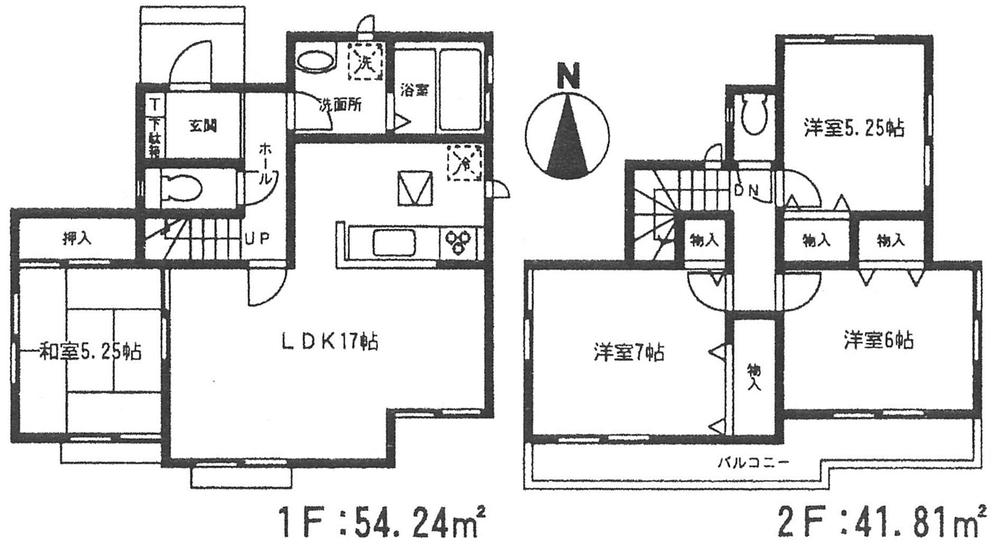
Floor plan間取り図  26,800,000 yen, 4LDK, Land area 156.85 sq m , Building area 96.05 sq m
2680万円、4LDK、土地面積156.85m2、建物面積96.05m2
 Rendering (appearance)
完成予想図(外観)
Kitchenキッチン  Water purifier equipped
浄水器完備
Non-living roomリビング以外の居室  Yang per good on the south-facing Japanese-style room
南向きの和室で陽当り良好
 Entrance
玄関
 Wash basin, toilet
洗面台・洗面所
Receipt収納  Equipped each room storage
各居室収納完備
 Toilet
トイレ
Shopping centreショッピングセンター  THE Until MALL Kokura 533m
THE MALL小倉まで533m
 Other introspection
その他内観
Otherその他  Soundproof ・ Peasasshi used with excellent thermal insulation
防音・断熱に優れたペアサッシ使用
Kitchenキッチン  Convenient 3-burner stove equipped
便利な3口コンロ完備
 Non-living room
リビング以外の居室
Wash basin, toilet洗面台・洗面所  Shampoo dresser equipped
シャンプードレッサー完備
Supermarketスーパー  Until Marukyo Corporation Sone shop 873m
マルキョウ曽根店まで873m
Otherその他  Worry away on recording function with intercom equipped
録画機能付きインターホン完備で留守も安心
Convenience storeコンビニ  Seven-Eleven 387m to Kokura Sone shop
セブンイレブン小倉曽根店まで387m
Location
|