New Homes » Kyushu » Fukuoka Prefecture » Kitakyushu Kokuraminami District
 
| | Kitakyushu, Fukuoka Prefecture Kokuraminami District 福岡県北九州市小倉南区 |
| JR Nippō Main Line "Shimosone" walk 3 minutes JR日豊本線「下曽根」歩3分 |
| JR Shimosone Station 3-minute walk of a good location shopping ・ Commute ・ It is very convenient to go to school JR下曽根駅 徒歩3分の好立地買い物・通勤・通学に非常に便利です |
| Many in our HP published in http / / illhousing3180.com / ■ Solid foundation ■ Basic packing method ■ Wall ventilation method ■ Barrier-free ■ Anti-termite treatment ■ Low formalin ■ Non-Hyo Lum Al-Dade ■ 24-hour ventilation system ■ All pair glass ■ 1.2 floor heated toilet seat ■ Entrance de heat-resistant door ■ Stairs ・ toilet ・ Bathroom handrail ■ 1 pyeong type bathroom ■ Underfloor Storage ■ Outside faucet ■ 1F room window shutter ■ Intercom with TV monitor ■ Faucet integrated water purifier ■ Eco Jaws 弊社HPにて多数公開中http://illhousing3180.com/■ベタ基礎■基礎パッキン工法■壁通気工法■バリアフリー■防蟻処理■低ホルマリン■ノンヒョルムアルデイド■24時間換気システム■オールペアガラス■1.2階温水便座■玄関ド耐熱ドア■階段・トイレ・浴室手摺り■1坪タイプバスルーム■床下収納■外水栓■1F居室窓シャッター■TVモニター付インターホン■蛇口一体型浄水器■エコジョーズ |
Features pickup 特徴ピックアップ | | Construction housing performance with evaluation / Design house performance with evaluation / Measures to conserve energy / Corresponding to the flat-35S / Pre-ground survey / Parking three or more possible / 2 along the line more accessible / Fiscal year Available / Energy-saving water heaters / Super close / It is close to the city / Facing south / System kitchen / Bathroom Dryer / Yang per good / All room storage / Flat to the station / A quiet residential area / LDK15 tatami mats or more / Japanese-style room / garden / Washbasin with shower / Face-to-face kitchen / Barrier-free / Toilet 2 places / Bathroom 1 tsubo or more / 2-story / Double-glazing / Warm water washing toilet seat / Nantei / Underfloor Storage / The window in the bathroom / TV monitor interphone / High-function toilet / Mu front building / All room 6 tatami mats or more / Water filter / City gas / All rooms are two-sided lighting / Flat terrain 建設住宅性能評価付 /設計住宅性能評価付 /省エネルギー対策 /フラット35Sに対応 /地盤調査済 /駐車3台以上可 /2沿線以上利用可 /年度内入居可 /省エネ給湯器 /スーパーが近い /市街地が近い /南向き /システムキッチン /浴室乾燥機 /陽当り良好 /全居室収納 /駅まで平坦 /閑静な住宅地 /LDK15畳以上 /和室 /庭 /シャワー付洗面台 /対面式キッチン /バリアフリー /トイレ2ヶ所 /浴室1坪以上 /2階建 /複層ガラス /温水洗浄便座 /南庭 /床下収納 /浴室に窓 /TVモニタ付インターホン /高機能トイレ /前面棟無 /全居室6畳以上 /浄水器 /都市ガス /全室2面採光 /平坦地 | Event information イベント情報 | | Local tours (please make a reservation beforehand) schedule / During the public time / 10:00 ~ 19:00 現地見学会(事前に必ず予約してください)日程/公開中時間/10:00 ~ 19:00 | Price 価格 | | 26,800,000 yen 2680万円 | Floor plan 間取り | | 4LDK 4LDK | Units sold 販売戸数 | | 1 units 1戸 | Land area 土地面積 | | 156.84 sq m (registration) 156.84m2(登記) | Building area 建物面積 | | 96.05 sq m (registration) 96.05m2(登記) | Driveway burden-road 私道負担・道路 | | Nothing, North 3.9m width 無、北3.9m幅 | Completion date 完成時期(築年月) | | January 2014 2014年1月 | Address 住所 | | Kitakyushu, Fukuoka Prefecture Kokuraminami District Shimosone 1 福岡県北九州市小倉南区下曽根1 | Traffic 交通 | | JR Nippō Main Line "Shimosone" walk 3 minutes Nishitetsu "Shimosone Station" walk 3 minutes JR日豊本線「下曽根」歩3分 西鉄バス「下曽根駅前」歩3分 | Related links 関連リンク | | [Related Sites of this company] 【この会社の関連サイト】 | Person in charge 担当者より | | Rep Hayafune Yusuke Age: 20 Daigyokai Experience: 7 years * is in unpublished Property Listed at our website mediation of new ready-built ・ It has been a professional in charge of buying and selling. To meet the customer's needs and we will help, "Dream of My Home" !! 担当者早船 雄介年齢:20代業界経験:7年*弊社ホームページにて未公開物件掲載中です新築建売の仲介・売買の専門担当をさせて頂いております。お客様のニーズにお応えし『夢のマイホーム』のお手伝いをさせて頂きます!! | Contact お問い合せ先 | | TEL: 093-614-3180 Please inquire as "saw SUUMO (Sumo)" TEL:093-614-3180「SUUMO(スーモ)を見た」と問い合わせください | Building coverage, floor area ratio 建ぺい率・容積率 | | 80% ・ 200% 80%・200% | Time residents 入居時期 | | February 2014 schedule 2014年2月予定 | Land of the right form 土地の権利形態 | | Ownership 所有権 | Structure and method of construction 構造・工法 | | Wooden 2-story (framing method) 木造2階建(軸組工法) | Use district 用途地域 | | Residential 近隣商業 | Overview and notices その他概要・特記事項 | | Contact: Hayafune Yusuke, Facilities: Public Water Supply, This sewage, City gas, Building confirmation number: KJH13-03360-1, Parking: car space 担当者:早船 雄介、設備:公営水道、本下水、都市ガス、建築確認番号:KJH13-03360-1、駐車場:カースペース | Company profile 会社概要 | | <Mediation> Governor of Fukuoka Prefecture (3) No. 013975 (Corporation), Fukuoka Prefecture Building Lots and Buildings Transaction Business Association (One company) Kyushu Real Estate Fair Trade Council member aisle housing Yubinbango807-0077 Kitakyushu, Fukuoka Prefecture Yahatanishi-ku Okita 2-4-33 <仲介>福岡県知事(3)第013975号(公社)福岡県宅地建物取引業協会会員 (一社)九州不動産公正取引協議会加盟アイルハウジング〒807-0077 福岡県北九州市八幡西区沖田2-4-33 |
Rendering (appearance)完成予想図(外観)  It was completed
完成しました
 Living
リビング
Kitchenキッチン  Since the face-to-face is the kitchen, Peace of mind can have small children
対面キッチンですので、小さいお子様がいても安心
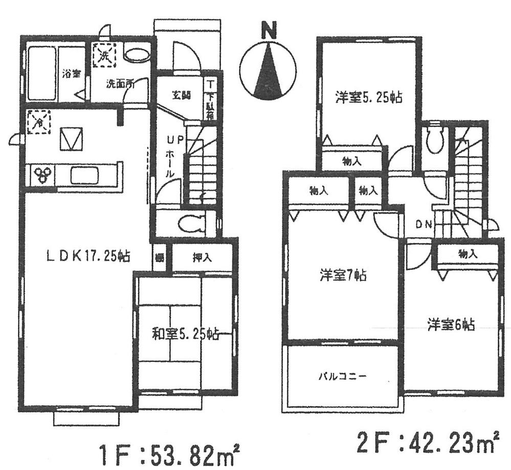
Floor plan間取り図  26,800,000 yen, 4LDK, Land area 156.84 sq m , Building area 96.05 sq m
2680万円、4LDK、土地面積156.84m2、建物面積96.05m2
Bathroom浴室  Because it is a tub in the bathroom dryer Hitotsubo type, You can leisurely bath
浴室乾燥機完備一坪タイプの浴槽ですので、ユッタリ入浴できますよ
Kitchenキッチン  Water purifier equipped
浄水器完備
Non-living roomリビング以外の居室  Yang per good on the south-facing Japanese-style room
南向きの和室で陽当り良好
 Entrance
玄関
 Wash basin, toilet
洗面台・洗面所
Receipt収納  Equipped each room storage
各居室収納完備
 Toilet
トイレ
Local photos, including front road前面道路含む現地写真  Pat sick house syndrome measures in the 24-hour ventilation system
24時間換気システムでシックハウス症候群対策もバッチリ
 Parking lot
駐車場
 Balcony
バルコニー
Convenience storeコンビニ  Seven-Eleven 247m to Kokura Sone shop
セブンイレブン小倉曽根店まで247m
 Other introspection
その他内観
Otherその他  Soundproof ・ Peasasshi used with excellent thermal insulation
防音・断熱に優れたペアサッシ使用
Kitchenキッチン  Convenient 3-burner stove equipped
便利な3口コンロ完備
 Non-living room
リビング以外の居室
Wash basin, toilet洗面台・洗面所  Shampoo dresser equipped
シャンプードレッサー完備
Otherその他  Worry away on recording function with intercom equipped
録画機能付きインターホン完備で留守も安心
Location
|