New Homes » Kyushu » Fukuoka Prefecture » Kitakyushu Moji-ku
 
| | Kitakyushu, Fukuoka Prefecture Moji-ku, 福岡県北九州市門司区 |
| JR Kagoshima Main Line "Komorie" walk 9 minutes JR鹿児島本線「小森江」歩9分 |
| ■ Scarce flat land in Moji-ku, [Artic Youngstown Komorie] ■ Finally, It became the final 1 compartment! ■ Prior to consumption tax hike, Please consider as soon as possible! ! ■門司区で希少な平坦地【アーティックスタウン小森江】■いよいよ、最終1区画となりました!■消費税増税前に、お早めにご検討下さい!! |
| ◆ The selling price is land ・ building ・ In inclusive your Niwadai ◆ We sell in the "No. 2 place" 25.3 million yen. ◆ Floor is 4LDK, Parking with two! ! ◆ ※ Recommended point ※ ● easy-to-use kitchen island ● water around the facility adopts Panasonic ● The appearance of the cube type ● 2-floor multi-purpose hall ● with floor heating of gas ◆販売価格は土地・建物・お庭代込みで ◆《2号地》2530万円で販売しております。 ◆間取りは4LDK、駐車場2台付き!! ◆※おすすめポイント※ ●使い勝手の良いアイランドキッチン ●水廻りの設備はパナソニックを採用 ●キューブ型の外観 ●2階多目的ホール ●ガスの床暖房付き |
Features pickup 特徴ピックアップ | | See the mountain / It is close to the city / Within 2km to the sea / Yang per good / Flat to the station / Siemens south road / A quiet residential area / Corner lot / Shaping land / City gas / Maintained sidewalk / Flat terrain 山が見える /市街地が近い /海まで2km以内 /陽当り良好 /駅まで平坦 /南側道路面す /閑静な住宅地 /角地 /整形地 /都市ガス /整備された歩道 /平坦地 | Event information イベント情報 | | Local tours (please visitors to direct local) schedule / January 18 (Saturday) ~ January 19 (Sunday) time / 10:00 ~ 18: 00 ● ○ New Year actual House tours ○ ● 2014 years in the "2-day", It will be held the real House tours that becomes the first of the New Year! ! Cool, modern design is characterized by the appearance, Wood deck Ya with a sense of openness, Depth 3 m spacious balcony of attractive. further, Warehouse that can be entered from the outside Ya, Becoming excellent storage capacity of sticking to housing, such as shoes closet. It will be the real House tours of limited two-day! ! Come to your reference of house building, Please visitors (* ^^ *) [Venue] Simple Life carboxymethyl Kitakyushu Moji-ku, carboxymethyl Shinmachi 3-chome No. 13 ※ The clerk will be induced in the field [Date and time] 2014 1 / 18 (Sat) ・ 19th) 10:00 ~ 17:00 If you have any questions, Please feel free to contact us at the following contacts. (Ltd.) Nakayashiki TEL 0120-154-784 現地見学会(直接現地へご来場ください)日程/1月18日(土曜日) ~ 1月19日(日曜日)時間/10:00 ~ 18:00●○新春実邸見学会○●2014年”2日間限定”で、新年第一号となる実邸見学会を開催いたします!!クールでモダンなデザインが特徴の外観に、開放感のあるウッドデッキや、奥行き3メートルの広々バルコニーが魅力的。さらに、外部から入ることのできる倉庫や、シューズクローゼットなど収納力抜群のこだわり住宅となっております。2日間限定の実邸見学会となります!!家造りのご参考に是非、ご来場くださいませ(*^^*)【会場】 シンプルライフ吉志 北九州市門司区吉志新町3丁目13番 ※現地で係員が誘導致します【日時】 2014年 1/18(土)・19(日) 10:00 ~ 17:00ご不明な点などございましたら、下記連絡先までお気軽にお問合せ下さい。 (株)なかやしき TEL: 0120-154-784 | Price 価格 | | 7,960,000 yen (including ready-built house prices (land ・ building ・ It included your Niwadai) [No. 2 place] 25,300,000 yen) 796万円(うち建売住宅価格(土地・建物・お庭代込み)【2号地】2530万円) | Building coverage, floor area ratio 建ぺい率・容積率 | | Building coverage 60%, Volume rate of 200% 建蔽率60%、容積率200% | Sales compartment 販売区画数 | | 1 compartment 1区画 | Total number of compartments 総区画数 | | 12 compartment 12区画 | Land area 土地面積 | | 157.5 sq m 157.5m2 | Driveway burden-road 私道負担・道路 | | Road: 5m width asphalt paving, Driveway burden: No 道路:5m幅アスファルト舗装、私道負担:無 | Land situation 土地状況 | | Vacant lot 更地 | Construction completion time 造成完了時期 | | 2013 March H25年3月 | Address 住所 | | Kitakyushu, Fukuoka Prefecture Moji-ku Komorie 2-32-2 福岡県北九州市門司区小森江2-32-2(地番) | Traffic 交通 | | JR Kagoshima Main Line "Komorie" walk 9 minutes Nishitetsu "Komorie" walk 2 minutes JR鹿児島本線「小森江」歩9分 西鉄バス「小森江」歩2分 | Contact お問い合せ先 | | (Ltd.) Nakayashiki Detached Division TEL: 0800-808-9724 [Toll free] mobile phone ・ Also available from PHS Caller ID is not notified Please contact the "saw SUUMO (Sumo)" If it does not lead, If the real estate company (株)なかやしき 戸建事業部TEL:0800-808-9724【通話料無料】携帯電話・PHSからもご利用いただけます 発信者番号は通知されません 「SUUMO(スーモ)を見た」と問い合わせください つながらない方、不動産会社の方は
| Land of the right form 土地の権利形態 | | Ownership 所有権 | Building condition 建築条件 | | With 付 | Time delivery 引き渡し時期 | | Immediate delivery allowed 即引渡し可 | Land category 地目 | | Residential land 宅地 | Use district 用途地域 | | Semi-industrial 準工業 | Overview and notices その他概要・特記事項 | | Facilities: Kyushu Electric Power, Public Water Supply, This sewage, City gas, Development permit number: Kitakyushu Ordinance Kent designated No. 24121 (24 October 19) 設備:九州電力、公営水道、本下水、都市ガス、開発許可番号:北九州市令建都指定第24121号(24年10月19日) | Company profile 会社概要 | | <Employer ・ Seller> Governor of Fukuoka Prefecture (1) No. 015684 (Corporation), Fukuoka Prefecture Building Lots and Buildings Transaction Business Association (One company) Kyushu Real Estate Fair Trade Council member (Ltd.) Nakayashiki Detached Division Yubinbango800-0027 Kitakyushu, Fukuoka Prefecture Moji-ku, Koganecho 3-22 <marketing alliance (agency)> Governor of Fukuoka Prefecture (5) Article 011728 <事業主・売主>福岡県知事(1)第015684号(公社)福岡県宅地建物取引業協会会員 (一社)九州不動産公正取引協議会加盟(株)なかやしき 戸建事業部〒800-0027 福岡県北九州市門司区黄金町3-22<販売提携(代理)>福岡県知事(5)第011728号(株)なかやしきホーム〒803-0845 福岡県北九州市小倉北区上到津2-3-9 |
Local land photo現地土地写真 ![Local land photo. [No. 2 place appearance Perth] Selling price 25,300,000 yen cube type stylish design!](/images/fukuoka/kitakyushushimoji/a6acef0088.jpg) [No. 2 place appearance Perth] Selling price 25,300,000 yen cube type stylish design!
【2号地外観パース】販売価格2530万円キューブ型のスタイリッシュなデザイン!
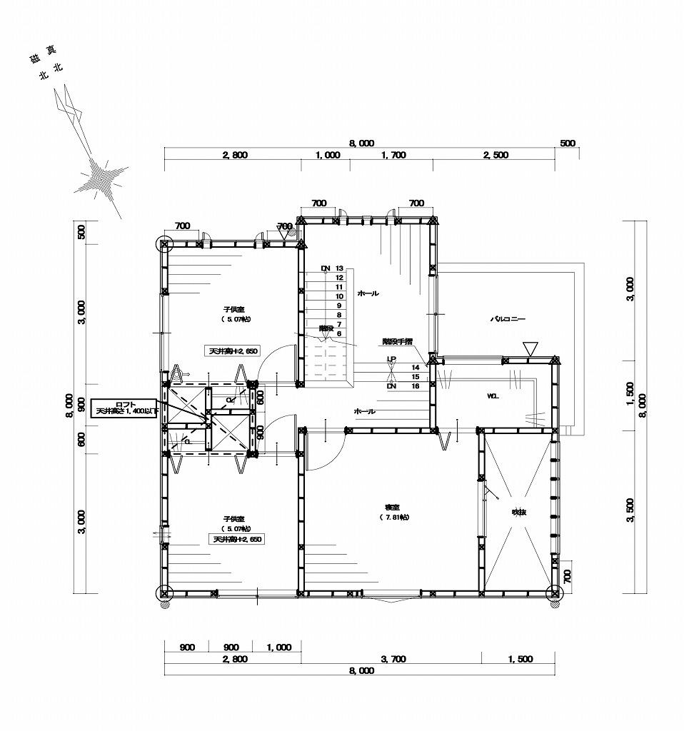
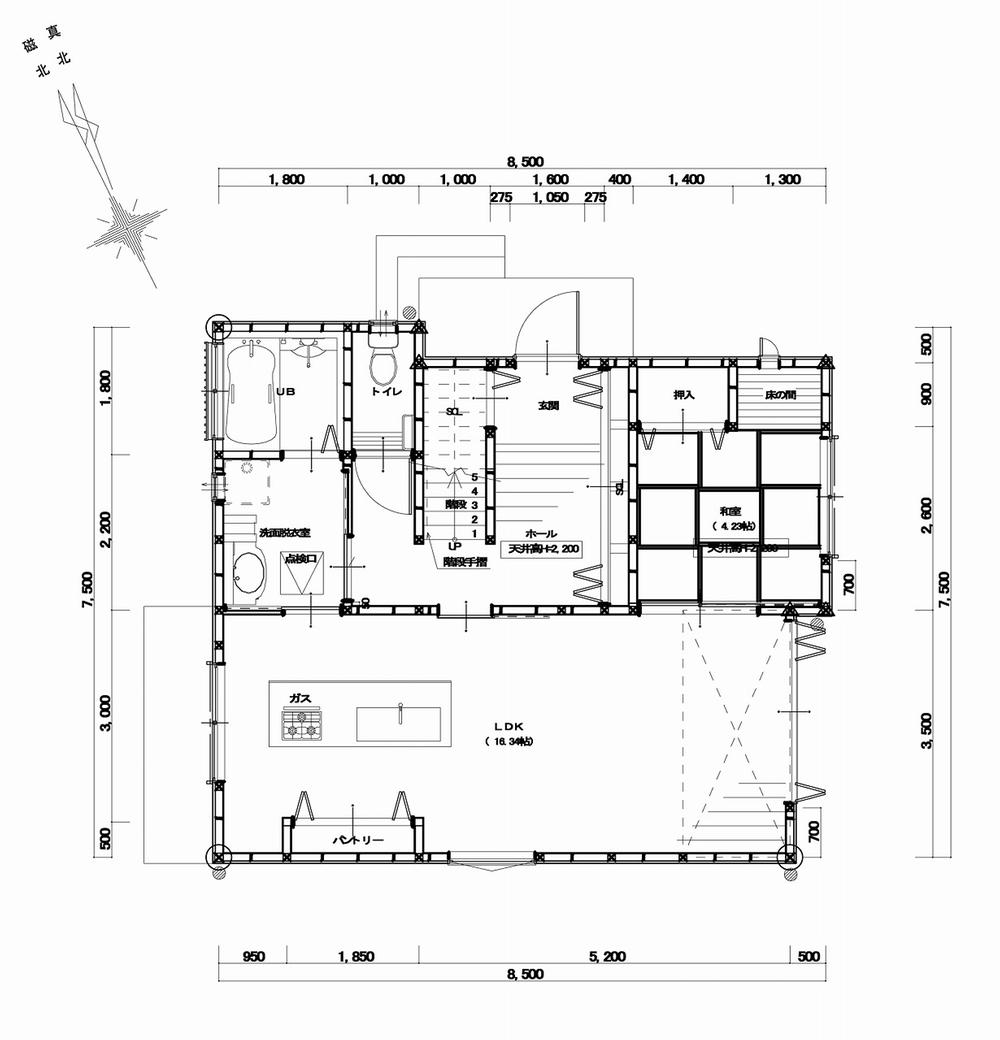
Local photos, including front road前面道路含む現地写真 ![Local photos, including front road. [Ready-built house ・ No. 2 place] 1-floor plan view * Stylish kitchen island * The living upper atrium * Easy-to-use good housekeeping flow line](/images/fukuoka/kitakyushushimoji/a6acef0078.jpg) [Ready-built house ・ No. 2 place] 1-floor plan view * Stylish kitchen island * The living upper atrium * Easy-to-use good housekeeping flow line
【建売住宅・2号地】1階平面図 *おしゃれなアイランドキッチン *リビング上部には吹き抜け *使い勝手の良い家事動線
Otherその他 ![Other. [Ready-built house ・ No. 2 place] 2-floor plan view * With loft rejoice even children in the nursery * Spacious Week-in closet in the bedroom * Multi-purpose hall](/images/fukuoka/kitakyushushimoji/a6acef0075.jpg) [Ready-built house ・ No. 2 place] 2-floor plan view * With loft rejoice even children in the nursery * Spacious Week-in closet in the bedroom * Multi-purpose hall
【建売住宅・2号地】2階平面図 *子供部屋にはお子様も喜ぶロフト付き *寝室には広々したウィークインクローゼット *多目的ホール
 It is a subdivision of all 12 compartments. The final 1 buildings, We sell the No. 2 place.
全12区画の分譲地です。 最終1棟、2号地を販売しております。
Building plan example (Perth ・ Introspection)建物プラン例(パース・内観)  Easy-to-use kitchen island (Our example of construction)
使い勝手の良いアイランドキッチン (弊社施工例)
 Entrance will have front becomes the storage.
玄関は前面が収納になっております。
Local land photo現地土地写真  It is the local skyline! !
現地の街並みです!!
Building plan example (Perth ・ Introspection)建物プラン例(パース・内観)  Japanese-style room is in contact with the LDK.
和室はLDKに接しております。
 The LDK has a blow-by, Open preeminent!
LDKには吹き抜けがあり、開放感バツグン!
 Multi-purpose space is a personal computer, Piano, etc. ...
多目的スペースはパソコン、ピアノ等…
 For children the room there is a loft!
お子様部屋にはロフトがあります!
 Bedroom 7.8 Pledge + walk-in closet with
寝室は7.8帖+ウォークインクローゼット付き
 Spacious walk-in closet
広々としたウォークインクローゼット
Building plan example (exterior photos)建物プラン例(外観写真)  Custom home ・ Example of construction
【注文住宅・施工例】
 Custom home ・ Example of construction
【注文住宅・施工例】
 Custom home ・ Example of construction
【注文住宅・施工例】
 Custom home ・ Example of construction
【注文住宅・施工例】
Building plan example (introspection photo)建物プラン例(内観写真)  Thermal insulation material ・ Aqua form
【断熱材・アクアフォーム】
Other localその他現地  There is a sales center in the local!
現地に販売センターがございます!
Station駅  JR Komorie 600m to the Train Station
JR小森江駅まで600m
Otherその他 ![Other. [Commercial facility] Convenience store (100m)](/images/fukuoka/kitakyushushimoji/a6acef0005.jpg) [Commercial facility] Convenience store (100m)
【商業施設】コンビニ(100m)
Location
|