2013December
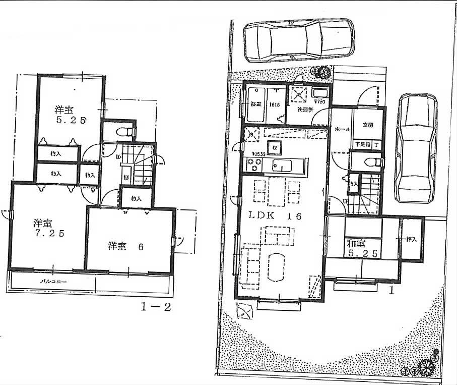
22,800,000 yen, 4LDK, 95.63 sq m
New Homes » Kyushu » Fukuoka Prefecture » Kitakyushu Yahatanishi-ku

| | Kitakyushu, Fukuoka Prefecture Yahatanishi-ku 福岡県北九州市八幡西区 |
| Chikuho electric railway "Sangamori" walk 26 minutes 筑豊電気鉄道「三ヶ森」歩26分 |
Features pickup 特徴ピックアップ | | Construction housing performance with evaluation / Parking two Allowed / Energy-saving water heaters / System kitchen / Washbasin with shower / Barrier-free / Toilet 2 places / 2-story / Double-glazing / Warm water washing toilet seat / TV monitor interphone 建設住宅性能評価付 /駐車2台可 /省エネ給湯器 /システムキッチン /シャワー付洗面台 /バリアフリー /トイレ2ヶ所 /2階建 /複層ガラス /温水洗浄便座 /TVモニタ付インターホン | Price 価格 | | 22,800,000 yen 2280万円 | Floor plan 間取り | | 4LDK 4LDK | Units sold 販売戸数 | | 1 units 1戸 | Total units 総戸数 | | 1 units 1戸 | Land area 土地面積 | | 147.64 sq m (registration) 147.64m2(登記) | Building area 建物面積 | | 95.63 sq m (registration) 95.63m2(登記) | Driveway burden-road 私道負担・道路 | | Nothing, North 4m width 無、北4m幅 | Completion date 完成時期(築年月) | | December 2013 2013年12月 | Address 住所 | | Kitakyushu, Fukuoka Prefecture Yahatanishi-ku Machikojakunishi 2 福岡県北九州市八幡西区町上津役西2 | Traffic 交通 | | Chikuho electric railway "Sangamori" walk 26 minutes 筑豊電気鉄道「三ヶ森」歩26分
| Contact お問い合せ先 | | Global Estate TEL: 093-681-2323 Please inquire as "saw SUUMO (Sumo)" グローバル地所TEL:093-681-2323「SUUMO(スーモ)を見た」と問い合わせください | Building coverage, floor area ratio 建ぺい率・容積率 | | 60% ・ 200% 60%・200% | Time residents 入居時期 | | Consultation 相談 | Land of the right form 土地の権利形態 | | Ownership 所有権 | Structure and method of construction 構造・工法 | | Wooden 2-story 木造2階建 | Use district 用途地域 | | One middle and high 1種中高 | Overview and notices その他概要・特記事項 | | Facilities: Public Water Supply, This sewage, City gas, Building confirmation number: KJH13-02727-1, Parking: car space 設備:公営水道、本下水、都市ガス、建築確認番号:KJH13-02727-1、駐車場:カースペース | Company profile 会社概要 | | <Mediation> Governor of Fukuoka Prefecture (3) No. 014697 (Corporation), Fukuoka Prefecture Building Lots and Buildings Transaction Business Association (One company) Kyushu Real Estate Fair Trade Council member global estate Yubinbango806-0013 Kitakyushu, Fukuoka Prefecture Yahatanishi-ku Seino 1-2-16 <仲介>福岡県知事(3)第014697号(公社)福岡県宅地建物取引業協会会員 (一社)九州不動産公正取引協議会加盟グローバル地所〒806-0013 福岡県北九州市八幡西区清納1-2-16 |
Floor plan間取り図  22,800,000 yen, 4LDK, Land area 147.64 sq m , Spacious size of the building area 95.63 sq m 4LDK
2280万円、4LDK、土地面積147.64m2、建物面積95.63m2 4LDKのゆったりサイズ
Location
|