New Homes » Kyushu » Fukuoka Prefecture » Nishi-ku


Fukuoka Prefecture, Nishi-ku, Fukuoka
Nishitetsu "Kamiyamato 2-chome" walk 8 minutes
Concept House western gas group Yaesu Kyushu to send. Can you actually you feel the gas hot water type "floor heating".
■ JR Chikuhi line "Shimoyamato" within walking distance to the station ■ Kibaru elementary school ・ Xiling middle school area please feel free to come.
Local guide map
Local guide map
Features pickup
Parking two Allowed / System kitchen / Bathroom Dryer / Yang per good / All room storage / Siemens south road / LDK15 tatami mats or more / Japanese-style room / Mist sauna / Washbasin with shower / Face-to-face kitchen / Bathroom 1 tsubo or more / 2-story / South balcony / Warm water washing toilet seat / Underfloor Storage / The window in the bathroom / TV monitor interphone / High-function toilet / All living room flooring / Dish washing dryer / Water filter / City gas / Floor heating
Property name
Joinus Kamiyamato 2-chome
Price
30,600,000 yen
Floor plan
4LDK + S (storeroom)
Units sold
1 units
Total units
1 units
Land area
181.32 sq m (54.84 square meters), Inclined portion: 43.92 sq m including
Building area
102.26 sq m (30.93 square meters)
Driveway burden-road
Nothing, South 4m width (contact the road width 4.3m)
Completion date
June 2013
Address
Fukuoka Prefecture, Nishi-ku, Fukuoka Kamiyamato 2
Traffic
Nishitetsu "Kamiyamato 2-chome" walk 8 minutes JR Chikuhi line "Shimoyamato" walk 20 minutes
Related links
[Related Sites of this company]
Contact
TEL: 0800-603-2174 [Toll free] mobile phone ・ Also available from PHS
Caller ID is not notified
Please contact the "saw SUUMO (Sumo)"
If it does not lead, If the real estate company
Building coverage, floor area ratio
Fifty percent ・ 80%
Time residents
Consultation
Land of the right form
Ownership
Structure and method of construction
Wooden 2-story
Use district
One low-rise
Overview and notices
Facilities: Public Water Supply, City gas, Building confirmation number: No. H24 confirmation architecture Fukuzumi cell this paragraph 02237 (H25.3.14), Parking: car space
Company profile
<Seller> Governor of Fukuoka Prefecture (10) No. 005670 (Corporation), Fukuoka Prefecture Building Lots and Buildings Transaction Business Association (One company) Kyushu Real Estate Fair Trade Council member Yaesu Kyushu Corporation Yubinbango812-0007 Fukuoka, Hakata-ku, Fukuoka City Higashihie 1-5-5


Other

Other. Joinus Kamiyamato 2-chome
Joinus Kamiyamato 2-chome

Local appearance photo

Local appearance photo. Joinus Kamiyamato 2-chome concept House No. 1 destination
Joinus Kamiyamato 2-chome concept House No. 1 destination

Floor plan

Floor plan. 30,600,000 yen, 4LDK + S (storeroom), Land area 181.32 sq m , Building area 102.26 sq m 1 issue areas [A house with a family corner where families gather]
30,600,000 yen, 4LDK + S (storeroom), Land area 181.32 sq m , Building area 102.26 sq m 1 issue areas [A house with a family corner where families gather]

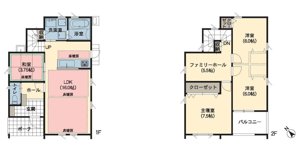
Compartment figure

Compartment figure. 30,600,000 yen, 4LDK + S (storeroom), Land area 181.32 sq m , Building area 102.26 sq m   [Joinus Kamiyamato 2-chome]
30,600,000 yen, 4LDK + S (storeroom), Land area 181.32 sq m , Building area 102.26 sq m [Joinus Kamiyamato 2-chome]

Same specifications photo (kitchen)

Same specifications photo (kitchen). With LDK floor heating. Us warm comfortable and the body from the feet.
With LDK floor heating. Us warm comfortable and the body from the feet.

Kitchen

Kitchen.  [kitchen] Care Ease. Large capacity capable of storing system Kitchen. Dishwasher dryer.
[kitchen] Care Ease. Large capacity capable of storing system Kitchen. Dishwasher dryer.

Living

Living.  [living] Gas hot water floor heating
[living] Gas hot water floor heating

Garden

Garden. Comforting environment. Green planting we welcome your family like.
Comforting environment. Green planting we welcome your family like.

Other introspection

Other introspection.  [Family Corner] Kids Room. Your serving space is in accordance with the family-like lifestyle.
[Family Corner] Kids Room. Your serving space is in accordance with the family-like lifestyle.

Local guide map

Local guide map. Car navigation system Search: Nishi-ku, Fukuoka Kamiyamato 2-chome, 25 near Please feel free to contact us.
Car navigation system Search: Nishi-ku, Fukuoka Kamiyamato 2-chome, 25 near Please feel free to contact us.

Park

park. Until ShironoHara South Park 340m
Until ShironoHara South Park 340m

Supermarket

Supermarket. 800m to Sunny
800m to Sunny

Supermarket. Until Marukyo Corporation 570m
Until Marukyo Corporation 570m

Primary school

Primary school. Kibaru until elementary school 380m
Kibaru until elementary school 380m

Bathroom

Bathroom. Bathroom heating ・ Drying ・ With ventilation function.
Bathroom heating ・ Drying ・ With ventilation function.

Other introspection

Other introspection. The first floor living room next to the Japanese-style room.
The first floor living room next to the Japanese-style room.

Kindergarten ・ Nursery

kindergarten ・ Nursery. 460m until Wako nursery
460m until Wako nursery



Location