New Homes » Kyushu » Fukuoka Prefecture » Onojo


Fukuoka Prefecture Ōnojō
Nishitetsu Tenjin Omuta Line "Shirakihara" bus 20 minutes Nishitetsu "comprehensive park entrance" walk 7 minutes
※ During price negotiations Promotions & cashback Campaign! Sundry expenses grayed ~ I and a low price ※ In property movie published on website " Smile Navi Fukuoka Search in "! !
※ It is not in the cheap and nasty at our company! Financial ・ Planners and housing staff who have a qualification of loan advisors We offer the support and advice of real estate purchase on the basis of the optimum life plan from the standpoint of customers. It is knack of real estate to choose not to fail is to proceed while to understand, such as flow and mortgage of real estate purchase. ※ You it is possible to cheaply expenses required for the property purchase per in expenses campaign! ※ In property movie published on website " http: / / www.sh-smilenavi.com / item / "Or" Smile Navi Fukuoka Search in "! !
Features pickup
Year Available / Parking two Allowed / Land 50 square meters or more / Energy-saving water heaters / System kitchen / Bathroom Dryer / Yang per good / A quiet residential area / LDK15 tatami mats or more / Or more before road 6m / Japanese-style room / Shaping land / Washbasin with shower / Barrier-free / Toilet 2 places / Bathroom 1 tsubo or more / 2-story / Double-glazing / Otobasu / Warm water washing toilet seat / Underfloor Storage / The window in the bathroom / TV monitor interphone / Leafy residential area / Mu front building / Ventilation good / Water filter
Event information
Local guide Board (Please be sure to ask in advance) time / 10:00 ~ 17:00 ※ It will guide you at any time if you can connect! ※ Please contact me for a complete reservation system. ※ In the case of unfinished properties is possible guidance to the model room. Please refer to the listing movie First at Home. " http: / / www.sh-smilenavi.com / item / "Or" Smile Navi Fukuoka Please search for ".
Price
23.8 million yen
Floor plan
4LDK
Units sold
1 units
Total units
4 units
Land area
170 sq m (registration)
Building area
98.82 sq m (registration)
Driveway burden-road
Nothing, North 6m width (contact the road width 9.7m)
Completion date
October 2013
Address
Fukuoka Prefecture onojo Otogana 3-17 No. undecided or less
Traffic
Nishitetsu Tenjin Omuta Line "Shirakihara" bus 20 minutes Nishitetsu "comprehensive park entrance" walk 7 minutes
Related links
[Related Sites of this company]
Person in charge
The person in charge (Ltd.) Smile Home ※ It is not in the cheap and nasty at our company! Financial ・ Staff having the qualifications of planners and mortgage advisors we will support. ※ For more details, or at HP " Smile Navi Fukuoka Search in "!
Contact
TEL: 0800-809-8581 [Toll free] mobile phone ・ Also available from PHS
Caller ID is not notified
Please contact the "saw SUUMO (Sumo)"
If it does not lead, If the real estate company
Building coverage, floor area ratio
40% ・ 60%
Time residents
Immediate available
Land of the right form
Ownership
Structure and method of construction
Wooden 2-story
Use district
One low-rise
Overview and notices
The person in charge :( stock) Smile Home, Facilities: Public Water Supply, This sewage, Individual LPG, Building confirmation number: No. H25 Fukuzumi cell this issue 00548, Parking: car space
Company profile
<Mediation> Governor of Fukuoka Prefecture (1) No. 017204 (Ltd.) Smile Home Yubinbango812-0884 Fukuoka, Hakata-ku, Fukuoka City Kotobukimachi 2-5-6


Local appearance photo

Local appearance photo. Local photo (2013 October 14, 2008)
Local photo (2013 October 14, 2008)

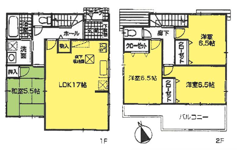
Floor plan

Floor plan. 23.8 million yen, 4LDK, Land area 170 sq m , Building area 98.82 sq m 4LDK
23.8 million yen, 4LDK, Land area 170 sq m , Building area 98.82 sq m 4LDK

Local photos, including front road

Local photos, including front road. Front road (width 6m)
Front road (width 6m)

Local appearance photo

Local appearance photo. Property entrance
Property entrance

Living

Living. Bright and wide over have living
Bright and wide over have living

Bathroom

Bathroom. With reheating full Otobasu
With reheating full Otobasu

Kitchen

Kitchen. System kitchen
System kitchen

Non-living room

Non-living room. Brightness over have Japanese-style room
Brightness over have Japanese-style room

Entrance

Entrance. Entrance shoe box
Entrance shoe box

Wash basin, toilet

Wash basin, toilet. Washbasin with shower
Washbasin with shower

Toilet

Toilet. Bidet function toilet
Bidet function toilet

Balcony

Balcony. Hiroi balcony
Hiroi balcony

Station

station. Nishitetsu Tenjin Omuta Line "Shirakihara" 2700m walk about 33 minutes to the station
Nishitetsu Tenjin Omuta Line "Shirakihara" 2700m walk about 33 minutes to the station

Other

Other. Layout (parking lot two)
Layout (parking lot two)

Living

Living. Bright and wide over have LDK
Bright and wide over have LDK

Kitchen

Kitchen. Faucet integrated water purifier
Faucet integrated water purifier

Non-living room

Non-living room. Akarui 2 Kaiyoshitsu
Akarui 2 Kaiyoshitsu

Primary school

Primary school. Oshiro 490m walk about 7 minutes to elementary school
Oshiro 490m walk about 7 minutes to elementary school

Other

Other. TV monitor phone
TV monitor phone

Kitchen

Kitchen. Three-necked gas stove
Three-necked gas stove

Non-living room

Non-living room. Akarui 2 Kaiyoshitsu
Akarui 2 Kaiyoshitsu



Location