2013December
18,800,000 yen, 4LDK, 105.16 sq m
New Homes » Kansai » Fukushima Prefecture » Koriyama
 
| | Koriyama, Fukushima Prefecture 福島県郡山市 |
| JR Suigun Line "Iwaki Moriyama" walk 11 minutes JR水郡線「磐城守山」歩11分 |
| All-electric housing IH cooking heater Cute Smart Key Station 11 minutes' walk 49 Line access good オール電化住宅 IHクッキングヒーター エコキュート スマートキー 駅徒歩11分 49号線アクセス良好 |
Price 価格 | | 18,800,000 yen 1880万円 | Floor plan 間取り | | 4LDK 4LDK | Units sold 販売戸数 | | 1 units 1戸 | Total units 総戸数 | | 1 units 1戸 | Land area 土地面積 | | 206.08 sq m (registration) 206.08m2(登記) | Building area 建物面積 | | 105.16 sq m (registration) 105.16m2(登記) | Driveway burden-road 私道負担・道路 | | Nothing, Northwest 4.5m width 無、北西4.5m幅 | Completion date 完成時期(築年月) | | December 2013 2013年12月 | Address 住所 | | Koriyama, Fukushima Prefecture Tamuramachiganzaku shaped ear sauce 福島県郡山市田村町岩作字穂多礼 | Traffic 交通 | | JR Suigun Line "Iwaki Moriyama" walk 11 minutes JR水郡線「磐城守山」歩11分
| Contact お問い合せ先 | | TEL: 0800-603-0399 [Toll free] mobile phone ・ Also available from PHS Caller ID is not notified Please contact the "saw SUUMO (Sumo)" If it does not lead, If the real estate company TEL:0800-603-0399【通話料無料】携帯電話・PHSからもご利用いただけます 発信者番号は通知されません 「SUUMO(スーモ)を見た」と問い合わせください つながらない方、不動産会社の方は
| Building coverage, floor area ratio 建ぺい率・容積率 | | 60% ・ 200% 60%・200% | Time residents 入居時期 | | Consultation 相談 | Land of the right form 土地の権利形態 | | Ownership 所有権 | Structure and method of construction 構造・工法 | | Wooden 2-story 木造2階建 | Use district 用途地域 | | Two mid-high 2種中高 | Overview and notices その他概要・特記事項 | | Facilities: Public Water Supply, Individual septic tank, Building confirmation number: A.C004175, Parking: car space 設備:公営水道、個別浄化槽、建築確認番号:A.C004175、駐車場:カースペース | Company profile 会社概要 | | <Mediation> Minister of Land, Infrastructure and Transport (11) No. 001961 (the company), Chiba Prefecture Building Lots and Buildings Transaction Business Association (Corporation) metropolitan area real estate Fair Trade Council member Tokai housing (Ltd.) Koriyama branch Yubinbango963-8034 Koriyama, Fukushima Prefecture Island 1-11-3 <仲介>国土交通大臣(11)第001961号(社)千葉県宅地建物取引業協会会員 (公社)首都圏不動産公正取引協議会加盟東海住宅(株)郡山支店〒963-8034 福島県郡山市島1-11-3 |
 Rendering (appearance)
完成予想図(外観)
 Rendering (appearance)
完成予想図(外観)
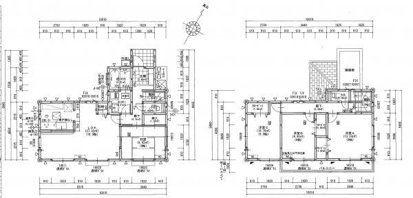
Floor plan間取り図  18,800,000 yen, 4LDK, Land area 206.08 sq m , Building area 105.16 sq m
1880万円、4LDK、土地面積206.08m2、建物面積105.16m2
Location
|