New Homes » Kansai » Fukushima Prefecture » Koriyama
 
| | Koriyama, Fukushima Prefecture 福島県郡山市 |
| JR Tohoku Line "Koriyama" walk 53 minutes JR東北本線「郡山」歩53分 |
| ● face-to-face kitchen style that can housework while looking at the state of the family ●家族の様子を見ながら家事のできる対面式キッチンスタイル |
| Measures to conserve energy, Corresponding to the flat-35S, Parking two Allowed, LDK18 tatami mats or more, Energy-saving water heaters, Facing south, System kitchen, All room storage, A quiet residential areaese-style room, garden, Washbasin with shower, Face-to-face kitchen, Wide balcony, Barrier-free, Toilet 2 places, Bathroom 1 tsubo or more, 2-story, South balcony, Double-glazing, Otobasu, Warm water washing toilet seat, Underfloor Storage, The window in the bathroom, TV monitor interphone, Water filter, All rooms are two-sided lighting 省エネルギー対策、フラット35Sに対応、駐車2台可、LDK18畳以上、省エネ給湯器、南向き、システムキッチン、全居室収納、閑静な住宅地、和室、庭、シャワー付洗面台、対面式キッチン、ワイドバルコニー、バリアフリー、トイレ2ヶ所、浴室1坪以上、2階建、南面バルコニー、複層ガラス、オートバス、温水洗浄便座、床下収納、浴室に窓、TVモニタ付インターホン、浄水器、全室2面採光 |
Features pickup 特徴ピックアップ | | Measures to conserve energy / Corresponding to the flat-35S / Parking two Allowed / Energy-saving water heaters / Facing south / System kitchen / Bathroom Dryer / All room storage / A quiet residential area / LDK15 tatami mats or more / Japanese-style room / Washbasin with shower / Face-to-face kitchen / Wide balcony / Barrier-free / Toilet 2 places / Bathroom 1 tsubo or more / 2-story / South balcony / Double-glazing / Otobasu / Warm water washing toilet seat / Underfloor Storage / The window in the bathroom / TV monitor interphone / Water filter 省エネルギー対策 /フラット35Sに対応 /駐車2台可 /省エネ給湯器 /南向き /システムキッチン /浴室乾燥機 /全居室収納 /閑静な住宅地 /LDK15畳以上 /和室 /シャワー付洗面台 /対面式キッチン /ワイドバルコニー /バリアフリー /トイレ2ヶ所 /浴室1坪以上 /2階建 /南面バルコニー /複層ガラス /オートバス /温水洗浄便座 /床下収納 /浴室に窓 /TVモニタ付インターホン /浄水器 | Event information イベント情報 | | Local guide Board (please make a reservation beforehand) schedule / But it is being published unfinished properties, Please feel free to contact us so you can also guide you in the existing properties such as appearance and construction in the field. 現地案内会(事前に必ず予約してください)日程/公開中未完成物件ですが、既存物件等外観や建築中現場でのご案内もできますのでお気軽にお問い合わせをください。 | Price 価格 | | 21,800,000 yen 2180万円 | Floor plan 間取り | | 4LDK 4LDK | Units sold 販売戸数 | | 1 units 1戸 | Total units 総戸数 | | 1 units 1戸 | Land area 土地面積 | | 220.1 sq m (registration) 220.1m2(登記) | Building area 建物面積 | | 99.22 sq m (registration) 99.22m2(登記) | Driveway burden-road 私道負担・道路 | | Nothing, South 4m width (contact the road width 4m) 無、南4m幅(接道幅4m) | Completion date 完成時期(築年月) | | February 2014 2014年2月 | Address 住所 | | Koriyama, Fukushima Prefecture Otsuki-cho Jirin'nohigashi 51-2 Building 2 福島県郡山市大槻町字林ノ東51-2 2号棟 | Traffic 交通 | | JR Tohoku Line "Koriyama" walk 53 minutes JR東北本線「郡山」歩53分
| Related links 関連リンク | | [Related Sites of this company] 【この会社の関連サイト】 | Person in charge 担当者より | | Person in charge of real-estate and building FP Sugawara OsamuShin Age: 50 Daigyokai experience: 20-year mortgage, etc. Please feel free to contact us. Fire insurance WEB discount practice in 担当者宅建FP菅原修信年齢:50代業界経験:20年住宅ローン等お気軽にご相談下さい。火災保険WEB割引実地中 | Contact お問い合せ先 | | TEL: 0800-603-9981 [Toll free] mobile phone ・ Also available from PHS Caller ID is not notified Please contact the "saw SUUMO (Sumo)" If it does not lead, If the real estate company TEL:0800-603-9981【通話料無料】携帯電話・PHSからもご利用いただけます 発信者番号は通知されません 「SUUMO(スーモ)を見た」と問い合わせください つながらない方、不動産会社の方は
| Building coverage, floor area ratio 建ぺい率・容積率 | | 60% ・ 200% 60%・200% | Time residents 入居時期 | | February 2014 schedule 2014年2月予定 | Land of the right form 土地の権利形態 | | Ownership 所有権 | Structure and method of construction 構造・工法 | | Wooden 2-story (framing method) 木造2階建(軸組工法) | Construction 施工 | | (Ltd.) Ernest One (株)アーネストワン | Use district 用途地域 | | One middle and high 1種中高 | Overview and notices その他概要・特記事項 | | Contact: Sugawara OsamuShin, Facilities: Public Water Supply, This sewage, Individual LPG, Building confirmation number: H25SHC113231, Parking: car space 担当者:菅原修信、設備:公営水道、本下水、個別LPG、建築確認番号:H25SHC113231、駐車場:カースペース | Company profile 会社概要 | | <Mediation> Governor of Fukushima Prefecture (3) No. 002355 (Ltd.) commitment Yubinbango963-8022 Koriyama, Fukushima Prefecture Nishinouchi 2-5-29 <仲介>福島県知事(3)第002355号(株)コミットメント〒963-8022 福島県郡山市西ノ内2-5-29 |
Local appearance photo現地外観写真  Local (11 May 2013) Shooting
現地(2013年11月)撮影
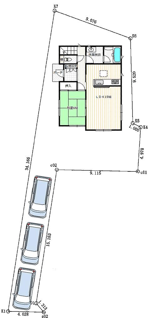
Floor plan間取り図  21,800,000 yen, 4LDK, Land area 220.1 sq m , Is the type of room in the building area 99.22 sq m second floor
2180万円、4LDK、土地面積220.1m2、建物面積99.22m2 二階に居室のタイプです
Compartment figure区画図  21,800,000 yen, 4LDK, Land area 220.1 sq m , Building area 99.22 sq m
2180万円、4LDK、土地面積220.1m2、建物面積99.22m2
 Rendering (appearance)
完成予想図(外観)
 Living
リビング
Bathroom浴室  Hot water supply of semi-automatic type of automatic water filling
自動湯張りのセミオートタイプの給湯
Kitchenキッチン  Water purifier with a shower faucet
浄水器付シャワー水栓
Non-living roomリビング以外の居室  Dihedral daylight Western-style
二面採光の洋室
Entrance玄関  With shoes stocker
シューズストッカー付
Wash basin, toilet洗面台・洗面所  With anti-fog heaters
曇り止めヒーター付
Receipt収納  Closet storage
クローゼット収納
Toiletトイレ  Each floor cleaning heating toilet seat
各階洗浄暖房便座
 Local photos, including front road
前面道路含む現地写真
Junior high school中学校  1250m to Koriyama Municipal Koriyama first junior high school
郡山市立郡山第一中学校まで1250m
Other introspectionその他内観  Staircase with handrails
手すり付階段
 Local guide map
現地案内図
Livingリビング  Face-to-face kitchen
対面キッチン
Kitchenキッチン  Three-necked gas stove
三口ガスコンロ
Non-living roomリビング以外の居室  Dihedral daylight Western-style
二面採光の洋室
Receipt収納  Closet storage
クローゼット収納
Shopping centreショッピングセンター  858m to the Fashion Center Shimamura Koriyama Kurume shop
ファッションセンターしまむら郡山久留米店まで858m
Location
|