New Homes » Chugoku » Hiroshima » Aki-ku
 
| | Hiroshima, Hiroshima Prefecture Aki-ku, 広島県広島市安芸区 |
| Hiroshima Electric Railway "Yano Gion bus stop" walk 2 minutes 広島電鉄「矢野祇園バス停」歩2分 |
| Azuma Yano park right next to, 17.8 tatami LDK 矢野東公園すぐそば、17.8畳LDK |
| ■ Parking three or more possible ■ 17 tatami mats or more of loose LDK ■ Economic energy-saving water heaters ■ Care easily in the system kitchen ■駐車3台以上可■17畳以上のゆったりLDK■省エネ給湯器で経済的■システムキッチンでお手入れ楽々 |
Features pickup 特徴ピックアップ | | Parking three or more possible / LDK18 tatami mats or more / Energy-saving water heaters / System kitchen / A quiet residential area / 2-story / TV monitor interphone / All-electric 駐車3台以上可 /LDK18畳以上 /省エネ給湯器 /システムキッチン /閑静な住宅地 /2階建 /TVモニタ付インターホン /オール電化 | Price 価格 | | 30,900,000 yen 3090万円 | Floor plan 間取り | | 4LDK 4LDK | Units sold 販売戸数 | | 1 units 1戸 | Land area 土地面積 | | 163.37 sq m (registration) 163.37m2(登記) | Building area 建物面積 | | 117.72 sq m (registration) 117.72m2(登記) | Driveway burden-road 私道負担・道路 | | Nothing 無 | Completion date 完成時期(築年月) | | March 2014 2014年3月 | Address 住所 | | Hiroshima, Hiroshima Prefecture Aki-ku, Azuma Yano 6 広島県広島市安芸区矢野東6 | Traffic 交通 | | Hiroshima Electric Railway "Yano Gion bus stop" walk 2 minutes 広島電鉄「矢野祇園バス停」歩2分 | Related links 関連リンク | | [Related Sites of this company] 【この会社の関連サイト】 | Person in charge 担当者より | | Lightness of the person in charge Nagoshi Fumiya footwork boasts! Thoroughly because it will guide you until you are able to convince the customer, Please feel free to contact us. 担当者名越 文哉フットワークの軽さが自慢です!お客様に納得して頂けるまでとことんご案内いたしますので、お気軽にお問い合わせください。 | Contact お問い合せ先 | | TEL: 0800-603-3620 [Toll free] mobile phone ・ Also available from PHS Caller ID is not notified Please contact the "saw SUUMO (Sumo)" If it does not lead, If the real estate company TEL:0800-603-3620【通話料無料】携帯電話・PHSからもご利用いただけます 発信者番号は通知されません 「SUUMO(スーモ)を見た」と問い合わせください つながらない方、不動産会社の方は
| Time residents 入居時期 | | March 2014 schedule 2014年3月予定 | Land of the right form 土地の権利形態 | | Ownership 所有権 | Structure and method of construction 構造・工法 | | Wooden 2-story 木造2階建 | Overview and notices その他概要・特記事項 | | Contact: Nagoshi Fumiya, Building confirmation number: HP15-0181532, Parking: car space 担当者:名越 文哉、建築確認番号:HP15-0181532、駐車場:カースペース | Company profile 会社概要 | | <Mediation> Governor of Hiroshima Prefecture (6) Article 006948 No. cosmid Real Estate Co., Ltd. Yubinbango733-0002 Hiroshima, Hiroshima Prefecture, Nishi-ku, Kusunoki-cho, 1-13-11 <仲介>広島県知事(6)第006948号木住不動産(株)〒733-0002 広島県広島市西区楠木町1-13-11 |
 Local appearance photo
現地外観写真
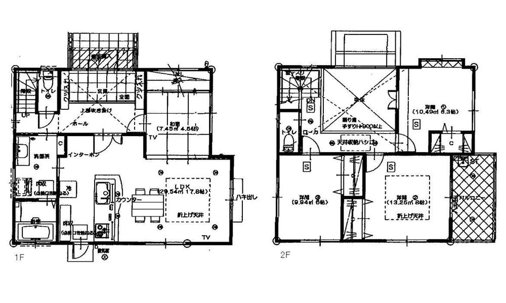
Floor plan間取り図  30,900,000 yen, 4LDK, Land area 163.37 sq m , Building area 117.72 sq m
3090万円、4LDK、土地面積163.37m2、建物面積117.72m2
 Local photos, including front road
前面道路含む現地写真
Supermarketスーパー  2088m to Cope Azuma Yano
コープ矢野東まで2088m
 1034m to Madame Joy Yano shop
マダムジョイ矢野店まで1034m
Junior high school中学校  1817m to Hiroshima Municipal Yano Junior High School
広島市立矢野中学校まで1817m
Primary school小学校  494m to Hiroshima Municipal Yano Elementary School
広島市立矢野小学校まで494m
Post office郵便局  Hiroshima Azuma Yano 298m to the post office
広島矢野東郵便局まで298m
Location
|