New Homes » Chugoku » Hiroshima » Aki-ku
 
| | Hiroshima, Hiroshima Prefecture Aki-ku, 広島県広島市安芸区 |
| JR Sanyo Line "Kaita City" walk 12 minutes JR山陽本線「海田市」歩12分 |
| ● good location does not go out very much. School Rakuchin ● is convenient also available Sanyo also Kure Line from JR Kaita City station is available in a 5-minute walk from the elementary school. ●なかなか出ない好立地。小学校まで徒歩5分で通学ラクチン●JR海田市駅が利用できるから山陽本線も呉線も利用できて便利です。 |
| Is also safe side to buy the structure of the building is also seen been in since going to architecture from now. Also is utility costs reduction glad the wife also can reduce monthly running cost because it is all-electric EcoCute. On the second floor you will find a free space of 2 quires. Worry mom because among children is small, it can be sports here 今から建築していくから建物の構造も見れて購入する側も安心です。またオール電化エコキュートだから月々のランニングコストも削減できて奥様には嬉しい光熱費削減です。2階には2帖のフリースペースを設けてます。お子様が小さい内はここで遊ばす事ができるからお母さんも安心 |
Features pickup 特徴ピックアップ | | Pre-ground survey / LDK18 tatami mats or more / See the mountain / System kitchen / All room storage / Corner lot / Washbasin with shower / Face-to-face kitchen / Barrier-free / Toilet 2 places / 2-story / Warm water washing toilet seat / IH cooking heater / Walk-in closet / Located on a hill 地盤調査済 /LDK18畳以上 /山が見える /システムキッチン /全居室収納 /角地 /シャワー付洗面台 /対面式キッチン /バリアフリー /トイレ2ヶ所 /2階建 /温水洗浄便座 /IHクッキングヒーター /ウォークインクロゼット /高台に立地 | Price 価格 | | 32,800,000 yen 3280万円 | Floor plan 間取り | | 4LDK 4LDK | Units sold 販売戸数 | | 1 units 1戸 | Total units 総戸数 | | 1 units 1戸 | Land area 土地面積 | | 131.34 sq m (measured) 131.34m2(実測) | Building area 建物面積 | | 112.4 sq m (measured) 112.4m2(実測) | Driveway burden-road 私道負担・道路 | | Nothing, Northwest 3.5m width, Northeast 2.8m width 無、北西3.5m幅、北東2.8m幅 | Completion date 完成時期(築年月) | | April 2014 2014年4月 | Address 住所 | | Hiroshima, Hiroshima Prefecture Aki-ku, Funakoshi 4 広島県広島市安芸区船越4 | Traffic 交通 | | JR Sanyo Line "Kaita City" walk 12 minutes Bus "Funakoshi bus stop" walk 9 minutes JR Kure Line "Kaita City" walk 12 minutes JR山陽本線「海田市」歩12分 バス「船越バス停」歩9分JR呉線「海田市」歩12分
| Related links 関連リンク | | [Related Sites of this company] 【この会社の関連サイト】 | Person in charge 担当者より | | Rep Kawamoto Yasunari Age: 40 Daigyokai Experience: 15 years "sale ・ Rent "," new construction ・ Used "" Mansion ・ Detached ・ Under all options, such as land. ", We are vegetarian every day As you can choose to smooth the "house" that fits your lifestyle. 担当者河本 康成年齢:40代業界経験:15年「分譲・賃貸」「新築・中古」「マンション・一戸建・土地」といったあらゆる選択肢のもとで、自分のライフスタイルに合った「住まい」をスムーズにお選びいただけるよう日々精進しております。 | Contact お問い合せ先 | | TEL: 0800-603-8357 [Toll free] mobile phone ・ Also available from PHS Caller ID is not notified Please contact the "saw SUUMO (Sumo)" If it does not lead, If the real estate company TEL:0800-603-8357【通話料無料】携帯電話・PHSからもご利用いただけます 発信者番号は通知されません 「SUUMO(スーモ)を見た」と問い合わせください つながらない方、不動産会社の方は
| Building coverage, floor area ratio 建ぺい率・容積率 | | 60% ・ 160% 60%・160% | Time residents 入居時期 | | May 2014 plans 2014年5月予定 | Land of the right form 土地の権利形態 | | Ownership 所有権 | Structure and method of construction 構造・工法 | | Wooden 2-story (framing method) 木造2階建(軸組工法) | Use district 用途地域 | | Two mid-high 2種中高 | Overview and notices その他概要・特記事項 | | Contact: Kawamoto Yasunari, Facilities: Public Water Supply, This sewage, All-electric, Building confirmation number: 1056, Parking: car space 担当者:河本 康成、設備:公営水道、本下水、オール電化、建築確認番号:1056、駐車場:カースペース | Company profile 会社概要 | | <Mediation> Governor of Hiroshima Prefecture (1) No. 009574 (Ltd.) F.four (F ・ Four) Yubinbango734-0007 Hiroshima, Hiroshima Prefecture, Minami-ku, Minami-cho, 1-11-23 <仲介>広島県知事(1)第009574号(株)F.four(エフ・フォー)〒734-0007 広島県広島市南区皆実町1-11-23 |
Local appearance photo現地外観写真  It is the start of construction from now.
今から建築開始です。
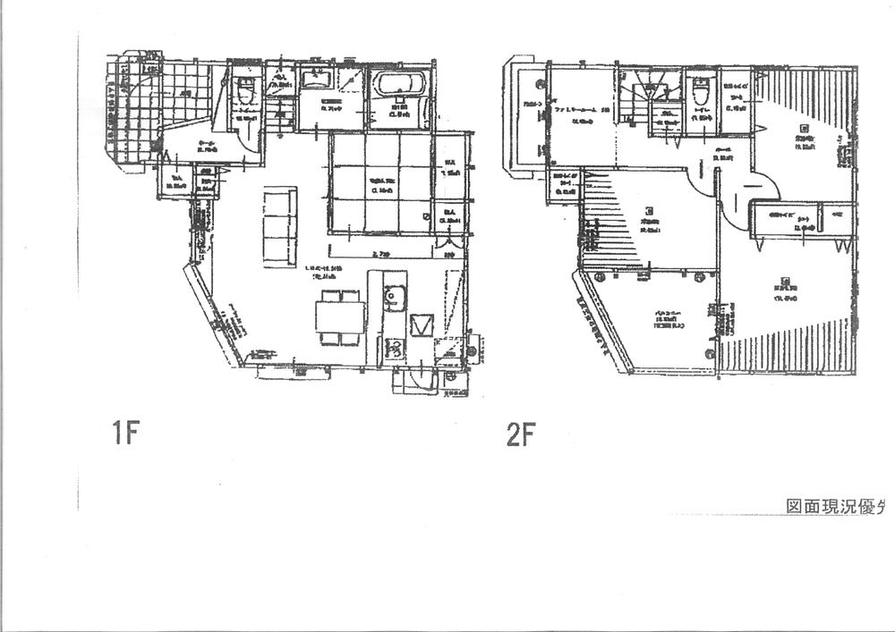
Floor plan間取り図  32,800,000 yen, 4LDK, Land area 131.34 sq m , Building area 112.4 sq m
3280万円、4LDK、土地面積131.34m2、建物面積112.4m2
 Local photos, including front road
前面道路含む現地写真
Supermarketスーパー  933m to Yours Kaita shop
ユアーズ海田店まで933m
Convenience storeコンビニ  Lawson Aki Ward Office 896m before shop
ローソン安芸区役所前店まで896m
Drug storeドラッグストア  Hearty Wants Funakoshi to shop 495m
ハーティウォンツ船越店まで495m
Home centerホームセンター  DEODEO until Aosakihigashi shop 1353m
デオデオ青崎東店まで1353m
Junior high school中学校  1760m to Hiroshima City Museum of Funakoshi Junior High School
広島市立船越中学校まで1760m
Primary school小学校  328m to Hiroshima City Museum of Funakoshi Elementary School
広島市立船越小学校まで328m
Kindergarten ・ Nursery幼稚園・保育園  Komyoji 212m to nursery school
光明寺保育園まで212m
Government office役所  875m to Hiroshima Aki Ward Office
広島市安芸区役所まで875m
Bank銀行  Momiji Bank Kaita to branch 909m
もみじ銀行海田支店まで909m
Location
|