|
|
Hiroshima, Hiroshima Prefecture Aki-ku,
広島県広島市安芸区
|
|
Hiroshima traffic "Seno Bridge" walk 2 minutes
広島交通「瀬野大橋」歩2分
|
|
JR It is convenient and quiet residential area close to both the bus stop.
JR バス停とも近い便利で静かな住宅地です。
|
|
■ Flat 35S All is electric housing. ■ Cute IH heater Pair glass There is also the attic storage. ■ It is a good location of the bus stop a 2-minute walk in the corner lot.
■フラット35S オール電化住宅です。■エコキュート IHヒーター ペアガラス 小屋裏収納も有ります。■角地でバス停徒歩2分の好立地です。
|
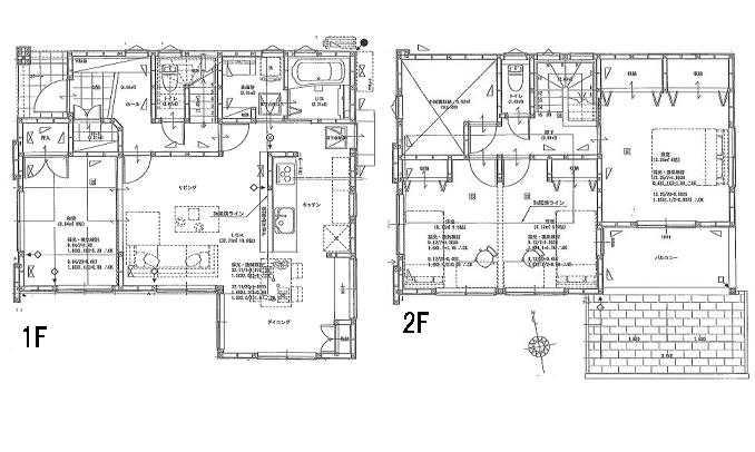
Features pickup 特徴ピックアップ | | LDK18 tatami mats or more / Yang per good / Flat to the station / A quiet residential area / Corner lot / Japanese-style room / Toilet 2 places / 2-story / TV monitor interphone / High-function toilet / Ventilation good / IH cooking heater / Walk-in closet / All-electric / Flat terrain / Attic storage LDK18畳以上 /陽当り良好 /駅まで平坦 /閑静な住宅地 /角地 /和室 /トイレ2ヶ所 /2階建 /TVモニタ付インターホン /高機能トイレ /通風良好 /IHクッキングヒーター /ウォークインクロゼット /オール電化 /平坦地 /屋根裏収納 |
Event information イベント情報 | | (Please be sure to ask in advance) (事前に必ずお問い合わせください) |
Price 価格 | | 27.5 million yen 2750万円 |
Floor plan 間取り | | 4LDK 4LDK |
Units sold 販売戸数 | | 1 units 1戸 |
Total units 総戸数 | | 1 units 1戸 |
Land area 土地面積 | | 123.99 sq m (registration) 123.99m2(登記) |
Building area 建物面積 | | 106.8 sq m (registration) 106.8m2(登記) |
Driveway burden-road 私道負担・道路 | | Nothing, North 4.6m width, West 4.2m width 無、北4.6m幅、西4.2m幅 |
Completion date 完成時期(築年月) | | October 2013 2013年10月 |
Address 住所 | | Hiroshima, Hiroshima Prefecture Aki-ku, Seno 1 広島県広島市安芸区瀬野1 |
Traffic 交通 | | Hiroshima traffic "Seno Bridge" walk 2 minutes JR Sanyo Line "Seno" walk 8 minutes Skyrail "green ports" walk 7 minutes 広島交通「瀬野大橋」歩2分JR山陽本線「瀬野」歩8分 スカイレール「みどり口」歩7分
|
Related links 関連リンク | | [Related Sites of this company] 【この会社の関連サイト】 |
Person in charge 担当者より | | The person in charge Hiroaki Shinohara 担当者篠原 裕昭 |
Contact お問い合せ先 | | TEL: 0800-603-3620 [Toll free] mobile phone ・ Also available from PHS Caller ID is not notified Please contact the "saw SUUMO (Sumo)" If it does not lead, If the real estate company TEL:0800-603-3620【通話料無料】携帯電話・PHSからもご利用いただけます 発信者番号は通知されません 「SUUMO(スーモ)を見た」と問い合わせください つながらない方、不動産会社の方は
|
Time residents 入居時期 | | Consultation 相談 |
Land of the right form 土地の権利形態 | | Ownership 所有権 |
Structure and method of construction 構造・工法 | | Wooden 2-story 木造2階建 |
Use district 用途地域 | | Residential 近隣商業 |
Overview and notices その他概要・特記事項 | | Contact: Hiroaki Shinohara, Facilities: Public Water Supply, This sewage, All-electric, Parking: car space 担当者:篠原 裕昭、設備:公営水道、本下水、オール電化、駐車場:カースペース |
Company profile 会社概要 | | <Mediation> Governor of Hiroshima Prefecture (6) Article 006948 No. cosmid Real Estate Co., Ltd. Yubinbango733-0002 Hiroshima, Hiroshima Prefecture, Nishi-ku, Kusunoki-cho, 1-13-11 <仲介>広島県知事(6)第006948号木住不動産(株)〒733-0002 広島県広島市西区楠木町1-13-11 |