New Homes » Chugoku » Hiroshima » Aki-ku


Hiroshima, Hiroshima Prefecture Aki-ku,
Bus "Miyahara Bridge" walk 2 minutes
Shoes cloak and WIC, Is a 20-quires more broad LDK easy-to-use Matrix of course is all-electric homes
Features pickup
Parking two Allowed / LDK20 tatami mats or more / Land 50 square meters or more / System kitchen / Bathroom Dryer / A quiet residential area / Japanese-style room / Washbasin with shower / Toilet 2 places / Bathroom 1 tsubo or more / 2-story / 2 or more sides balcony / Double-glazing / Otobasu / Warm water washing toilet seat / Underfloor Storage / The window in the bathroom / IH cooking heater / Dish washing dryer / Walk-in closet / All rooms are two-sided lighting
Price
25,800,000 yen
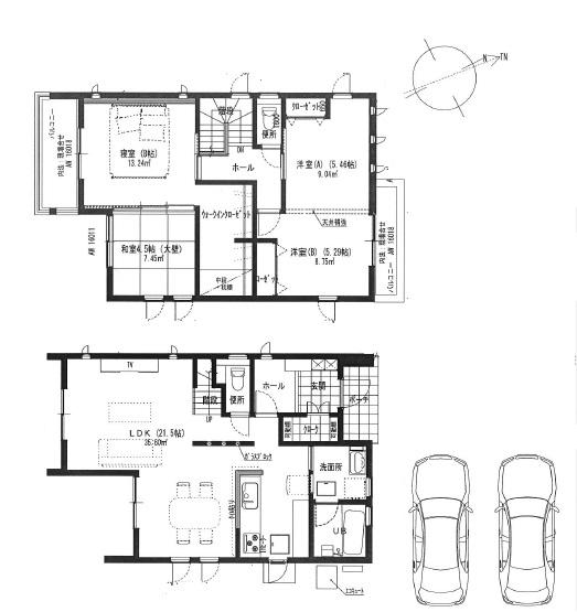
Floor plan
4LDK
Units sold
1 units
Land area
175.6 sq m (53.11 tsubo) (Registration)
Building area
107.65 sq m (32.56 square meters)
Driveway burden-road
Nothing, North 4m width
Completion date
April 2014
Address
Hiroshima, Hiroshima Prefecture Aki-ku, Nakanohigashi 7
Traffic
Bus "Miyahara Bridge" walk 2 minutes
Related links
[Related Sites of this company]
Contact
TEL: 082-568-1150 Please inquire as "saw SUUMO (Sumo)"
Building coverage, floor area ratio
60% ・ 160%
Time residents
May 2014 plans
Land of the right form
Ownership
Structure and method of construction
Wooden 2-story
Use district
Two mid-high
Overview and notices
Facilities: Public Water Supply, This sewage, All-electric, Building confirmation number: 02436, Parking: car space
Company profile
<Mediation> Governor of Hiroshima Prefecture (1) No. 010121 bamboo Corporation (Corporation) Yubinbango732-0817 Hiroshima, Hiroshima Prefecture, Minami-ku, Hijiyama cho 4-11


Rendering (appearance)
Rendering (appearance)

Floor plan

Floor plan. 25,800,000 yen, 4LDK, Land area 175.6 sq m , Building area 107.65 sq m
25,800,000 yen, 4LDK, Land area 175.6 sq m , Building area 107.65 sq m

Supermarket

Supermarket. 1412m until Marche over Senogawa shop
1412m until Marche over Senogawa shop

Convenience store

Convenience store. 1229m until the Seven-Eleven Akinakano Higashiten
1229m until the Seven-Eleven Akinakano Higashiten

Home center

Home center. 978m to home improvement Konan Nakanohigashi shop
978m to home improvement Konan Nakanohigashi shop

Junior high school

Junior high school. 2330m to Hiroshima Municipal Senogawa junior high school
2330m to Hiroshima Municipal Senogawa junior high school

Primary school

Primary school. 1185m to Hiroshima Municipal Nakanohigashi Elementary School
1185m to Hiroshima Municipal Nakanohigashi Elementary School

Kindergarten ・ Nursery

kindergarten ・ Nursery. Nakano Meiwa 834m to nursery school
Nakano Meiwa 834m to nursery school

Post office

post office. Hiroshima Nakanohigashi 1273m to the post office
Hiroshima Nakanohigashi 1273m to the post office



Location