New Homes » Chugoku » Hiroshima » Aki-gun
 
| | Hiroshima Prefecture, Fuchu-cho, Aki-gun 広島県安芸郡府中町 |
| JR Sanyo Line "god river" walk 19 minutes JR山陽本線「天神川」歩19分 |
Features pickup 特徴ピックアップ | | Super close / Yang per good / Flat to the station / Around traffic fewer / City gas / Flat terrain スーパーが近い /陽当り良好 /駅まで平坦 /周辺交通量少なめ /都市ガス /平坦地 | Price 価格 | | 23,900,000 yen 2390万円 | Building coverage, floor area ratio 建ぺい率・容積率 | | 60% ・ 200% 60%・200% | Sales compartment 販売区画数 | | 1 compartment 1区画 | Land area 土地面積 | | 124.11 sq m (registration) 124.11m2(登記) | Driveway burden-road 私道負担・道路 | | Nothing, East 4.7m width (contact the road width 8m) 無、東4.7m幅(接道幅8m) | Land situation 土地状況 | | Vacant lot 更地 | Address 住所 | | Aki-gun, Hiroshima Fuchu-cho-cho Hamadahon 広島県安芸郡府中町浜田本町 | Traffic 交通 | | JR Sanyo Line "god river" walk 19 minutes JR Sanyo Line "Koyo" walk 23 minutes JR Geibi Line "Noctuidae" walk 26 minutes JR山陽本線「天神川」歩19分 JR山陽本線「向洋」歩23分 JR芸備線「矢賀」歩26分
| Contact お問い合せ先 | | (Ltd.) Say Aye support TEL: 0800-603-9175 [Toll free] mobile phone ・ Also available from PHS Caller ID is not notified Please contact the "saw SUUMO (Sumo)" If it does not lead, If the real estate company (株)セイエイサポートTEL:0800-603-9175【通話料無料】携帯電話・PHSからもご利用いただけます 発信者番号は通知されません 「SUUMO(スーモ)を見た」と問い合わせください つながらない方、不動産会社の方は
| Land of the right form 土地の権利形態 | | Ownership 所有権 | Building condition 建築条件 | | With 付 | Time delivery 引き渡し時期 | | Consultation 相談 | Land category 地目 | | Residential land 宅地 | Use district 用途地域 | | One dwelling 1種住居 | Overview and notices その他概要・特記事項 | | Facilities: Public Water Supply, This sewage, City gas 設備:公営水道、本下水、都市ガス | Company profile 会社概要 | | <Seller> Governor of Hiroshima Prefecture (2) No. 009445 (Ltd.) Say Aye support Yubinbango735-0006 Hiroshima Prefecture Fuchu-cho, Aki-gun, Honcho 1-13-6 Omine building <売主>広島県知事(2)第009445号(株)セイエイサポート〒735-0006 広島県安芸郡府中町本町1-13-6 大峰ビル |
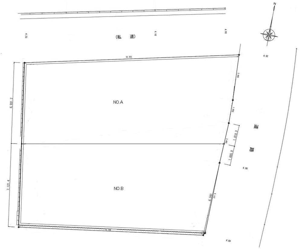
Compartment figure区画図  Land price 23,900,000 yen, Land area 124.11 sq m
土地価格2390万円、土地面積124.11m2
Local land photo現地土地写真  Rare flat property
希少な平地物件
 Again difficult to obtain good location
再度得難い好立地
 Local land photo
現地土地写真
Local photos, including front road前面道路含む現地写真  Front road spacious 5m
前面道路広々5m
Supermarketスーパー  435m until Marche over Fuchu Hamada shop
マルシェー府中浜田店まで435m
 Local land photo
現地土地写真
 248m to spark Hamada shop
スパーク浜田店まで248m
Convenience storeコンビニ  Seven-Eleven Aki 206m to Fuchu Yahata 1-chome
セブンイレブン安芸府中八幡1丁目店まで206m
Junior high school中学校  761m to Fuchu-cho stand Fuchu Midorigaoka Junior High School
府中町立府中緑ケ丘中学校まで761m
Primary school小学校  454m to Fuchu-cho stand Fuchu center Elementary School
府中町立府中中央小学校まで454m
Kindergarten ・ Nursery幼稚園・保育園  Piccolo Goad to nursery school 213m
ピッコロゴード保育園まで213m
Post office郵便局  238m until Aki Fuchu post office
安芸府中郵便局まで238m
Bank銀行  Hiroshimashin'yokinko Aki 272m to Fuchu center branch
広島信用金庫安芸府中中央支店まで272m
 Maple 455m to Bank Hamada branch office
もみじ銀行浜田出張所まで455m
Location
|