|
|
Aki-gun, Hiroshima Kaita-cho
広島県安芸郡海田町
|
|
Bus "courser opening" walk 1 minute
バス「砂走口」歩1分
|
|
◆ Shoes cloak to make a neat clean space! ◆ Bright kitchen back door the wind to pass through! ◆ Even Mrs. counter in the living!
◆すっきりキレイな空間を作るシューズクローク!◆明るく風が通り抜けるキッチン勝手口付き!◆リビングにはミセスカウンターも!
|
|
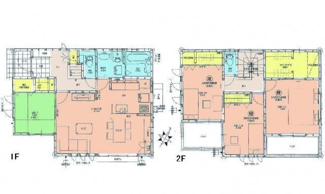
It is housed with the easy-to-use Mato of enhancement!
充実の収納と使いやすい間取です!
|
Features pickup 特徴ピックアップ | | Corresponding to the flat-35S / System kitchen / All room storage / LDK15 tatami mats or more / Or more before road 6m / Washbasin with shower / Face-to-face kitchen / 2-story / Underfloor Storage / TV monitor interphone / Walk-in closet / City gas フラット35Sに対応 /システムキッチン /全居室収納 /LDK15畳以上 /前道6m以上 /シャワー付洗面台 /対面式キッチン /2階建 /床下収納 /TVモニタ付インターホン /ウォークインクロゼット /都市ガス |
Price 価格 | | 28.5 million yen 2850万円 |
Floor plan 間取り | | 4LDK 4LDK |
Units sold 販売戸数 | | 1 units 1戸 |
Land area 土地面積 | | 140.24 sq m (42.42 tsubo) (Registration) 140.24m2(42.42坪)(登記) |
Building area 建物面積 | | 107.09 sq m (32.39 tsubo) (Registration) 107.09m2(32.39坪)(登記) |
Driveway burden-road 私道負担・道路 | | Nothing, South 8m width, West 7.9m width 無、南8m幅、西7.9m幅 |
Completion date 完成時期(築年月) | | October 2013 2013年10月 |
Address 住所 | | Aki-gun, Hiroshima Kaita-cho ridge 2-1 広島県安芸郡海田町畝2-1 |
Traffic 交通 | | Bus "courser opening" walk 1 minute JR Sanyo Line "Akinakano" walk 29 minutes JR Sanyo Line "Kaita City" walk 26 minutes バス「砂走口」歩1分JR山陽本線「安芸中野」歩29分 JR山陽本線「海田市」歩26分
|
Related links 関連リンク | | [Related Sites of this company] 【この会社の関連サイト】 |
Person in charge 担当者より | | Rep Maruwa real estate 担当者丸和不動産 |
Contact お問い合せ先 | | TEL: 0800-603-2437 [Toll free] mobile phone ・ Also available from PHS Caller ID is not notified Please contact the "saw SUUMO (Sumo)" If it does not lead, If the real estate company TEL:0800-603-2437【通話料無料】携帯電話・PHSからもご利用いただけます 発信者番号は通知されません 「SUUMO(スーモ)を見た」と問い合わせください つながらない方、不動産会社の方は
|
Building coverage, floor area ratio 建ぺい率・容積率 | | 60% ・ 200% 60%・200% |
Time residents 入居時期 | | Immediate available 即入居可 |
Land of the right form 土地の権利形態 | | Ownership 所有権 |
Structure and method of construction 構造・工法 | | Wooden 2-story 木造2階建 |
Use district 用途地域 | | One dwelling 1種住居 |
Overview and notices その他概要・特記事項 | | Contact: Maruwa real estate, Facilities: Public Water Supply, This sewage, City gas, Building confirmation number: Se 00280, Parking: car space 担当者:丸和不動産、設備:公営水道、本下水、都市ガス、建築確認番号:セ00280、駐車場:カースペース |
Company profile 会社概要 | | <Mediation> Governor of Hiroshima Prefecture (7) Maruwa real estate (with) No. 006034 Yubinbango733-0821 Hiroshima, Hiroshima Prefecture, Nishi-ku, Kogokita 2-16-10 <仲介>広島県知事(7)第006034号丸和不動産(有)〒733-0821 広島県広島市西区庚午北2-16-10 |