New Homes » Chugoku » Hiroshima » Aki-gun


Aki-gun, Hiroshima Kumano-cho
Kumano traffic "Takike Yagami bus" walk 2 minutes
Loose is a quiet residential area of ​​the site.
■ It is flat 35S corresponding housing. ■ All-electric Safe and secure home in the Eco Cute ■ System kitchen IH cooking heater installation ■ Useful underfloor storage is also a standard installation.
Features pickup
Land 50 square meters or more / LDK18 tatami mats or more / System kitchen / Yang per good / A quiet residential area / Japanese-style room / Shaping land / Toilet 2 places / 2-story / Underfloor Storage / TV monitor interphone / High-function toilet / IH cooking heater / All-electric
Price
24.5 million yen
Floor plan
4LDK
Units sold
1 units
Total units
1 units
Land area
165.99 sq m (registration)
Building area
111.37 sq m (registration)
Driveway burden-road
Nothing, Northwest 4m width
Completion date
September 2013
Address
Aki-gun, Hiroshima Kumano-cho Dekiniwa 10
Traffic
Kumano traffic "Takike Yagami bus" walk 2 minutes
Related links
[Related Sites of this company]
Person in charge
The person in charge Shinohara
Contact
TEL: 0800-603-3620 [Toll free] mobile phone ・ Also available from PHS
Caller ID is not notified
Please contact the "saw SUUMO (Sumo)"
If it does not lead, If the real estate company
Building coverage, floor area ratio
Fifty percent ・ Hundred percent
Time residents
Consultation
Land of the right form
Ownership
Structure and method of construction
Wooden 2-story
Use district
One low-rise
Overview and notices
Contact: Shinohara, Facilities: Public Water Supply, This sewage, All-electric, Building confirmation number: 00000, Parking: car space
Company profile
<Mediation> Governor of Hiroshima Prefecture (6) Article 006948 No. cosmid Real Estate Co., Ltd. Yubinbango733-0002 Hiroshima, Hiroshima Prefecture, Nishi-ku, Kusunoki-cho, 1-13-11


Local appearance photo

Local appearance photo. It is refreshing design.
It is refreshing design.

Other local

Other local. Plenty of parking spaces.
Plenty of parking spaces.

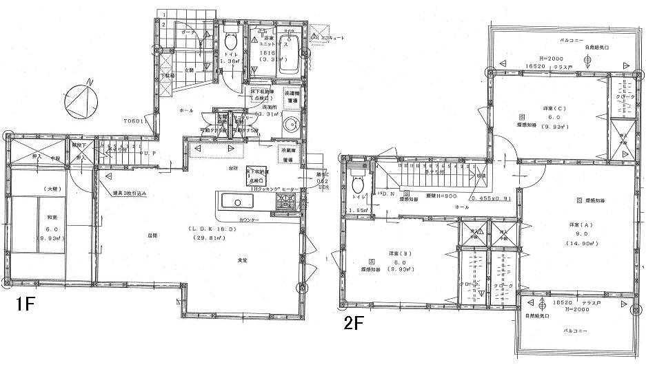
Floor plan

Floor plan. 24.5 million yen, 4LDK, Land area 165.99 sq m , Building area 111.37 sq m 1F 18LDK 6 Japanese-style room toilet 2F 9 Hiroshi 6 Hiroshi 6 Hiroshi toilet
24.5 million yen, 4LDK, Land area 165.99 sq m , Building area 111.37 sq m 1F 18LDK 6 Japanese-style room toilet 2F 9 Hiroshi 6 Hiroshi 6 Hiroshi toilet

Supermarket

Supermarket. 780m to Yours Kumano shop is a large parking lot super.
780m to Yours Kumano shop is a large parking lot super.

Convenience store

Convenience store. It is 301m walking distance to Sunkus Aki Kumano shop.
It is 301m walking distance to Sunkus Aki Kumano shop.

Bank

Bank. 300m until Kureshin'yokinko
300m until Kureshin'yokinko



Location