New Homes » Chugoku » Hiroshima » Aki-gun
 
| | Hiroshima Prefecture, Fuchu-cho, Aki-gun 広島県安芸郡府中町 |
| Bus "Fuchu Nagata bus stop" walk 2 minutes バス「府中永田バス停」歩2分 |
| ● Eco Jaws specification, Flat 35S corresponding ● parking two possible ●エコジョーズ仕様、フラット35S対応●駐車2台可能 |
| Parking two Allowed, LDK20 tatami mats or more, System kitchen, Bathroom Dryer, All room storageese-style room, Shaping land, Face-to-face kitchen, 2-story, Leafy residential area, Southwestward 駐車2台可、LDK20畳以上、システムキッチン、浴室乾燥機、全居室収納、和室、整形地、対面式キッチン、2階建、緑豊かな住宅地、南西向き |
Features pickup 特徴ピックアップ | | Parking two Allowed / LDK20 tatami mats or more / System kitchen / Bathroom Dryer / All room storage / Japanese-style room / Shaping land / Face-to-face kitchen / 2-story / Leafy residential area / Southwestward 駐車2台可 /LDK20畳以上 /システムキッチン /浴室乾燥機 /全居室収納 /和室 /整形地 /対面式キッチン /2階建 /緑豊かな住宅地 /南西向き | Price 価格 | | 30,800,000 yen 3080万円 | Floor plan 間取り | | 4LDK 4LDK | Units sold 販売戸数 | | 1 units 1戸 | Land area 土地面積 | | 140.38 sq m 140.38m2 | Building area 建物面積 | | 101.25 sq m 101.25m2 | Driveway burden-road 私道負担・道路 | | Nothing 無 | Completion date 完成時期(築年月) | | October 2013 2013年10月 | Address 住所 | | Hiroshima Prefecture, Fuchu-cho, Aki-gun Yawata 4 広島県安芸郡府中町八幡4 | Traffic 交通 | | Bus "Fuchu Nagata bus stop" walk 2 minutes バス「府中永田バス停」歩2分 | Related links 関連リンク | | [Related Sites of this company] 【この会社の関連サイト】 | Contact お問い合せ先 | | TEL: 0800-603-3220 [Toll free] mobile phone ・ Also available from PHS Caller ID is not notified Please contact the "saw SUUMO (Sumo)" If it does not lead, If the real estate company TEL:0800-603-3220【通話料無料】携帯電話・PHSからもご利用いただけます 発信者番号は通知されません 「SUUMO(スーモ)を見た」と問い合わせください つながらない方、不動産会社の方は
| Land of the right form 土地の権利形態 | | Ownership 所有権 | Structure and method of construction 構造・工法 | | Wooden 2-story 木造2階建 | Company profile 会社概要 | | <Mediation> Governor of Hiroshima Prefecture (3) No. 008940 (Ltd.) Fleet Yubinbango732-0057 Hiroshima, Hiroshima Prefecture, Higashi-ku, Futabanosato 2-8-28 <仲介>広島県知事(3)第008940号(株)フリート〒732-0057 広島県広島市東区二葉の里2-8-28 |
 Other
その他
Local appearance photo現地外観写真  Local (10 May 2013) Shooting
現地(2013年10月)撮影
 Local appearance photo
現地外観写真
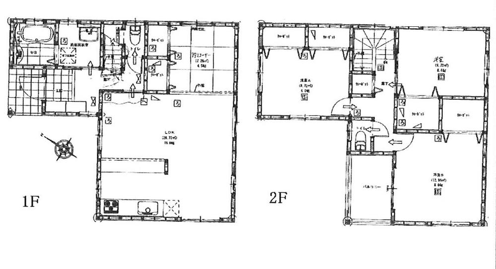
Floor plan間取り図  30,800,000 yen, 4LDK, Land area 140.38 sq m , Building area 101.25 sq m
3080万円、4LDK、土地面積140.38m2、建物面積101.25m2
 Local photos, including front road
前面道路含む現地写真
Location
|