New Homes » Chugoku » Hiroshima » Aki-gun


Aki-gun, Hiroshima Kumano-cho
Hiroshima Electric Railway "Nakamizo" walk 5 minutes
● parking because it is a corner lot wider front road Ease All rooms south per yang because lighting good ventilation also have home ● monthly payment I will also rent comparable to immediately guide you therefore do not hesitate to contact us
Penetration friendly environment around in all 5 compartment. You can go no burden to go shopping because it is flat land.
Features pickup
Pre-ground survey / Parking two Allowed / See the mountain / Yang per good / Corner lot / Japanese-style room / Face-to-face kitchen / Toilet 2 places / 2-story / Ventilation good / Storeroom / Flat terrain
Event information
Local guide Board (Please be sure to ask in advance) schedule / During the public time / 9:00 ~ 18:00 so you can also visit on weekdays, Please feel free to call us. 082-254-1400 (Ishigami)
Price
20.8 million yen
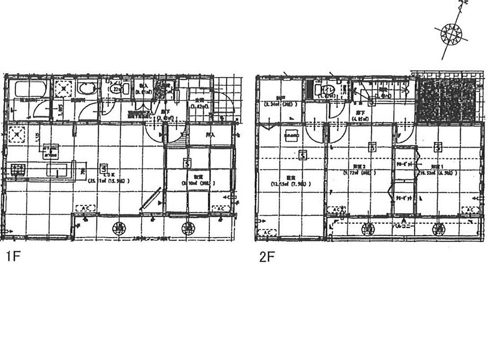
Floor plan
4LDK + S (storeroom)
Units sold
1 units
Total units
5 units
Land area
142.82 sq m (43.20 tsubo) (measured)
Building area
95.58 sq m (28.91 tsubo) (measured)
Driveway burden-road
Nothing, Northeast 5m width
Completion date
September 2013
Address
Aki-gun, Hiroshima Kumano-cho Dekiniwa 1
Traffic
Hiroshima Electric Railway "Nakamizo" walk 5 minutes JR Kure Line "Yano" walk 93 minutes
Related links
[Related Sites of this company]
Person in charge
Person in charge of real-estate and building Ishigami Shuji Age: 40 Daigyokai Experience: Shi ask the hope of the 12-year customer, We will strive to allow accurate advice.
Contact
TEL: 0800-603-8357 [Toll free] mobile phone ・ Also available from PHS
Caller ID is not notified
Please contact the "saw SUUMO (Sumo)"
If it does not lead, If the real estate company
Building coverage, floor area ratio
60% ・ 200%
Time residents
Immediate available
Land of the right form
Ownership
Structure and method of construction
Wooden 2-story
Use district
One dwelling
Overview and notices
Contact: Ishigami Shuji, Facilities: Public Water Supply, This sewage, Individual LPG, Parking: car space
Company profile
<Mediation> Governor of Hiroshima Prefecture (1) No. 009574 (Ltd.) F.four (F ・ Four) Yubinbango734-0007 Hiroshima, Hiroshima Prefecture, Minami-ku, Minami-cho, 1-11-23


Local appearance photo
Local appearance photo

Floor plan

Floor plan. 20.8 million yen, 4LDK + S (storeroom), Land area 142.82 sq m , Building area 95.58 sq m
20.8 million yen, 4LDK + S (storeroom), Land area 142.82 sq m , Building area 95.58 sq m

Kitchen
Kitchen

Living
Living

Bathroom
Bathroom

Non-living room

Non-living room. Western-style room
Western-style room

Wash basin, toilet
Wash basin, toilet

Receipt
Receipt

Toilet
Toilet

Garden
Garden

Balcony
Balcony

Shopping centre

Shopping centre. Until the Fashion Center Shimamura Kumano shop you can buy clothes of 1998m affordable price
Until the Fashion Center Shimamura Kumano shop you can buy clothes of 1998m affordable price

View photos from the dwelling unit
View photos from the dwelling unit

Non-living room
Non-living room

Supermarket

Supermarket. Yours until Kumano shop 1158m grocery is here
Yours until Kumano shop 1158m grocery is here

Non-living room

Non-living room. Japanese style room
Japanese style room

Convenience store

Convenience store. 424m Lawson is within walking distance to Lawson Kumano Nakamizo Third Street shop
424m Lawson is within walking distance to Lawson Kumano Nakamizo Third Street shop

Home center

Home center. Electrical shop of DEODEO 467m town to Kumano shop
Electrical shop of DEODEO 467m town to Kumano shop

Primary school

Primary school. Elementary school in the 1263m quiet place to Kumano Municipal Kumano first elementary school
Elementary school in the 1263m quiet place to Kumano Municipal Kumano first elementary school

Junior high school

Junior high school. Just the right distance to the movement of the 1057m junior high school students to Kumano Municipal Kumano Junior High School Temple
Just the right distance to the movement of the 1057m junior high school students to Kumano Municipal Kumano Junior High School Temple



Location