New Homes » Chugoku » Hiroshima » Aki-gun
 
| | Hiroshima Prefecture, Fuchu-cho, Aki-gun 広島県安芸郡府中町 |
| Hiroshima Electric Railway "Honcho 5-chome" walk 3 minutes 広島電鉄「本町5丁目」歩3分 |
| environment ・ Region ・ Close to the beautiful town development station to be loved for many years to come to the family home. Morning with a space, Tireless way home, You can feel happy every day 環境・地域・家族に末永く愛される美しい街づくり駅に近い家。ゆとりのある朝、疲れ知らずの帰り道、毎日実感満足できます |
Features pickup 特徴ピックアップ | | Pre-ground survey / System kitchen / All room storage / Flat to the station / LDK15 tatami mats or more / Shaping land / Face-to-face kitchen / Barrier-free / 2-story 地盤調査済 /システムキッチン /全居室収納 /駅まで平坦 /LDK15畳以上 /整形地 /対面式キッチン /バリアフリー /2階建 | Price 価格 | | 37,800,000 yen 3780万円 | Floor plan 間取り | | 4LDK 4LDK | Units sold 販売戸数 | | 1 units 1戸 | Land area 土地面積 | | 102.44 sq m (registration) 102.44m2(登記) | Building area 建物面積 | | 96.39 sq m (registration) 96.39m2(登記) | Driveway burden-road 私道負担・道路 | | Nothing 無 | Completion date 完成時期(築年月) | | February 2014 2014年2月 | Address 住所 | | Hiroshima Prefecture, Fuchu-cho, Aki-gun Tsurue 1 広島県安芸郡府中町鶴江1 | Traffic 交通 | | Hiroshima Electric Railway "Honcho 5-chome" walk 3 minutes 広島電鉄「本町5丁目」歩3分 | Person in charge 担当者より | | Between the person in charge of early Yoshihiko Nice to meet you, It is early between the customers in charge. That the property, By do a thing of the mortgage is also Please feel free to contact us. Thank you so end you can long-term relationship. 担当者早間 仁彦はじめまして、お客様担当の早間です。物件のこと、住宅ローンのことなんでもお気軽にご相談下さい。末長いお付き合いができますようよろしくお願いします。 | Contact お問い合せ先 | | TEL: 0800-603-3620 [Toll free] mobile phone ・ Also available from PHS Caller ID is not notified Please contact the "saw SUUMO (Sumo)" If it does not lead, If the real estate company TEL:0800-603-3620【通話料無料】携帯電話・PHSからもご利用いただけます 発信者番号は通知されません 「SUUMO(スーモ)を見た」と問い合わせください つながらない方、不動産会社の方は
| Time residents 入居時期 | | February 2014 schedule 2014年2月予定 | Land of the right form 土地の権利形態 | | Ownership 所有権 | Structure and method of construction 構造・工法 | | Wooden 2-story 木造2階建 | Use district 用途地域 | | One dwelling 1種住居 | Overview and notices その他概要・特記事項 | | The person in charge: Fast between Yoshihiko, Facilities: private water, This sewage, City gas, Building confirmation number: 02010 担当者:早間 仁彦、設備:私設水道、本下水、都市ガス、建築確認番号:02010 | Company profile 会社概要 | | <Mediation> Governor of Hiroshima Prefecture (6) Article 006948 No. cosmid Real Estate Co., Ltd. Yubinbango733-0002 Hiroshima, Hiroshima Prefecture, Nishi-ku, Kusunoki-cho, 1-13-11 <仲介>広島県知事(6)第006948号木住不動産(株)〒733-0002 広島県広島市西区楠木町1-13-11 |
 Local appearance photo
現地外観写真
 Local appearance photo
現地外観写真
 Local photos, including front road
前面道路含む現地写真
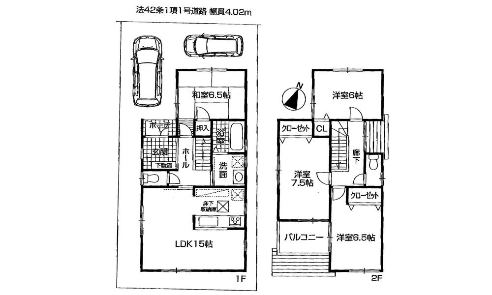
Floor plan間取り図  37,800,000 yen, 4LDK, Land area 102.44 sq m , Building area 96.39 sq m
3780万円、4LDK、土地面積102.44m2、建物面積96.39m2
 Local photos, including front road
前面道路含む現地写真
Shopping centreショッピングセンター  Toys R Us Babies R Us 1198m to Fuchu, Hiroshima shop
トイザらスベビーザらス広島府中店まで1198m
Supermarketスーパー  539m to spark Fuchu store
スパーク府中店まで539m
Primary school小学校  789m to Fuchu-cho stand Fuchu Elementary School
府中町立府中小学校まで789m
Junior high school中学校  1400m to Fuchu Junior High School
府中中学校まで1400m
Location
|