New Homes » Chugoku » Hiroshima » Aki-gun


Aki-gun, Hiroshima Kaita-cho
Bus "courser opening" walk 1 minute
2F of is more than six quires three rooms. It seems can be useful 3 pledge of free space also
Features pickup
Year Available / Parking two Allowed / System kitchen / Bathroom Dryer / Yang per good / A quiet residential area / LDK15 tatami mats or more / Japanese-style room / Washbasin with shower / Face-to-face kitchen / Toilet 2 places / Bathroom 1 tsubo or more / 2-story / 2 or more sides balcony / Warm water washing toilet seat / The window in the bathroom / All rooms are two-sided lighting / Flat terrain
Price
27.6 million yen
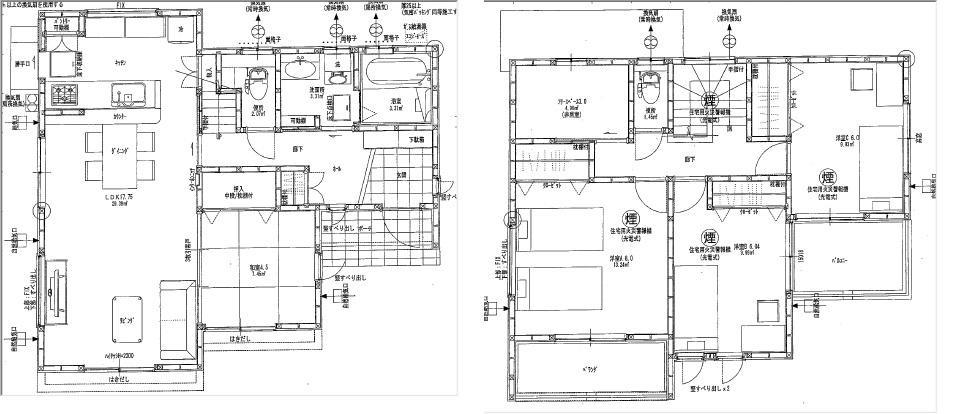
Floor plan
4LDK + S (storeroom)
Units sold
1 units
Land area
133 sq m (40.23 tsubo) (Registration)
Building area
108.88 sq m (32.93 square meters)
Driveway burden-road
Nothing, Southeast 4.2m width
Completion date
July 2013
Address
Aki-gun, Hiroshima Kaita-cho ridge 2
Traffic
Bus "courser opening" walk 1 minute
Related links
[Related Sites of this company]
Contact
TEL: 082-568-1150 Please inquire as "saw SUUMO (Sumo)"
Building coverage, floor area ratio
60% ・ 200%
Time residents
Immediate available
Land of the right form
Ownership
Structure and method of construction
Wooden 2-story
Use district
One dwelling
Overview and notices
Facilities: Public Water Supply, This sewage, City gas, Parking: car space
Company profile
<Mediation> Governor of Hiroshima Prefecture (1) No. 010121 bamboo Corporation (Corporation) Yubinbango732-0817 Hiroshima, Hiroshima Prefecture, Minami-ku, Hijiyama cho 4-11


Local appearance photo
Local appearance photo

Floor plan

Floor plan. 27.6 million yen, 4LDK + S (storeroom), Land area 133 sq m , Building area 108.88 sq m
27.6 million yen, 4LDK + S (storeroom), Land area 133 sq m , Building area 108.88 sq m

Living
Living

Local appearance photo
Local appearance photo

Living
Living

Bathroom
Bathroom

Kitchen
Kitchen

Non-living room
Non-living room

Entrance
Entrance

Wash basin, toilet
Wash basin, toilet

Receipt
Receipt

Toilet
Toilet

Balcony
Balcony

Supermarket

Supermarket. 948m until Marche over Nakano shop
948m until Marche over Nakano shop

View photos from the dwelling unit
View photos from the dwelling unit

Living
Living

Non-living room
Non-living room

Entrance
Entrance

Receipt
Receipt

Supermarket. 1083m to Yours Senogawa shop
1083m to Yours Senogawa shop

Living
Living



Location