New Homes » Chugoku » Hiroshima » Asakita Ku
 
| | Hiroshima, Hiroshima Prefecture Asakita Ku 広島県広島市安佐北区 |
| Hiroden "Kamikoda" walk 5 minutes 広電「上小田」歩5分 |
| All-electric, A quiet residential area, Parking two Allowed, Flat terrain, Face-to-face kitchen, Riverside, Pre-ground survey, Year Available, See the mountain, Super close, System kitchen, Bathroom Dryer, All room storage オール電化、閑静な住宅地、駐車2台可、平坦地、対面式キッチン、リバーサイド、地盤調査済、年内入居可、山が見える、スーパーが近い、システムキッチン、浴室乾燥機、全居室収納 |
| All-electric, A quiet residential area, Parking two Allowed, Flat terrain, Face-to-face kitchen, Riverside, Pre-ground survey, Year Available, See the mountain, Super close, System kitchen, Bathroom Dryer, All room storage, LDK15 tatami mats or more, Around traffic fewerese-style room, Washbasin with shower, Toilet 2 places, 2-story, 2 or more sides balcony, Double-glazing, Otobasu, Warm water washing toilet seat, The window in the bathroom, IH cooking heater, Dish washing dryer, Water filter オール電化、閑静な住宅地、駐車2台可、平坦地、対面式キッチン、リバーサイド、地盤調査済、年内入居可、山が見える、スーパーが近い、システムキッチン、浴室乾燥機、全居室収納、LDK15畳以上、周辺交通量少なめ、和室、シャワー付洗面台、トイレ2ヶ所、2階建、2面以上バルコニー、複層ガラス、オートバス、温水洗浄便座、浴室に窓、IHクッキングヒーター、食器洗乾燥機、浄水器 |
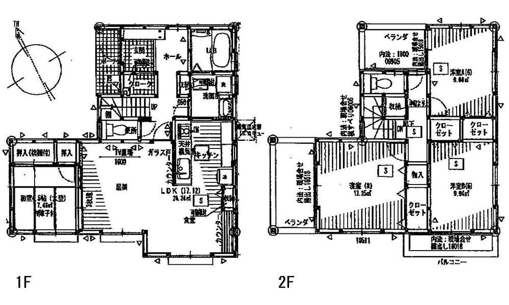
Features pickup 特徴ピックアップ | | Pre-ground survey / Year Available / Parking two Allowed / Riverside / See the mountain / Super close / System kitchen / Bathroom Dryer / All room storage / A quiet residential area / LDK15 tatami mats or more / Around traffic fewer / Japanese-style room / Washbasin with shower / Face-to-face kitchen / Toilet 2 places / 2-story / 2 or more sides balcony / Double-glazing / Otobasu / Warm water washing toilet seat / The window in the bathroom / IH cooking heater / Dish washing dryer / Water filter / All-electric / Flat terrain 地盤調査済 /年内入居可 /駐車2台可 /リバーサイド /山が見える /スーパーが近い /システムキッチン /浴室乾燥機 /全居室収納 /閑静な住宅地 /LDK15畳以上 /周辺交通量少なめ /和室 /シャワー付洗面台 /対面式キッチン /トイレ2ヶ所 /2階建 /2面以上バルコニー /複層ガラス /オートバス /温水洗浄便座 /浴室に窓 /IHクッキングヒーター /食器洗乾燥機 /浄水器 /オール電化 /平坦地 | Price 価格 | | 27,800,000 yen 2780万円 | Floor plan 間取り | | 4LDK 4LDK | Units sold 販売戸数 | | 1 units 1戸 | Total units 総戸数 | | 2 units 2戸 | Land area 土地面積 | | 149.71 sq m (registration) 149.71m2(登記) | Building area 建物面積 | | 105.16 sq m (registration) 105.16m2(登記) | Driveway burden-road 私道負担・道路 | | Nothing, West 4m width 無、西4m幅 | Completion date 完成時期(築年月) | | August 2013 2013年8月 | Address 住所 | | Hiroshima, Hiroshima Prefecture Asakita Ku Kuchitaminami 1 広島県広島市安佐北区口田南1 | Traffic 交通 | | Hiroden "Kamikoda" walk 5 minutes 広電「上小田」歩5分 | Person in charge 担当者より | | Rep Mukai 担当者向井 | Contact お問い合せ先 | | TEL: 0120-322882 [Toll free] Please contact the "saw SUUMO (Sumo)" TEL:0120-322882【通話料無料】「SUUMO(スーモ)を見た」と問い合わせください | Building coverage, floor area ratio 建ぺい率・容積率 | | 60% ・ 200% 60%・200% | Time residents 入居時期 | | 2 months after the contract 契約後2ヶ月 | Land of the right form 土地の権利形態 | | Ownership 所有権 | Structure and method of construction 構造・工法 | | Wooden 2-story 木造2階建 | Use district 用途地域 | | One dwelling 1種住居 | Overview and notices その他概要・特記事項 | | Contact: Mukai, Facilities: Public Water Supply, This sewage, All-electric, Building confirmation number: 2783, Parking: Garage 担当者:向井、設備:公営水道、本下水、オール電化、建築確認番号:2783、駐車場:車庫 | Company profile 会社概要 | | <Mediation> Governor of Hiroshima Prefecture (7) No. 005935 (Ltd.) Fuji real estate sales Yubinbango730-0847 Hiroshima medium Hiroshima District Funairiminami 1-10-20 <仲介>広島県知事(7)第005935号(株)富士不動産販売〒730-0847 広島県広島市中区舟入南1-10-20 |
 Local appearance photo
現地外観写真
 Local photos, including front road
前面道路含む現地写真
Floor plan間取り図  27,800,000 yen, 4LDK, Land area 149.71 sq m , Building area 105.16 sq m
2780万円、4LDK、土地面積149.71m2、建物面積105.16m2
Location
|