New Homes » Chugoku » Hiroshima » Asaminami
 
| | Hiroshima, Hiroshima Prefecture Asaminami 広島県広島市安佐南区 |
| Hiroshima Rapid Transit Astram "Nakasuji" walk 10 minutes 広島高速交通アストラムライン「中筋」歩10分 |
| Quiet sink, Artificial marble top plate, Easy-to-use is a good beautiful system kitchen water purification function with faucet. Living environment is good. 静音シンク、人工大理石天板、浄水機能付水栓で使い勝手の良い美しいシステムキッチンです。 住環境良好です。 |
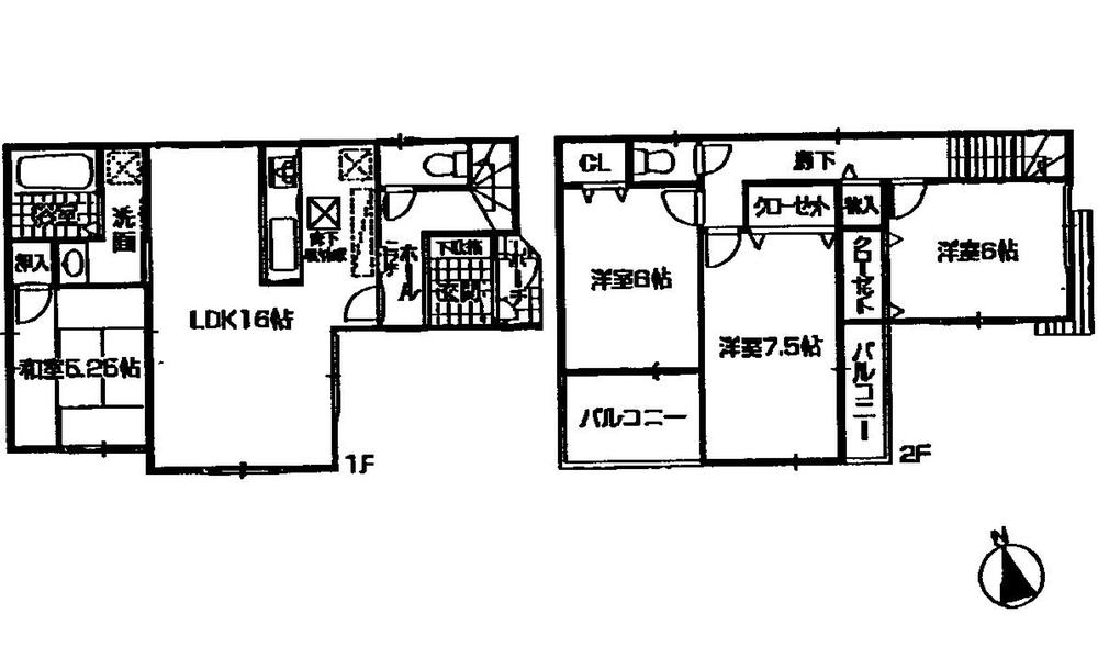
Features pickup 特徴ピックアップ | | Measures to conserve energy / Corresponding to the flat-35S / System kitchen / LDK15 tatami mats or more / Japanese-style room / Face-to-face kitchen / Toilet 2 places / Bathroom 1 tsubo or more / 2-story / Double-glazing / TV monitor interphone / Water filter / City gas 省エネルギー対策 /フラット35Sに対応 /システムキッチン /LDK15畳以上 /和室 /対面式キッチン /トイレ2ヶ所 /浴室1坪以上 /2階建 /複層ガラス /TVモニタ付インターホン /浄水器 /都市ガス | Price 価格 | | 29,800,000 yen 2980万円 | Floor plan 間取り | | 4LDK 4LDK | Units sold 販売戸数 | | 1 units 1戸 | Land area 土地面積 | | 116.18 sq m 116.18m2 | Building area 建物面積 | | 95.98 sq m 95.98m2 | Driveway burden-road 私道負担・道路 | | Nothing, East 4m width 無、東4m幅 | Completion date 完成時期(築年月) | | July 2013 2013年7月 | Address 住所 | | Hiroshima, Hiroshima Prefecture Asaminami Sendai 1 広島県広島市安佐南区川内1 | Traffic 交通 | | Hiroshima Rapid Transit Astram "Nakasuji" walk 10 minutes 広島高速交通アストラムライン「中筋」歩10分
| Contact お問い合せ先 | | TEL: 0800-603-1864 [Toll free] mobile phone ・ Also available from PHS Caller ID is not notified Please contact the "saw SUUMO (Sumo)" If it does not lead, If the real estate company TEL:0800-603-1864【通話料無料】携帯電話・PHSからもご利用いただけます 発信者番号は通知されません 「SUUMO(スーモ)を見た」と問い合わせください つながらない方、不動産会社の方は
| Building coverage, floor area ratio 建ぺい率・容積率 | | 60% ・ 200% 60%・200% | Time residents 入居時期 | | Consultation 相談 | Land of the right form 土地の権利形態 | | Ownership 所有権 | Structure and method of construction 構造・工法 | | Wooden 2-story 木造2階建 | Use district 用途地域 | | One dwelling 1種住居 | Overview and notices その他概要・特記事項 | | Facilities: Public Water Supply, This sewage, City gas, Building confirmation number: Se 02950, Parking: car space 設備:公営水道、本下水、都市ガス、建築確認番号:セ02950、駐車場:カースペース | Company profile 会社概要 | | <Mediation> Governor of Hiroshima Prefecture (6) Article 006776 No. Heiwa Real Estate Sales Co., Ltd. Yubinbango731-0144 Hiroshima, Hiroshima Prefecture Asaminami Takatorikita 3-3-25 <仲介>広島県知事(6)第006776号平和不動産販売(株)〒731-0144 広島県広島市安佐南区高取北3-3-25 |
Floor plan間取り図  29,800,000 yen, 4LDK, Land area 116.18 sq m , Building area 95.98 sq m
2980万円、4LDK、土地面積116.18m2、建物面積95.98m2
Local appearance photo現地外観写真  Living environment favorable
住環境良好
 Completed mid-July completion already
完成7月中旬完成済
 Local appearance photo
現地外観写真
Local photos, including front road前面道路含む現地写真  Front street: East 4m
前面道路:東4m
Parking lot駐車場  Parking: two Allowed
駐車場:2台可
 Local appearance photo
現地外観写真
 Local photos, including front road
前面道路含む現地写真
 Local appearance photo
現地外観写真
Location
|