New Homes » Chugoku » Hiroshima » Asaminami


Hiroshima, Hiroshima Prefecture Asaminami
Hiroshima Rapid Transit Astram "Furuichi" walk 13 minutes
Chikashi in Hiroshima interchange!
Features pickup
Corresponding to the flat-35S / Pre-ground survey / Parking two Allowed / System kitchen / Bathroom Dryer / Yang per good / A quiet residential area / LDK15 tatami mats or more / Washbasin with shower / Face-to-face kitchen / Wide balcony / Barrier-free / Toilet 2 places / 2-story / Double-glazing / Otobasu / Warm water washing toilet seat / The window in the bathroom / TV monitor interphone / Ventilation good / Water filter
Price
28.8 million yen
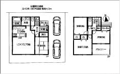
Floor plan
4LDK
Units sold
1 units
Land area
113.87 sq m (34.44 tsubo) (Registration)
Building area
95.58 sq m (28.91 tsubo) (measured)
Driveway burden-road
Nothing, North 4m width
Completion date
August 2013
Address
Hiroshima, Hiroshima Prefecture Asaminami Sendai 2
Traffic
Hiroshima Rapid Transit Astram "Furuichi" walk 13 minutes
Related links
[Related Sites of this company]
Person in charge
Person in charge of real-estate and building Iwata Ohmaki Age: 40 Daigyokai Experience: 12 years Born in Hiroshima in Hiroshima and raised. Still is a 46-year-old cheerful. We support our customers so that the future is said to be "in charge was good Iwata". Let's look for a dream of my home with me.
Contact
TEL: 082-568-1150 Please inquire as "saw SUUMO (Sumo)"
Building coverage, floor area ratio
60% ・ 200%
Time residents
Consultation
Land of the right form
Ownership
Structure and method of construction
Wooden 2-story (framing method)
Use district
One dwelling
Overview and notices
Contact: Iwata Ohmaki, Facilities: Public Water Supply, This sewage, City gas, Building confirmation number: 00192, Parking: car space
Company profile
<Mediation> Governor of Hiroshima Prefecture (1) No. 010121 bamboo Corporation (Corporation) Yubinbango732-0817 Hiroshima, Hiroshima Prefecture, Minami-ku, Hijiyama cho 4-11


Local appearance photo
Local appearance photo

Same specifications photo (kitchen)
Same specifications photo (kitchen)

Floor plan

Floor plan. 28.8 million yen, 4LDK, Land area 113.87 sq m , Building area 95.58 sq m
28.8 million yen, 4LDK, Land area 113.87 sq m , Building area 95.58 sq m

Same specifications photos (living)
Same specifications photos (living)

Same specifications photo (bathroom)
Same specifications photo (bathroom)

Same specifications photo (kitchen)
Same specifications photo (kitchen)

Local photos, including front road
Local photos, including front road

Same specifications photos (Other introspection)
Same specifications photos (Other introspection)

Other
Other

Same specifications photo (kitchen)
Same specifications photo (kitchen)

Same specifications photos (Other introspection)
Same specifications photos (Other introspection)

Same specifications photos (Other introspection)
Same specifications photos (Other introspection)

Same specifications photos (Other introspection)
Same specifications photos (Other introspection)

Same specifications photos (Other introspection)
Same specifications photos (Other introspection)

Same specifications photos (Other introspection)
Same specifications photos (Other introspection)

Same specifications photos (Other introspection)
Same specifications photos (Other introspection)

Same specifications photos (Other introspection)
Same specifications photos (Other introspection)

Same specifications photos (Other introspection)
Same specifications photos (Other introspection)

Same specifications photos (Other introspection)
Same specifications photos (Other introspection)

Same specifications photos (Other introspection)
Same specifications photos (Other introspection)



Location