New Homes » Chugoku » Hiroshima » Asaminami
 
| | Hiroshima, Hiroshima Prefecture Asaminami 広島県広島市安佐南区 |
| Bus "Minori" walk 3 minutes バス「茅原」歩3分 |
| Yours, Sanribu nearby shopping very convenient. There is a large cloak the entrance, Storage very convenient. ユアーズ、サンリブ近く買い物大変便利。玄関には大型クロークあり、収納大変便利。 |
Features pickup 特徴ピックアップ | | Corresponding to the flat-35S / System kitchen / Yang per good / All room storage / Flat to the station / A quiet residential area / Or more before road 6m / Toilet 2 places / 2-story / The window in the bathroom / All living room flooring / IH cooking heater / All-electric / Flat terrain フラット35Sに対応 /システムキッチン /陽当り良好 /全居室収納 /駅まで平坦 /閑静な住宅地 /前道6m以上 /トイレ2ヶ所 /2階建 /浴室に窓 /全居室フローリング /IHクッキングヒーター /オール電化 /平坦地 | Price 価格 | | 35,800,000 yen 3580万円 | Floor plan 間取り | | 4LDK 4LDK | Units sold 販売戸数 | | 1 units 1戸 | Land area 土地面積 | | 118.4 sq m 118.4m2 | Building area 建物面積 | | 97.7 sq m 97.7m2 | Driveway burden-road 私道負担・道路 | | Nothing, North 6m width 無、北6m幅 | Completion date 完成時期(築年月) | | October 2013 2013年10月 | Address 住所 | | Yamamoto, Hiroshima, Hiroshima Prefecture Asaminami 1 広島県広島市安佐南区山本1 | Traffic 交通 | | Bus "Minori" walk 3 minutes バス「茅原」歩3分 | Contact お問い合せ先 | | TEL: 0800-603-3220 [Toll free] mobile phone ・ Also available from PHS Caller ID is not notified Please contact the "saw SUUMO (Sumo)" If it does not lead, If the real estate company TEL:0800-603-3220【通話料無料】携帯電話・PHSからもご利用いただけます 発信者番号は通知されません 「SUUMO(スーモ)を見た」と問い合わせください つながらない方、不動産会社の方は
| Building coverage, floor area ratio 建ぺい率・容積率 | | 60% ・ 200% 60%・200% | Time residents 入居時期 | | Consultation 相談 | Land of the right form 土地の権利形態 | | Ownership 所有権 | Structure and method of construction 構造・工法 | | Wooden 2-story 木造2階建 | Use district 用途地域 | | Two dwellings 2種住居 | Overview and notices その他概要・特記事項 | | Facilities: Public Water Supply, This sewage, All-electric, Building confirmation number: Se 00938, Parking: car space 設備:公営水道、本下水、オール電化、建築確認番号:セ00938、駐車場:カースペース | Company profile 会社概要 | | <Mediation> Governor of Hiroshima Prefecture (3) No. 008940 (Ltd.) Fleet Yubinbango732-0057 Hiroshima, Hiroshima Prefecture, Higashi-ku, Futabanosato 2-8-28 <仲介>広島県知事(3)第008940号(株)フリート〒732-0057 広島県広島市東区二葉の里2-8-28 |
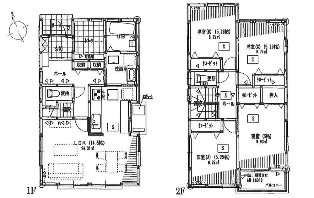
Floor plan間取り図  35,800,000 yen, 4LDK, Land area 118.4 sq m , Building area 97.7 sq m
3580万円、4LDK、土地面積118.4m2、建物面積97.7m2
 Local photos, including front road
前面道路含む現地写真
 Local photos, including front road
前面道路含む現地写真
Local appearance photo現地外観写真  Local (10 May 2013) Shooting
現地(2013年10月)撮影
 Other local
その他現地
 Other local
その他現地
Location
|