New Homes » Chugoku » Hiroshima » Asaminami
 
| | Hiroshima, Hiroshima Prefecture Asaminami 広島県広島市安佐南区 |
| Hiroshima Rapid Transit Astram "Nakasuji" walk 10 minutes 広島高速交通アストラムライン「中筋」歩10分 |
| A must-see! If you are looking for Asutoramu available !! wayside above アストラム利用可能!!沿線上をお探しの方必見!! |
| Equipment also comes with still or shutter with shutters and LOE-E pair glass and water purifier. Also good location ・ The house is also good. 装備もシャッター付雨戸やLOE-Eペアガラスや浄水器等マダマダ付いてます。場所も良し・家も良しです。 |
Features pickup 特徴ピックアップ | | Measures to conserve energy / Corresponding to the flat-35S / Pre-ground survey / Parking two Allowed / Immediate Available / System kitchen / Bathroom Dryer / All room storage / LDK15 tatami mats or more / Japanese-style room / Washbasin with shower / Face-to-face kitchen / Wide balcony / Toilet 2 places / 2-story / 2 or more sides balcony / South balcony / Double-glazing / Zenshitsuminami direction / Underfloor Storage / The window in the bathroom / TV monitor interphone / Water filter / City gas / Flat terrain 省エネルギー対策 /フラット35Sに対応 /地盤調査済 /駐車2台可 /即入居可 /システムキッチン /浴室乾燥機 /全居室収納 /LDK15畳以上 /和室 /シャワー付洗面台 /対面式キッチン /ワイドバルコニー /トイレ2ヶ所 /2階建 /2面以上バルコニー /南面バルコニー /複層ガラス /全室南向き /床下収納 /浴室に窓 /TVモニタ付インターホン /浄水器 /都市ガス /平坦地 | Price 価格 | | 29,800,000 yen 2980万円 | Floor plan 間取り | | 4LDK 4LDK | Units sold 販売戸数 | | 1 units 1戸 | Total units 総戸数 | | 1 units 1戸 | Land area 土地面積 | | 116.18 sq m (35.14 tsubo) (Registration) 116.18m2(35.14坪)(登記) | Building area 建物面積 | | 95.98 sq m (29.03 tsubo) (Registration) 95.98m2(29.03坪)(登記) | Driveway burden-road 私道負担・道路 | | Nothing, East 4m width 無、東4m幅 | Completion date 完成時期(築年月) | | July 2013 2013年7月 | Address 住所 | | Hiroshima, Hiroshima Prefecture Asaminami Sendai 1 広島県広島市安佐南区川内1 | Traffic 交通 | | Hiroshima Rapid Transit Astram "Nakasuji" walk 10 minutes 広島高速交通アストラムライン「中筋」歩10分
| Contact お問い合せ先 | | (Ltd.) Strawberry Real Estate TEL: 082-573-0828 Please inquire as "saw SUUMO (Sumo)" (株)いちご不動産TEL:082-573-0828「SUUMO(スーモ)を見た」と問い合わせください | Expenses 諸費用 | | CATV initial Cost: TBD, Flat fee: unspecified amount CATV初期費用:金額未定、定額料金:金額未定 | Building coverage, floor area ratio 建ぺい率・容積率 | | 60% ・ 200% 60%・200% | Time residents 入居時期 | | Immediate available 即入居可 | Land of the right form 土地の権利形態 | | Ownership 所有権 | Structure and method of construction 構造・工法 | | Wooden 2-story 木造2階建 | Use district 用途地域 | | One dwelling 1種住居 | Overview and notices その他概要・特記事項 | | Facilities: Public Water Supply, This sewage, City gas, Parking: car space 設備:公営水道、本下水、都市ガス、駐車場:カースペース | Company profile 会社概要 | | <Mediation> Governor of Hiroshima Prefecture (1) No. 010198 (Ltd.) strawberry real estate Yubinbango739-1733 Hiroshima, Hiroshima Prefecture Asakita Ku Kuchitaminami 4-48-16 <仲介>広島県知事(1)第010198号(株)いちご不動産〒739-1733 広島県広島市安佐北区口田南4-48-16 |
Local appearance photo現地外観写真  Local (August 2013) Shooting
現地(2013年8月)撮影
Kitchenキッチン  Room (August 2013) Shooting Underfloor Storage Yes
室内(2013年8月)撮影 床下収納有
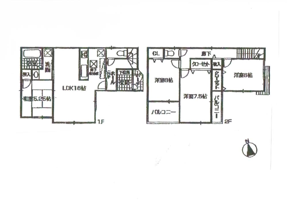
Floor plan間取り図  29,800,000 yen, 4LDK, Land area 116.18 sq m , Building area 95.98 sq m
2980万円、4LDK、土地面積116.18m2、建物面積95.98m2
Livingリビング  Room (August 2013) Shooting
室内(2013年8月)撮影
Bathroom浴室  Room (August 2013) Shooting Bathroom with heating dryer
室内(2013年8月)撮影 浴室暖房乾燥機付
Kitchenキッチン  Room (August 2013) Shooting
室内(2013年8月)撮影
Non-living roomリビング以外の居室  Room (August 2013) Shooting
室内(2013年8月)撮影
Entrance玄関  Local (August 2013) Shooting
現地(2013年8月)撮影
Wash basin, toilet洗面台・洗面所  Room (August 2013) Shooting
室内(2013年8月)撮影
Toiletトイレ  Room (August 2013) Shooting
室内(2013年8月)撮影
Balconyバルコニー  Local (August 2013) Shooting
現地(2013年8月)撮影
Other introspectionその他内観  Room (August 2013) Shooting
室内(2013年8月)撮影
Non-living roomリビング以外の居室  Room (August 2013) Shooting
室内(2013年8月)撮影
Entrance玄関  Local (August 2013) Shooting
現地(2013年8月)撮影
Toiletトイレ  Room (August 2013) Shooting
室内(2013年8月)撮影
Balconyバルコニー  Local (August 2013) Shooting
現地(2013年8月)撮影
Other introspectionその他内観  Room (August 2013) Shooting
室内(2013年8月)撮影
Non-living roomリビング以外の居室  Room (August 2013) Shooting
室内(2013年8月)撮影
Entrance玄関  Local (August 2013) Shooting
現地(2013年8月)撮影
Non-living roomリビング以外の居室  Room (August 2013) Shooting
室内(2013年8月)撮影
Location
|