New Homes » Chugoku » Hiroshima » Asaminami


Hiroshima, Hiroshima Prefecture Asaminami
Hiroshima Rapid Transit Astram "Takatori" walk 6 minutes
All two buildings Yumetaun near Astram Available Flat
■ Flat 35S Energy saving ■ Facing east
Features pickup
Pre-ground survey / Parking two Allowed / System kitchen / Flat to the station / Barrier-free / 2-story / Flat terrain
Event information
Please feel free to contact us in advance so that we can guide you if you can connect. Responsible Kaya Books 090-4105-3911
Price
23.8 million yen
Floor plan
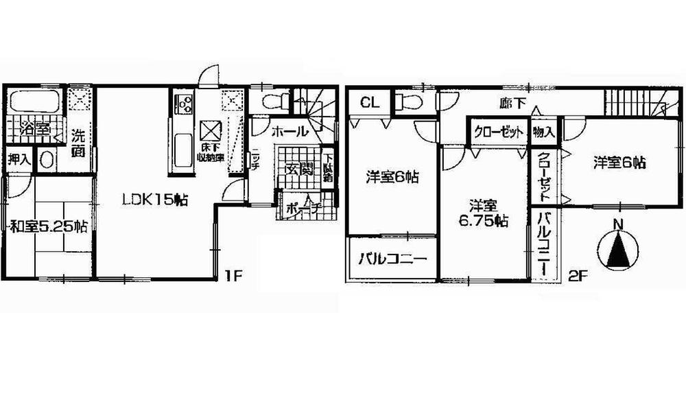
4LDK
Units sold
1 units
Total units
2 units
Land area
100.45 sq m
Building area
93.14 sq m
Driveway burden-road
Nothing
Completion date
October 2013
Address
Hiroshima, Hiroshima Prefecture Asaminami Takatoriminami 1
Traffic
Hiroshima Rapid Transit Astram "Takatori" walk 6 minutes
Person in charge
Rep Yoshiyuki Fujinaka
Contact
TEL: 0800-603-3620 [Toll free] mobile phone ・ Also available from PHS
Caller ID is not notified
Please contact the "saw SUUMO (Sumo)"
If it does not lead, If the real estate company
Time residents
1 month after the contract
Land of the right form
Ownership
Structure and method of construction
Wooden 2-story
Overview and notices
Contact: Yoshiyuki Fujinaka, Facilities: Public Water Supply, This sewage, Individual LPG, Building confirmation number: 0098, Parking: car space
Company profile
<Mediation> Governor of Hiroshima Prefecture (6) Article 006948 No. cosmid Real Estate Co., Ltd. Yubinbango733-0002 Hiroshima, Hiroshima Prefecture, Nishi-ku, Kusunoki-cho, 1-13-11


Local appearance photo
Local appearance photo

Floor plan

Floor plan. 23.8 million yen, 4LDK, Land area 100.45 sq m , Building area 93.14 sq m
23.8 million yen, 4LDK, Land area 100.45 sq m , Building area 93.14 sq m

Living
Living

Bathroom
Bathroom

Kitchen
Kitchen

Toilet
Toilet

Local photos, including front road
Local photos, including front road

Parking lot
Parking lot

Station

station. 440m to Takatori Station
440m to Takatori Station

Other
Other

Primary school

Primary school. Anzai to elementary school 1200m
Anzai to elementary school 1200m

Junior high school

Junior high school. Anzai 1700m until junior high school
Anzai 1700m until junior high school

Shopping centre

Shopping centre. Until Yumetaun 440m
Until Yumetaun 440m



Location