New Homes » Chugoku » Hiroshima » Hatsukaichi


Hatsukaichi, Hiroshima Prefecture
Bus "cobblestone" walk 4 minutes
All-electric house (Eco Cute ・ IH heater) Flat 35S Available Energy-saving 1603-63 of the entrance will be on common land.
Features pickup
2-story / IH cooking heater / Walk-in closet / All-electric
Price
23.8 million yen
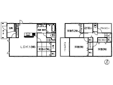
Floor plan
4LDK
Units sold
1 units
Land area
285.93 sq m (86.49 tsubo) (Registration)
Building area
108.88 sq m (32.93 tsubo) (Registration)
Driveway burden-road
Nothing, Northwest 4m width
Completion date
April 2013
Address
Hatsukaichi, Hiroshima Prefecture cobblestone 1
Traffic
Bus "cobblestone" walk 4 minutes
Contact
TEL: 0800-603-3432 [Toll free] mobile phone ・ Also available from PHS
Caller ID is not notified
Please contact the "saw SUUMO (Sumo)"
If it does not lead, If the real estate company
Building coverage, floor area ratio
60% ・ 200%
Time residents
Consultation
Land of the right form
Ownership
Structure and method of construction
Wooden 2-story
Use district
One middle and high
Other limitations
※ Property information full of Hatsukaichi ☆ [Search in the living Research, Inc.!]
Overview and notices
Facilities: Public Water Supply, This sewage, Building confirmation number: 365, Parking: No
Company profile
<Mediation> Governor of Hiroshima Prefecture (3) No. 008815 (Ltd.) Jukensha Yubinbango731-5136 Hiroshima, Hiroshima Prefecture Saeki-ku Rakurakuen 2-1-30


Local appearance photo
Local appearance photo

Floor plan

Floor plan. 23.8 million yen, 4LDK, Land area 285.93 sq m , Building area 108.88 sq m
23.8 million yen, 4LDK, Land area 285.93 sq m , Building area 108.88 sq m

Local appearance photo
Local appearance photo

Local appearance photo
Local appearance photo

Entrance
Entrance

Government office

Government office. Hatsukaichi City Hall 2064m to Ohno Branch
Hatsukaichi City Hall 2064m to Ohno Branch

Local appearance photo
Local appearance photo

Entrance
Entrance

Primary school

Primary school. 2076m to Nishi Elementary School Ohno
2076m to Nishi Elementary School Ohno

Local appearance photo

Local appearance photo. Parking lot
Parking lot

Junior high school

Junior high school. 2361m to Ohno junior high school
2361m to Ohno junior high school

Local appearance photo

Local appearance photo. Garden
Garden

Local appearance photo. Garden
Garden



Location