|
|
Hatsukaichi, Hiroshima Prefecture
広島県廿日市市
|
|
JR Sanyo Line "Hatsukaichi" walk 5 minutes
JR山陽本線「廿日市」歩5分
|
|
■ Orderly construction has been residential land ■ With building conditions Try to draw a house favorite in the free design ■ Where you can walk from the train station, There is also is a happy good location for children school near
■整然と造成された宅地■建築条件付き 自由設計で好みの住まいを描こう■駅から歩ける場所で、近くに学校もありお子様にも嬉しい好立地です
|
|
■ Orderly construction has been residential land ■ With building conditions Try to draw a house favorite in the free design ■ Where you can walk from the train station, There is also is a happy good location for children school near
■整然と造成された宅地■建築条件付き 自由設計で好みの住まいを描こう■駅から歩ける場所で、近くに学校もありお子様にも嬉しい好立地です
|
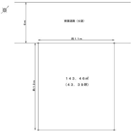
Features pickup 特徴ピックアップ | | Vacant lot passes / Flat to the station / Or more before road 6m / Shaping land / Flat terrain / Readjustment land within 更地渡し /駅まで平坦 /前道6m以上 /整形地 /平坦地 /区画整理地内 |
Price 価格 | | 19.5 million yen 1950万円 |
Building coverage, floor area ratio 建ぺい率・容積率 | | 60% ・ 200% 60%・200% |
Sales compartment 販売区画数 | | 1 compartment 1区画 |
Land area 土地面積 | | 143.46 sq m (43.39 square meters) 143.46m2(43.39坪) |
Driveway burden-road 私道負担・道路 | | Nothing, Northwest 6m width (contact the road width 11m) 無、北西6m幅(接道幅11m) |
Land situation 土地状況 | | Vacant lot 更地 |
Address 住所 | | Hatsukaichi, Hiroshima Prefecture Sagata 広島県廿日市市佐方 |
Traffic 交通 | | JR Sanyo Line "Hatsukaichi" walk 5 minutes Hiroden Miyajima Line "Sanyo college before" walk 7 minutes JR山陽本線「廿日市」歩5分 広島電鉄宮島線「山陽女子大前」歩7分
|
Related links 関連リンク | | [Related Sites of this company] 【この会社の関連サイト】 |
Contact お問い合せ先 | | (Ltd.) Nagoshi housing TEL: 0829-32-1130 Please inquire as "saw SUUMO (Sumo)" (株)なごし住宅TEL:0829-32-1130「SUUMO(スーモ)を見た」と問い合わせください |
Land of the right form 土地の権利形態 | | Ownership 所有権 |
Building condition 建築条件 | | With 付 |
Time delivery 引き渡し時期 | | Immediate delivery allowed 即引渡し可 |
Land category 地目 | | Residential land 宅地 |
Use district 用途地域 | | One dwelling 1種住居 |
Other limitations その他制限事項 | | Site area minimum Yes, Hatsukaichi Station North District planning There 敷地面積最低限度有、廿日市駅北地区計画有り |
Overview and notices その他概要・特記事項 | | Facilities: Public Water Supply, This sewage 設備:公営水道、本下水 |
Company profile 会社概要 | | <Mediation> Governor of Hiroshima Prefecture (5) Article 007 754 issue (stock) Nagoshi housing Yubinbango738-0033 Hatsukaichi, Hiroshima Prefecture Kushido 4-4-51 <仲介>広島県知事(5)第007754号(株)なごし住宅〒738-0033 広島県廿日市市串戸4-4-51 |