New Homes » Chugoku » Hiroshima » Hatsukaichi
 
| | Hatsukaichi, Hiroshima Prefecture 広島県廿日市市 |
| Bus "Ryo Nakahira" walk 3 minutes バス「中平良」歩3分 |
| Eco Jaws Outside 構付 Conventional method of construction Parking two Allowed Counter Kitchen Warranty with insurance land ・ The building is located change per planned Road position designation: H25.6.26 No. 25-1 Equity 1 / 5 エコジョーズ 外構付 在来工法 駐車2台可 カウンターキッチン 瑕疵担保保険付 土地・建物は計画中につき変更あり 道路位置指定:H25.6.26第25-1号 持分1/5 |
Features pickup 特徴ピックアップ | | Parking two Allowed / Face-to-face kitchen / Toilet 2 places / 2-story / City gas 駐車2台可 /対面式キッチン /トイレ2ヶ所 /2階建 /都市ガス | Price 価格 | | 28,100,000 yen 2810万円 | Floor plan 間取り | | 4LDK 4LDK | Units sold 販売戸数 | | 1 units 1戸 | Land area 土地面積 | | 150.1 sq m (45.40 tsubo) (Registration) 150.1m2(45.40坪)(登記) | Building area 建物面積 | | 109.28 sq m (33.05 tsubo) (Registration) 109.28m2(33.05坪)(登記) | Driveway burden-road 私道負担・道路 | | Nothing, Northeast 4.2m width (contact the road width 11.4m) 無、北東4.2m幅(接道幅11.4m) | Completion date 完成時期(築年月) | | January 2014 2014年1月 | Address 住所 | | Hatsukaichi, Hiroshima Prefecture Kamihera 広島県廿日市市上平良 | Traffic 交通 | | Bus "Ryo Nakahira" walk 3 minutes バス「中平良」歩3分 | Person in charge 担当者より | | The person in charge (stock) Juken 担当者(株)住研 | Contact お問い合せ先 | | TEL: 0800-603-3432 [Toll free] mobile phone ・ Also available from PHS Caller ID is not notified Please contact the "saw SUUMO (Sumo)" If it does not lead, If the real estate company TEL:0800-603-3432【通話料無料】携帯電話・PHSからもご利用いただけます 発信者番号は通知されません 「SUUMO(スーモ)を見た」と問い合わせください つながらない方、不動産会社の方は
| Expenses 諸費用 | | Trash use contributions: 10,000 yen / Bulk ゴミ箱使用負担金:1万円/一括 | Building coverage, floor area ratio 建ぺい率・容積率 | | 40% ・ 80% 40%・80% | Time residents 入居時期 | | Consultation 相談 | Land of the right form 土地の権利形態 | | Ownership 所有権 | Structure and method of construction 構造・工法 | | Wooden 2-story 木造2階建 | Construction 施工 | | Totate housing トータテハウジング | Use district 用途地域 | | One low-rise 1種低層 | Other limitations その他制限事項 | | ※ Property information full of Hatsukaichi ☆ [Search in the living Research, Inc.!] ※廿日市市の物件情報満載☆【住研社で検索!】 | Overview and notices その他概要・特記事項 | | The person in charge :( stock) Juken, Facilities: Public Water Supply, Individual septic tank, City gas, Building confirmation number: Se 00901, Parking: car space 担当者:(株)住研、設備:公営水道、個別浄化槽、都市ガス、建築確認番号:セ00901、駐車場:カースペース | Company profile 会社概要 | | <Mediation> Governor of Hiroshima Prefecture (3) No. 008815 (Ltd.) Jukensha Yubinbango731-5136 Hiroshima, Hiroshima Prefecture Saeki-ku Rakurakuen 2-1-30 <仲介>広島県知事(3)第008815号(株)住研社〒731-5136 広島県広島市佐伯区楽々園2-1-30 |
Local appearance photo現地外観写真  December 24 shooting
12月24日撮影
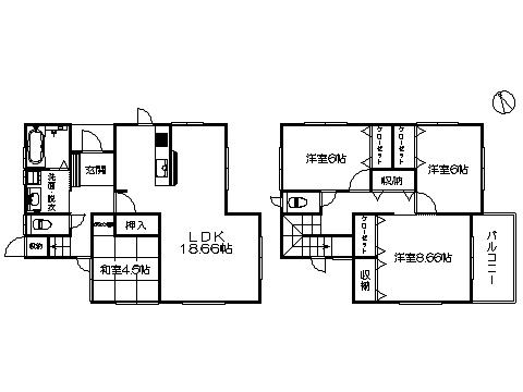
Floor plan間取り図  28,100,000 yen, 4LDK, Land area 150.1 sq m , Building area 109.28 sq m ※ Floor plan current state priority
2810万円、4LDK、土地面積150.1m2、建物面積109.28m2 ※間取図現況優先
Local appearance photo現地外観写真  December 24 shooting
12月24日撮影
 December 24 shooting
12月24日撮影
 Local photos, including front road
前面道路含む現地写真
Primary school小学校  Spatula until the elementary school 565m
平良小学校まで565m
Junior high school中学校  Nanao 966m until junior high school
七尾中学校まで966m
Other Environmental Photoその他環境写真  Konditorei ・ 811m until Felder chef
コンディトライ・フェルダーシェフまで811m
Location
|