New Homes » Chugoku » Hiroshima » Higashi-Hiroshima City
 
| | Hiroshima Prefecture Higashi-Hiroshima City 広島県東広島市 |
| Bus "Enjoji north" walk 1 minute バス「円城寺北」歩1分 |
| The biggest selling point is the view from the rooftop. Exactly is this view that makes us feel exhilarating Priceless! Contact is a friend I can call at barbecues and children and the astronomical observations the ne! 最大のセールスポイントは屋上からの眺めです。気分爽快にさせてくれるこの眺望はまさにプライスレス!お友達を呼んでバーベキューやお子さんと天体観測もいいですネ! |
| Warmth full of space to feel the grace of «We can visit» ● sun Why such as barbecue attracted friends Yes because eco there is a comfortable carefree child-rearing Yes Sky balcony in green living Yes quiet residential area on the earth in the all-electric?! ! ≪ご見学できます≫●太陽の恵みを感じる温もりあふれる空間 〇エコで快適なオール電化で地球にやさしい暮らし〇閑静な住宅地でのびのび子育て〇スカイバルコニーがあるので友人集めてバーベキューなどいかがでしょうか?!! |
Features pickup 特徴ピックアップ | | Measures to conserve energy / Pre-ground survey / It is close to the city / System kitchen / Bathroom Dryer / Yang per good / A quiet residential area / Or more before road 6m / Japanese-style room / Washbasin with shower / Face-to-face kitchen / Barrier-free / Double-glazing / Underfloor Storage / Urban neighborhood / Ventilation good / Dish washing dryer / Walk-in closet / Water filter / Located on a hill / roof balcony 省エネルギー対策 /地盤調査済 /市街地が近い /システムキッチン /浴室乾燥機 /陽当り良好 /閑静な住宅地 /前道6m以上 /和室 /シャワー付洗面台 /対面式キッチン /バリアフリー /複層ガラス /床下収納 /都市近郊 /通風良好 /食器洗乾燥機 /ウォークインクロゼット /浄水器 /高台に立地 /ルーフバルコニー | Price 価格 | | 22,900,000 yen 2290万円 | Floor plan 間取り | | 3LDK 3LDK | Units sold 販売戸数 | | 1 units 1戸 | Land area 土地面積 | | 154.38 sq m (registration) 154.38m2(登記) | Building area 建物面積 | | 99.35 sq m (registration) 99.35m2(登記) | Driveway burden-road 私道負担・道路 | | Nothing 無 | Completion date 完成時期(築年月) | | April 2012 2012年4月 | Address 住所 | | Hiroshima Prefecture Higashi-Hiroshima City Saijochomisonou 広島県東広島市西条町御薗宇 | Traffic 交通 | | Bus "Enjoji north" walk 1 minute バス「円城寺北」歩1分 | Contact お問い合せ先 | | TEL: 0800-603-1503 [Toll free] mobile phone ・ Also available from PHS Caller ID is not notified Please contact the "saw SUUMO (Sumo)" If it does not lead, If the real estate company TEL:0800-603-1503【通話料無料】携帯電話・PHSからもご利用いただけます 発信者番号は通知されません 「SUUMO(スーモ)を見た」と問い合わせください つながらない方、不動産会社の方は
| Building coverage, floor area ratio 建ぺい率・容積率 | | 60% ・ 160% 60%・160% | Time residents 入居時期 | | Consultation 相談 | Land of the right form 土地の権利形態 | | Ownership 所有権 | Structure and method of construction 構造・工法 | | Wooden 2-story 木造2階建 | Use district 用途地域 | | One dwelling 1種住居 | Overview and notices その他概要・特記事項 | | Parking: car space 駐車場:カースペース | Company profile 会社概要 | | <Mediation> Minister of Land, Infrastructure and Transport (6) Article 004315 No. Totate home sales (Ltd.) Higashi office Yubinbango739-0025 Hiroshima Higashi Saijochuo 6-12-18 <仲介>国土交通大臣(6)第004315号トータテ住宅販売(株)東広島営業所〒739-0025 広島県東広島市西条中央6-12-18 |
Local appearance photo現地外観写真  Preeminent per yang!
陽当たりバツグン!
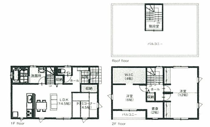
Floor plan間取り図  22,900,000 yen, 3LDK, Land area 154.38 sq m , Building area 99.35 sq m
2290万円、3LDK、土地面積154.38m2、建物面積99.35m2
Balconyバルコニー  Gardening and party on the roof ... Dream will bulge
屋上でガーデニングやパーティー… 夢が膨らみます
Kitchenキッチン  Friendly household all-electric!
家計にやさしいオール電化!
Livingリビング  Spacious because it connected to the Japanese-style room
和室とつながってるから広々
Bathroom浴室  Indoor (February 2013) Shooting
室内(2013年2月)撮影
Local appearance photo現地外観写真  Local (February 2013) Shooting
現地(2013年2月)撮影
Non-living roomリビング以外の居室  Indoor (February 2013) Shooting
室内(2013年2月)撮影
Entrance玄関  Local (February 2013) Shooting
現地(2013年2月)撮影
Wash basin, toilet洗面台・洗面所  Indoor (February 2013) Shooting
室内(2013年2月)撮影
Local photos, including front road前面道路含む現地写真  Local (February 2, 0213 years) shooting
現地(20213年2月)撮影
Balconyバルコニー  Longing of Sky balcony
憧れのスカイバルコニー
Primary school小学校  Saijo to elementary school 1600m
西条小学校まで1600m
Other introspectionその他内観  Indoor (February 2013) Shooting
室内(2013年2月)撮影
Local appearance photo現地外観写真  Local (February 2013) Shooting
現地(2013年2月)撮影
Entrance玄関  Local (February 2013) Shooting
現地(2013年2月)撮影
Balconyバルコニー  Local (February 2013) Shooting
現地(2013年2月)撮影
Junior high school中学校  Matsuga until junior high school 1400m
松賀中学校まで1400m
Local appearance photo現地外観写真  Local (February 2013) Shooting
現地(2013年2月)撮影
Balconyバルコニー  Local (February 2013) Shooting
現地(2013年2月)撮影
Shopping centreショッピングセンター  Until Fujiguran 1800m
フジグランまで1800m
Location
|