New Homes » Chugoku » Hiroshima » Higashi-Hiroshima City


Hiroshima Prefecture Higashi-Hiroshima City
JR Sanyo Line "Nishitakaya" walk 7 minutes
It is a detached house called "Plus One Living House". I was not in Japan so far, It is a completely new house. And the newness is, In addition us happily to the lifestyle.
On a clear day, Guests in the pleasant light and wind on the roof. Or a meal, Or read a book, Sometimes you can open a home party inviting friends.
Features pickup
Corresponding to the flat-35S / Vibration Control ・ Seismic isolation ・ Earthquake resistant / Seismic fit / Parking three or more possible / LDK18 tatami mats or more / See the mountain / System kitchen / A quiet residential area / Home garden / Face-to-face kitchen / 2-story / Double-glazing / TV with bathroom / The window in the bathroom / IH cooking heater / Walk-in closet / All-electric / rooftop
Price
33,300,000 yen
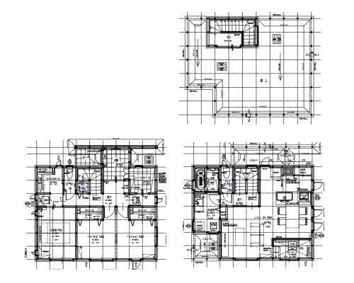
Floor plan
3LDK
Units sold
1 units
Land area
198.48 sq m (60.03 tsubo) (Registration)
Building area
109.29 sq m (33.06 tsubo) (Registration)
Driveway burden-road
Nothing
Completion date
March 2014
Address
Hiroshima Prefecture Higashi-Hiroshima City Takayachonakashima
Traffic
JR Sanyo Line "Nishitakaya" walk 7 minutes
JR Sanyo Line "white city" walk 59 minutes
Person in charge
Person in charge of the end of this Ryoichi
Contact
TEL: 0800-809-8833 [Toll free] mobile phone ・ Also available from PHS
Caller ID is not notified
Please contact the "saw SUUMO (Sumo)"
If it does not lead, If the real estate company
Building coverage, floor area ratio
60% ・ 200%
Land of the right form
Ownership
Structure and method of construction
Wooden 2-story
Overview and notices
Contact Person: end this Ryoichi, Facilities: Public Water Supply, Individual septic tank, Building confirmation number: 02094, Parking: No
Company profile
<Mediation> Governor of Hiroshima Prefecture (2) No. 009283 Home Mate FC Saijo Ekimae (Ltd.) next home Yubinbango739-0011 Hiroshima Higashi Saijohon cho 13-11


Same specifications photos (Other introspection)
Same specifications photos (Other introspection)

Local photos, including front road
Local photos, including front road

Local photos, including front road
Local photos, including front road

Floor plan
Floor plan

Same specifications photos (appearance)
Same specifications photos (appearance)

Same specifications photo (bathroom)
Same specifications photo (bathroom)

Local photos, including front road
Local photos, including front road

Same specifications photos (Other introspection)
Same specifications photos (Other introspection)

Other
Other

Same specifications photos (appearance)
Same specifications photos (appearance)

Same specifications photos (Other introspection)
Same specifications photos (Other introspection)

Other
Other

Same specifications photos (appearance)
Same specifications photos (appearance)

Same specifications photos (Other introspection)
Same specifications photos (Other introspection)



Location