New Homes » Chugoku » Hiroshima » Aki-ku


Hiroshima, Hiroshima Prefecture Aki-ku,
JR Kure Line "Yano" walk 15 minutes
Features pickup
2 along the line more accessible / See the mountain / Bathroom Dryer / Japanese-style room / Face-to-face kitchen / 2-story / IH cooking heater / Dish washing dryer / Walk-in closet / All-electric
Price
30,800,000 yen
Floor plan
4LDK
Units sold
1 units
Total units
1 units
Land area
229.51 sq m
Building area
110.96 sq m
Driveway burden-road
Nothing
Completion date
December 2013
Address
Hiroshima, Hiroshima Prefecture Aki-ku, Yanonishi 3
Traffic
JR Kure Line "Yano" walk 15 minutes
Hiroden bus "Yano New Town" walk 12 minutes
Contact
TEL: 0800-603-8568 [Toll free] mobile phone ・ Also available from PHS
Caller ID is not notified
Please contact the "saw SUUMO (Sumo)"
If it does not lead, If the real estate company
Building coverage, floor area ratio
Fifty percent ・ Hundred percent
Time residents
Consultation
Land of the right form
Ownership
Structure and method of construction
Wooden 2-story
Use district
One low-rise
Overview and notices
Building confirmation number: Se 00997
Company profile
<Mediation> Governor of Hiroshima Prefecture (2) the first 009,606 No. eye style (Ltd.) Yubinbango730-0037 Hiroshima, Hiroshima Prefecture, Naka-ku Nakamachi 7-35 Wako Nakamachi building second floor


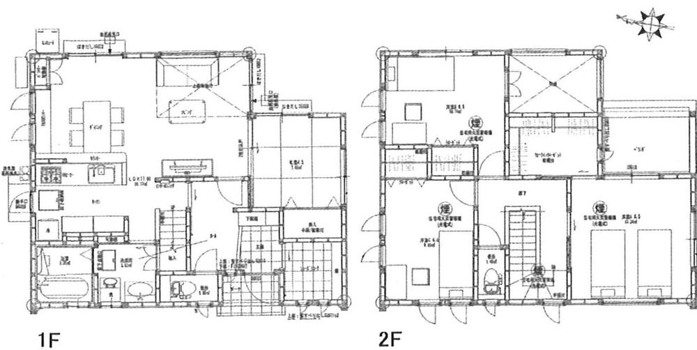
Floor plan

Floor plan. 30,800,000 yen, 4LDK, Land area 229.51 sq m , Building area 110.96 sq m
30,800,000 yen, 4LDK, Land area 229.51 sq m , Building area 110.96 sq m



Location