New Homes » Chugoku » Hiroshima » Asakita Ku
 
| | Hiroshima, Hiroshima Prefecture Asakita Ku 広島県広島市安佐北区 |
| Hiroshima traffic "Kamikoda" walk 5 minutes 広島交通「上小田」歩5分 |
| Location that is both the appeal of convenience and comfort 利便性と安らぎの両立した魅力ある立地 |
Price 価格 | | 27,800,000 yen 2780万円 | Floor plan 間取り | | 4LDK 4LDK | Units sold 販売戸数 | | 1 units 1戸 | Land area 土地面積 | | 149.71 sq m (measured) 149.71m2(実測) | Building area 建物面積 | | 105.16 sq m (measured) 105.16m2(実測) | Driveway burden-road 私道負担・道路 | | Nothing 無 | Completion date 完成時期(築年月) | | August 2013 2013年8月 | Address 住所 | | Hiroshima, Hiroshima Prefecture Asakita Ku Kuchitaminami 1 広島県広島市安佐北区口田南1 | Traffic 交通 | | Hiroshima traffic "Kamikoda" walk 5 minutes JR Geibi Line "Tosaka" walk 18 minutes JR Geibi Line "Akiyaguchi" walk 22 minutes 広島交通「上小田」歩5分JR芸備線「戸坂」歩18分 JR芸備線「安芸矢口」歩22分
| Related links 関連リンク | | [Related Sites of this company] 【この会社の関連サイト】 | Person in charge 担当者より | | Between the person in charge of early Yoshihiko Nice to meet you, It is early between the customers in charge. That the property, By do a thing of the mortgage is also Please feel free to contact us. Thank you so end you can long-term relationship. 担当者早間 仁彦はじめまして、お客様担当の早間です。物件のこと、住宅ローンのことなんでもお気軽にご相談下さい。末長いお付き合いができますようよろしくお願いします。 | Contact お問い合せ先 | | TEL: 0800-603-3620 [Toll free] mobile phone ・ Also available from PHS Caller ID is not notified Please contact the "saw SUUMO (Sumo)" If it does not lead, If the real estate company TEL:0800-603-3620【通話料無料】携帯電話・PHSからもご利用いただけます 発信者番号は通知されません 「SUUMO(スーモ)を見た」と問い合わせください つながらない方、不動産会社の方は
| Expenses 諸費用 | | Performance guarantee fee: 100,000 yen / Bulk 性能保証料:10万円/一括 | Time residents 入居時期 | | Consultation 相談 | Land of the right form 土地の権利形態 | | Ownership 所有権 | Structure and method of construction 構造・工法 | | Wooden 2-story 木造2階建 | Overview and notices その他概要・特記事項 | | The person in charge: Fast between Yoshihiko, Facilities: Public Water Supply, This sewage, All-electric, Building confirmation number: 0000, Parking: car space 担当者:早間 仁彦、設備:公営水道、本下水、オール電化、建築確認番号:0000、駐車場:カースペース | Company profile 会社概要 | | <Mediation> Governor of Hiroshima Prefecture (6) Article 006948 No. cosmid Real Estate Co., Ltd. Yubinbango733-0002 Hiroshima, Hiroshima Prefecture, Nishi-ku, Kusunoki-cho, 1-13-11 <仲介>広島県知事(6)第006948号木住不動産(株)〒733-0002 広島県広島市西区楠木町1-13-11 |
Local appearance photo現地外観写真  All-electric ・ Cute
オール電化・エコキュート
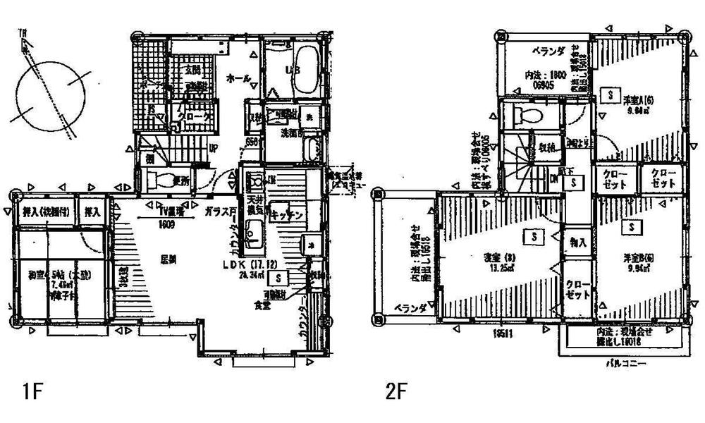
Floor plan間取り図  27,800,000 yen, 4LDK, Land area 149.71 sq m , Building area 105.16 sq m 1F 17.12LDK 4.5 sum 2F 8 Hiroshi 6 Hiroshi 6 Hiroshi toilet
2780万円、4LDK、土地面積149.71m2、建物面積105.16m2 1F 17.12LDK 4.5和 2F 8洋 6洋 6洋 トイレ
 Entrance
玄関
 Living
リビング
 Bathroom
浴室
 Kitchen
キッチン
 Non-living room
リビング以外の居室
 Wash basin, toilet
洗面台・洗面所
 Receipt
収納
 Toilet
トイレ
 Other introspection
その他内観
 Kitchen
キッチン
 Toilet
トイレ
 Other introspection
その他内観
 Other introspection
その他内観
 Other introspection
その他内観
 Other introspection
その他内観
Location
|