New Homes » Chugoku » Hiroshima » Asakita Ku
 
| | Hiroshima, Hiroshima Prefecture Asakita Ku 広島県広島市安佐北区 |
| JR Geibi Line "Nakafukawa" walk 8 minutes JR芸備線「中深川」歩8分 |
| Was building completed! Schools and shopping facilities is a convenient living environment in the enhancement. 建物完成しました!学校や買い物施設が充実で便利な住環境です。 |
Features pickup 特徴ピックアップ | | Corresponding to the flat-35S / Year Available / Parking two Allowed / Land 50 square meters or more / LDK18 tatami mats or more / Super close / Yang per good / Flat to the station / 2-story / All-electric / Flat terrain フラット35Sに対応 /年内入居可 /駐車2台可 /土地50坪以上 /LDK18畳以上 /スーパーが近い /陽当り良好 /駅まで平坦 /2階建 /オール電化 /平坦地 | Price 価格 | | 27.5 million yen 2750万円 | Floor plan 間取り | | 4LDK 4LDK | Units sold 販売戸数 | | 1 units 1戸 | Total units 総戸数 | | 1 units 1戸 | Land area 土地面積 | | 198.98 sq m (registration) 198.98m2(登記) | Building area 建物面積 | | 107.65 sq m (measured) 107.65m2(実測) | Driveway burden-road 私道負担・道路 | | Nothing, West 4.2m width 無、西4.2m幅 | Completion date 完成時期(築年月) | | September 2013 2013年9月 | Address 住所 | | Hiroshima, Hiroshima Prefecture Asakita District of Shenzhen 5 広島県広島市安佐北区深川5 | Traffic 交通 | | JR Geibi Line "Nakafukawa" walk 8 minutes JR芸備線「中深川」歩8分
| Person in charge 担当者より | | Person in charge of Ohama Akiko 担当者大濱 明子 | Contact お問い合せ先 | | TEL: 0800-603-3620 [Toll free] mobile phone ・ Also available from PHS Caller ID is not notified Please contact the "saw SUUMO (Sumo)" If it does not lead, If the real estate company TEL:0800-603-3620【通話料無料】携帯電話・PHSからもご利用いただけます 発信者番号は通知されません 「SUUMO(スーモ)を見た」と問い合わせください つながらない方、不動産会社の方は
| Building coverage, floor area ratio 建ぺい率・容積率 | | 60% ・ 200% 60%・200% | Time residents 入居時期 | | Consultation 相談 | Land of the right form 土地の権利形態 | | Ownership 所有権 | Structure and method of construction 構造・工法 | | Wooden 2-story (framing method) 木造2階建(軸組工法) | Use district 用途地域 | | One dwelling 1種住居 | Overview and notices その他概要・特記事項 | | Contact: Ohama Akiko, Facilities: Public Water Supply, This sewage, All-electric, Building confirmation number: Se 02906, Parking: car space 担当者:大濱 明子、設備:公営水道、本下水、オール電化、建築確認番号:セ02906、駐車場:カースペース | Company profile 会社概要 | | <Mediation> Governor of Hiroshima Prefecture (6) Article 006948 No. cosmid Real Estate Co., Ltd. Yubinbango733-0002 Hiroshima, Hiroshima Prefecture, Nishi-ku, Kusunoki-cho, 1-13-11 <仲介>広島県知事(6)第006948号木住不動産(株)〒733-0002 広島県広島市西区楠木町1-13-11 |
Local appearance photo現地外観写真  Local (10 May 2013) Shooting
現地(2013年10月)撮影
 Local (10 May 2013) Shooting
現地(2013年10月)撮影
Parking lot駐車場  Local (10 May 2013) Shooting
現地(2013年10月)撮影
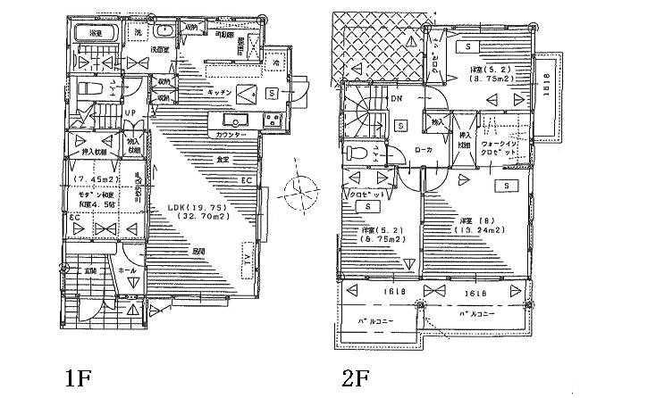
Floor plan間取り図  27.5 million yen, 4LDK, Land area 198.98 sq m , Building area 107.65 sq m 1F 19.75LDK 4.5 sum 2F 8 Hiroshi WCL 5.2 Hiroshi 5.2 Hiroshi
2750万円、4LDK、土地面積198.98m2、建物面積107.65m2 1F 19.75LDK 4.5和 2F 8洋 WCL 5.2洋 5.2洋
Livingリビング  Indoor (10 May 2013) Shooting
室内(2013年10月)撮影
Bathroom浴室  Indoor (10 May 2013) Shooting
室内(2013年10月)撮影
Kitchenキッチン  Indoor (10 May 2013) Shooting
室内(2013年10月)撮影
Non-living roomリビング以外の居室  Indoor (10 May 2013) Shooting
室内(2013年10月)撮影
Wash basin, toilet洗面台・洗面所  Indoor (10 May 2013) Shooting
室内(2013年10月)撮影
Receipt収納  Indoor (10 May 2013) Shooting
室内(2013年10月)撮影
Local photos, including front road前面道路含む現地写真  Local (10 May 2013) Shooting
現地(2013年10月)撮影
 Local (10 May 2013) Shooting
現地(2013年10月)撮影
Location
|