New Homes » Chugoku » Hiroshima » Asakita Ku
 
| | Hiroshima, Hiroshima Prefecture Asakita Ku 広島県広島市安佐北区 |
| JR Kabe Line "Kabe" walk 9 minutes JR可部線「可部」歩9分 |
| You can live a useful Kabeminami JR use 生活便利な可部南ですJR利用できます |
Features pickup 特徴ピックアップ | | Year Available / Parking two Allowed / 2 along the line more accessible / Facing south / System kitchen / Bathroom Dryer / All room storage / Siemens south road / LDK15 tatami mats or more / Japanese-style room / Washbasin with shower / Face-to-face kitchen / Toilet 2 places / Bathroom 1 tsubo or more / 2-story / 2 or more sides balcony / South balcony / Double-glazing / Otobasu / Underfloor Storage / The window in the bathroom / TV monitor interphone / Water filter / All rooms are two-sided lighting 年内入居可 /駐車2台可 /2沿線以上利用可 /南向き /システムキッチン /浴室乾燥機 /全居室収納 /南側道路面す /LDK15畳以上 /和室 /シャワー付洗面台 /対面式キッチン /トイレ2ヶ所 /浴室1坪以上 /2階建 /2面以上バルコニー /南面バルコニー /複層ガラス /オートバス /床下収納 /浴室に窓 /TVモニタ付インターホン /浄水器 /全室2面採光 | Price 価格 | | 25.6 million yen 2560万円 | Floor plan 間取り | | 4LDK 4LDK | Units sold 販売戸数 | | 1 units 1戸 | Land area 土地面積 | | 112.03 sq m (registration) 112.03m2(登記) | Building area 建物面積 | | 98.01 sq m 98.01m2 | Driveway burden-road 私道負担・道路 | | Nothing, South 4m width 無、南4m幅 | Completion date 完成時期(築年月) | | October 2013 2013年10月 | Address 住所 | | Hiroshima, Hiroshima Prefecture Asakita Ku Kabeminami 4 広島県広島市安佐北区可部南4 | Traffic 交通 | | JR Kabe Line "Kabe" walk 9 minutes Bus "Hiroshimabunkyojoshidai before" walk 2 minutes JR可部線「可部」歩9分 バス「広島文教女子大前」歩2分 | Related links 関連リンク | | [Related Sites of this company] 【この会社の関連サイト】 | Contact お問い合せ先 | | TEL: 082-568-1150 Please inquire as "saw SUUMO (Sumo)" TEL:082-568-1150「SUUMO(スーモ)を見た」と問い合わせください | Building coverage, floor area ratio 建ぺい率・容積率 | | 60% ・ 200% 60%・200% | Time residents 入居時期 | | Consultation 相談 | Land of the right form 土地の権利形態 | | Ownership 所有権 | Structure and method of construction 構造・工法 | | Wooden 2-story 木造2階建 | Use district 用途地域 | | One dwelling 1種住居 | Overview and notices その他概要・特記事項 | | Facilities: Public Water Supply, This sewage, Individual LPG, Parking: car space 設備:公営水道、本下水、個別LPG、駐車場:カースペース | Company profile 会社概要 | | <Mediation> Governor of Hiroshima Prefecture (1) No. 010121 bamboo Corporation (Corporation) Yubinbango732-0817 Hiroshima, Hiroshima Prefecture, Minami-ku, Hijiyama cho 4-11 <仲介>広島県知事(1)第010121号竹コーポレーション(株)〒732-0817 広島県広島市南区比治山町4-11 |
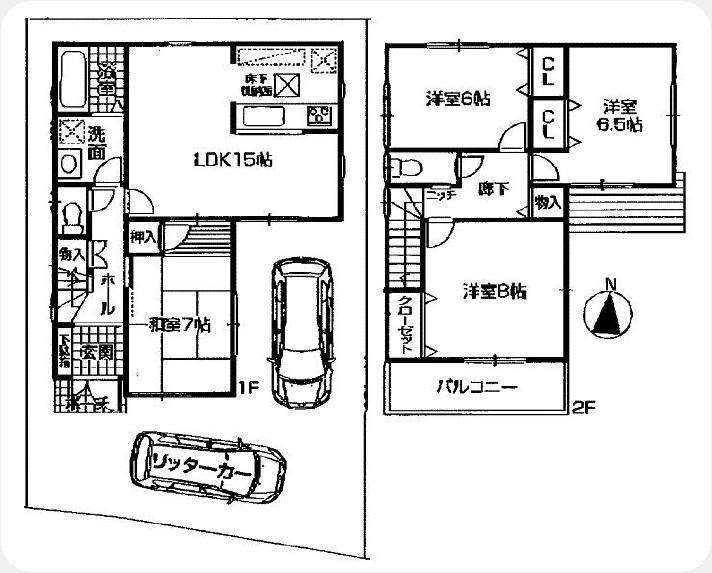
Floor plan間取り図  25.6 million yen, 4LDK, Land area 112.03 sq m , Building area 98.01 sq m
2560万円、4LDK、土地面積112.03m2、建物面積98.01m2
Supermarketスーパー  649m to spark Nakajima shop
スパーク中島店まで649m
Convenience storeコンビニ  276m to Seven-Eleven Hiroshima Kabeminami 4-chome
セブンイレブン広島可部南4丁目店まで276m
Home centerホームセンター  1165m to home improvement Juntendo Co., Ltd. Kabeminami shop
ホームセンタージュンテンドー可部南店まで1165m
Junior high school中学校  2309m to Hiroshima City Museum of Kabe junior high school
広島市立可部中学校まで2309m
Primary school小学校  919m to Hiroshima Municipal Kabeminami Elementary School
広島市立可部南小学校まで919m
Kindergarten ・ Nursery幼稚園・保育園  Hiroshima Bunkyo Women's University 1149m to Kindergarten
広島文教女子大学附属幼稚園まで1149m
Hospital病院  Until Hiroshimashiritsuasashiminbyoin 870m
広島市立安佐市民病院まで870m
Post office郵便局  365m to Kabe Nakajima post office
可部中島郵便局まで365m
Location
|