New Homes » Chugoku » Hiroshima » Asaminami
 
| | Hiroshima, Hiroshima Prefecture Asaminami 広島県広島市安佐南区 |
| First "Takeda mountain park" walk 2 minutes 第一「武田山団地」歩2分 |
| Corresponding to the flat-35S, Parking two Allowed, Face-to-face kitchen, LDK15 tatami mats or more, Underfloor Storage, Leafy residential area, System kitchen, Bathroom Dryerese-style room, Shaping land, Washbasin with shower, Toilet 2 places フラット35Sに対応、駐車2台可、対面式キッチン、LDK15畳以上、床下収納、緑豊かな住宅地、システムキッチン、浴室乾燥機、和室、整形地、シャワー付洗面台、トイレ2ヶ所 |
| Corresponding to the flat-35S, Parking two Allowed, Face-to-face kitchen, LDK15 tatami mats or more, Underfloor Storage, Leafy residential area, System kitchen, Bathroom Dryerese-style room, Shaping land, Washbasin with shower, Toilet 2 places, 2-story, Double-glazing, Otobasu, Warm water washing toilet seat, The window in the bathroom, Dish washing dryer, Water filter フラット35Sに対応、駐車2台可、対面式キッチン、LDK15畳以上、床下収納、緑豊かな住宅地、システムキッチン、浴室乾燥機、和室、整形地、シャワー付洗面台、トイレ2ヶ所、2階建、複層ガラス、オートバス、温水洗浄便座、浴室に窓、食器洗乾燥機、浄水器 |
Features pickup 特徴ピックアップ | | Corresponding to the flat-35S / Parking two Allowed / System kitchen / Bathroom Dryer / LDK15 tatami mats or more / Japanese-style room / Shaping land / Washbasin with shower / Face-to-face kitchen / Toilet 2 places / 2-story / Double-glazing / Otobasu / Warm water washing toilet seat / Underfloor Storage / The window in the bathroom / Leafy residential area / Dish washing dryer / Water filter フラット35Sに対応 /駐車2台可 /システムキッチン /浴室乾燥機 /LDK15畳以上 /和室 /整形地 /シャワー付洗面台 /対面式キッチン /トイレ2ヶ所 /2階建 /複層ガラス /オートバス /温水洗浄便座 /床下収納 /浴室に窓 /緑豊かな住宅地 /食器洗乾燥機 /浄水器 | Price 価格 | | 21,800,000 yen 2180万円 | Floor plan 間取り | | 4LDK 4LDK | Units sold 販売戸数 | | 1 units 1戸 | Land area 土地面積 | | 182.84 sq m (registration) 182.84m2(登記) | Building area 建物面積 | | 97.2 sq m (registration) 97.2m2(登記) | Driveway burden-road 私道負担・道路 | | Nothing, North 5.9m width 無、北5.9m幅 | Completion date 完成時期(築年月) | | September 2013 2013年9月 | Address 住所 | | Hiroshima, Hiroshima Prefecture Asaminami Aida 3 広島県広島市安佐南区相田3 | Traffic 交通 | | First "Takeda mountain park" walk 2 minutes 第一「武田山団地」歩2分 | Person in charge 担当者より | | Rep Mukai 担当者向井 | Contact お問い合せ先 | | TEL: 0120-322882 [Toll free] Please contact the "saw SUUMO (Sumo)" TEL:0120-322882【通話料無料】「SUUMO(スーモ)を見た」と問い合わせください | Building coverage, floor area ratio 建ぺい率・容積率 | | Fifty percent ・ Hundred percent 50%・100% | Time residents 入居時期 | | 2 months after the contract 契約後2ヶ月 | Land of the right form 土地の権利形態 | | Ownership 所有権 | Structure and method of construction 構造・工法 | | Wooden 2-story 木造2階建 | Use district 用途地域 | | One low-rise 1種低層 | Overview and notices その他概要・特記事項 | | Contact: Mukai, Facilities: Public Water Supply, This sewage, Centralized LPG, Building confirmation number: 012, Parking: Garage 担当者:向井、設備:公営水道、本下水、集中LPG、建築確認番号:012、駐車場:車庫 | Company profile 会社概要 | | <Mediation> Governor of Hiroshima Prefecture (7) No. 005935 (Ltd.) Fuji real estate sales Yubinbango730-0847 Hiroshima medium Hiroshima District Funairiminami 1-10-20 <仲介>広島県知事(7)第005935号(株)富士不動産販売〒730-0847 広島県広島市中区舟入南1-10-20 |
 Local appearance photo
現地外観写真
 Local photos, including front road
前面道路含む現地写真
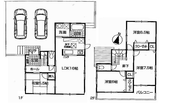
Floor plan間取り図  21,800,000 yen, 4LDK, Land area 182.84 sq m , Building area 97.2 sq m
2180万円、4LDK、土地面積182.84m2、建物面積97.2m2
Location
|