New Homes » Chugoku » Hiroshima » Asaminami


Hiroshima, Hiroshima Prefecture Asaminami
Bus "westerly wind Umezono" walk 1 minute
Model house furniture ・ With lighting loft Wood deck Shoes-in closet All rooms have double-glazing floor heating (gas) Bidet Bathroom Dryer Otobasu Dishwasher Insulation Air Dancin '
Features pickup
Parking two Allowed / Land 50 square meters or more / LDK18 tatami mats or more / Bathroom Dryer / Corner lot / Japanese-style room / Face-to-face kitchen / Toilet 2 places / 2-story / Double-glazing / Otobasu / Warm water washing toilet seat / loft / Wood deck / Dish washing dryer / Walk-in closet / Storeroom / Floor heating
Price
51,800,000 yen
Floor plan
3LDK + S (storeroom)
Units sold
1 units
Land area
196.28 sq m
Building area
127.24 sq m
Driveway burden-road
Nothing
Completion date
April 2011
Address
Hiroshima, Hiroshima Prefecture Asaminami Banminami 5
Traffic
Bus "westerly wind Umezono" walk 1 minute
Contact
TEL: 0800-603-1864 [Toll free] mobile phone ・ Also available from PHS
Caller ID is not notified
Please contact the "saw SUUMO (Sumo)"
If it does not lead, If the real estate company
Building coverage, floor area ratio
Fifty percent ・ Hundred percent
Time residents
Consultation
Land of the right form
Ownership
Structure and method of construction
Wooden 2-story
Use district
One low-rise
Overview and notices
Facilities: Public Water Supply, Parking: car space
Company profile
<Mediation> Governor of Hiroshima Prefecture (6) Article 006776 No. Heiwa Real Estate Sales Co., Ltd. Yubinbango731-0144 Hiroshima, Hiroshima Prefecture Asaminami Takatorikita 3-3-25


Local appearance photo

Local appearance photo.     Finished already Parking: Two Allowed
Finished already Parking: Two Allowed

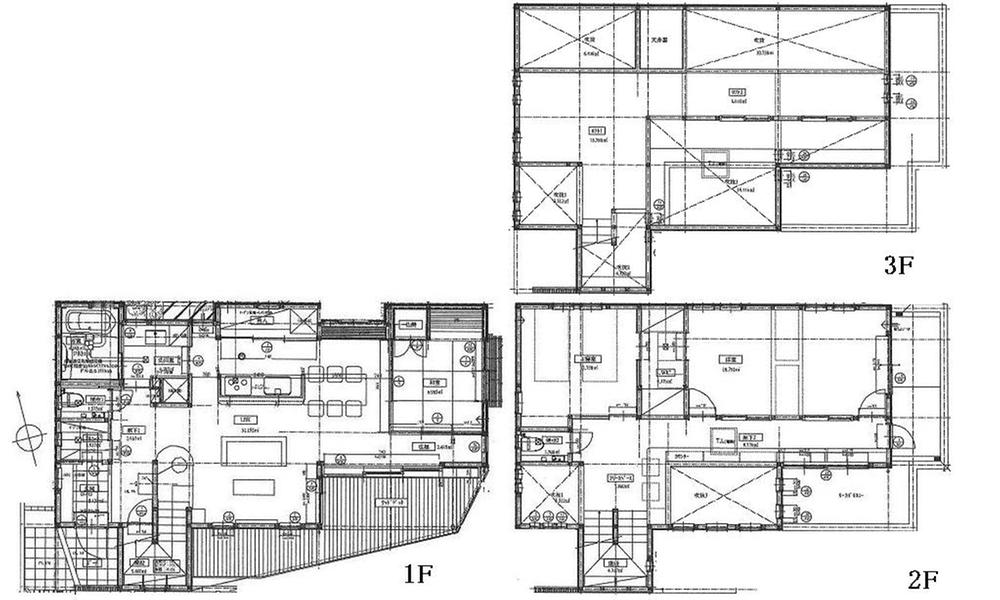
Floor plan

Floor plan. 51,800,000 yen, 3LDK + S (storeroom), Land area 196.28 sq m , Building area 127.24 sq m
51,800,000 yen, 3LDK + S (storeroom), Land area 196.28 sq m , Building area 127.24 sq m

Living

Living.     19.2LDK
19.2LDK

Living
Living

Bathroom
Bathroom

Kitchen
Kitchen

Non-living room

Non-living room.     4.5 Pledge of Japanese-style room
4.5 Pledge of Japanese-style room

Entrance
Entrance

Wash basin, toilet
Wash basin, toilet

Toilet
Toilet

Local photos, including front road

Local photos, including front road.   Southeast corner lot
Southeast corner lot

Garden
Garden

Other introspection
Other introspection

Living
Living

Kitchen
Kitchen

Non-living room
Non-living room

Other introspection
Other introspection

Other introspection
Other introspection

Other introspection
Other introspection

Other introspection
Other introspection



Location