New Homes » Chugoku » Hiroshima » Asaminami
 
| | Hiroshima, Hiroshima Prefecture Asaminami 広島県広島市安佐南区 |
| Bus "Takeda Yamadan underground" walk 3 minutes バス「武田山団地下」歩3分 |
| Corner lot All-electric Outside 構付 Construction: Totate housing Attic storage Yes bus stop 3-minute walk 角地 オール電化 外構付 施工:トータテハウジング 小屋裏収納有バス停徒歩3分 |
Features pickup 特徴ピックアップ | | Yang per good / All room storage / LDK15 tatami mats or more / Or more before road 6m / Corner lot / Japanese-style room / Face-to-face kitchen / Toilet 2 places / 2-story / Southwestward / All-electric / Attic storage 陽当り良好 /全居室収納 /LDK15畳以上 /前道6m以上 /角地 /和室 /対面式キッチン /トイレ2ヶ所 /2階建 /南西向き /オール電化 /屋根裏収納 | Price 価格 | | 25,800,000 yen 2580万円 | Floor plan 間取り | | 5LDK 5LDK | Units sold 販売戸数 | | 1 units 1戸 | Land area 土地面積 | | 144.49 sq m 144.49m2 | Building area 建物面積 | | 115.02 sq m 115.02m2 | Driveway burden-road 私道負担・道路 | | Nothing, West 6m width, South 5.8m width 無、西6m幅、南5.8m幅 | Completion date 完成時期(築年月) | | February 2014 2014年2月 | Address 住所 | | Hiroshima, Hiroshima Prefecture Asaminami Aida 3 広島県広島市安佐南区相田3 | Traffic 交通 | | Bus "Takeda Yamadan underground" walk 3 minutes バス「武田山団地下」歩3分 | Contact お問い合せ先 | | TEL: 0800-603-1864 [Toll free] mobile phone ・ Also available from PHS Caller ID is not notified Please contact the "saw SUUMO (Sumo)" If it does not lead, If the real estate company TEL:0800-603-1864【通話料無料】携帯電話・PHSからもご利用いただけます 発信者番号は通知されません 「SUUMO(スーモ)を見た」と問い合わせください つながらない方、不動産会社の方は
| Building coverage, floor area ratio 建ぺい率・容積率 | | Fifty percent ・ Hundred percent 50%・100% | Time residents 入居時期 | | Consultation 相談 | Land of the right form 土地の権利形態 | | Ownership 所有権 | Structure and method of construction 構造・工法 | | Wooden 2-story 木造2階建 | Use district 用途地域 | | One low-rise 1種低層 | Overview and notices その他概要・特記事項 | | Facilities: Public Water Supply, This sewage, Centralized LPG, Building confirmation number: HP01-0176752, Parking: car space 設備:公営水道、本下水、集中LPG、建築確認番号:HP01-0176752、駐車場:カースペース | Company profile 会社概要 | | <Mediation> Governor of Hiroshima Prefecture (6) Article 006776 No. Heiwa Real Estate Sales Co., Ltd. Yubinbango731-0144 Hiroshima, Hiroshima Prefecture Asaminami Takatorikita 3-3-25 <仲介>広島県知事(6)第006776号平和不動産販売(株)〒731-0144 広島県広島市安佐南区高取北3-3-25 |
Local appearance photo現地外観写真  2014 mid-February will be completed
平成26年2月中旬完成予定
 Outside 構付
外構付
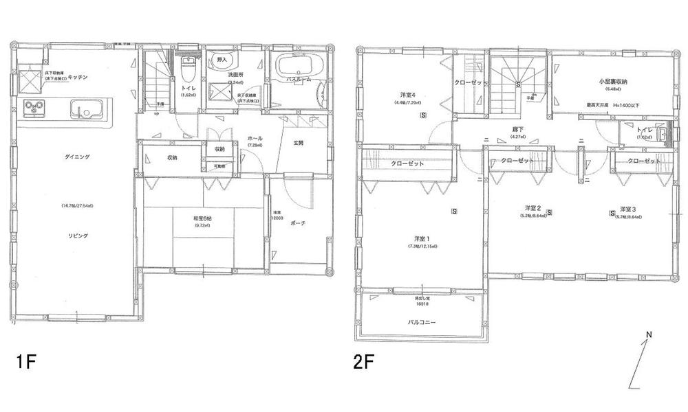
Floor plan間取り図  25,800,000 yen, 5LDK, Land area 144.49 sq m , Building area 115.02 sq m Attic storage Yes
2580万円、5LDK、土地面積144.49m2、建物面積115.02m2 小屋裏収納有
 Local appearance photo
現地外観写真
Local photos, including front road前面道路含む現地写真  Front street: West 6m south 5.8m
前面道路:西6m南5.8m
 Other local
その他現地
 Local appearance photo
現地外観写真
 Local photos, including front road
前面道路含む現地写真
 Local photos, including front road
前面道路含む現地写真
Location
|