New Homes » Chugoku » Hiroshima » Asaminami


Hiroshima, Hiroshima Prefecture Asaminami
Hiroshima Rapid Transit Astram "Takatori" walk 6 minutes
Astram Takatori Station 6-minute walk Green is a rich residential area Outdoor outlet maintenance for EV Flat 35S Available
Facing south, Yang per good, LDK15 tatami mats or more, 2-story, South balcony
Features pickup
Facing south / Yang per good / LDK15 tatami mats or more / 2-story / South balcony
Price
23.8 million yen
Floor plan
4LDK
Units sold
1 units
Land area
100.45 sq m (30.38 square meters)
Building area
93.14 sq m (28.17 square meters)
Driveway burden-road
Nothing, East 4.4m width
Completion date
October 2013
Address
Hiroshima, Hiroshima Prefecture Asaminami Takatoriminami 1
Traffic
Hiroshima Rapid Transit Astram "Takatori" walk 6 minutes
Hiroshima Rapid Transit Astram "Kamiyasu" walk 13 minutes
Hiroshima Rapid Transit Astram "Chorakuji Temple" walk 21 minutes
Related links
[Related Sites of this company]
Contact
TEL: 0800-603-1469 [Toll free] mobile phone ・ Also available from PHS
Caller ID is not notified
Please contact the "saw SUUMO (Sumo)"
If it does not lead, If the real estate company
Building coverage, floor area ratio
Fifty percent ・ Hundred percent
Time residents
Consultation
Land of the right form
Ownership
Structure and method of construction
Wooden 2-story
Use district
One low-rise
Overview and notices
Facilities: Public Water Supply, Building confirmation number: Se 00981, Parking: car space
Company profile
<Mediation> Minister of Land, Infrastructure and Transport (12) Article 001483 No. Toa Estate Co., Ltd. Real Estate Information Center Yubinbango730-0051 Hiroshima Prefecture medium Hiroshima-ku, Otemachi 3-1-1


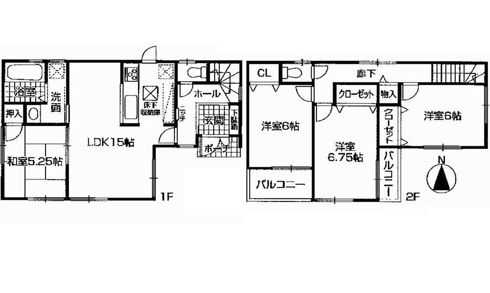
Floor plan

Floor plan. 23.8 million yen, 4LDK, Land area 100.45 sq m , Building area 93.14 sq m
23.8 million yen, 4LDK, Land area 100.45 sq m , Building area 93.14 sq m



Location