New Homes » Chugoku » Hiroshima » Asaminami
 
| | Hiroshima, Hiroshima Prefecture Asaminami 広島県広島市安佐南区 |
| JR Kabe Line "Shichikenjaya" walk 6 minutes JR可部線「七軒茶屋」歩6分 |
| Flat 35S 20 years corresponding specification Barrier-free ・ Top Runner Program loft Attic storage Eco Jaws Three-story Second floor living room フラット35S 20年対応仕様 バリアフリー・トップランナー基準 ロフト 小屋裏収納 エコジョーズ 3階建 2階リビング |
Features pickup 特徴ピックアップ | | Face-to-face kitchen / Barrier-free / loft / Three-story or more / Attic storage 対面式キッチン /バリアフリー /ロフト /3階建以上 /屋根裏収納 | Price 価格 | | 28,900,000 yen 2890万円 | Floor plan 間取り | | 4LDK 4LDK | Units sold 販売戸数 | | 1 units 1戸 | Total units 総戸数 | | 3 units 3戸 | Land area 土地面積 | | 105.68 sq m (31.96 tsubo) (Registration) 105.68m2(31.96坪)(登記) | Building area 建物面積 | | 105.15 sq m (31.80 tsubo) (Registration) 105.15m2(31.80坪)(登記) | Driveway burden-road 私道負担・道路 | | Nothing, Northeast 4m width 無、北東4m幅 | Completion date 完成時期(築年月) | | January 2014 2014年1月 | Address 住所 | | Hiroshima, Hiroshima Prefecture Asaminami Midorii 7 広島県広島市安佐南区緑井7 | Traffic 交通 | | JR Kabe Line "Shichikenjaya" walk 6 minutes JR可部線「七軒茶屋」歩6分
| Person in charge 担当者より | | The person in charge (stock) Juken 担当者(株)住研 | Contact お問い合せ先 | | TEL: 0800-603-3432 [Toll free] mobile phone ・ Also available from PHS Caller ID is not notified Please contact the "saw SUUMO (Sumo)" If it does not lead, If the real estate company TEL:0800-603-3432【通話料無料】携帯電話・PHSからもご利用いただけます 発信者番号は通知されません 「SUUMO(スーモ)を見た」と問い合わせください つながらない方、不動産会社の方は
| Building coverage, floor area ratio 建ぺい率・容積率 | | 60% ・ 200% 60%・200% | Time residents 入居時期 | | Consultation 相談 | Land of the right form 土地の権利形態 | | Ownership 所有権 | Structure and method of construction 構造・工法 | | Wooden three-story 木造3階建 | Use district 用途地域 | | Two mid-high 2種中高 | Other limitations その他制限事項 | | ※ Property information packed Asaminami ☆ [Search in the living Research, Inc.!] ※安佐南区の物件情報満載☆【住研社で検索!】 | Overview and notices その他概要・特記事項 | | The person in charge :( stock) Juken, Facilities: Public Water Supply, This sewage, Building confirmation number: 1334, Parking: car space 担当者:(株)住研、設備:公営水道、本下水、建築確認番号:1334、駐車場:カースペース | Company profile 会社概要 | | <Mediation> Governor of Hiroshima Prefecture (3) No. 008815 (Ltd.) Jukensha Yubinbango731-5136 Hiroshima, Hiroshima Prefecture Saeki-ku Rakurakuen 2-1-30 <仲介>広島県知事(3)第008815号(株)住研社〒731-5136 広島県広島市佐伯区楽々園2-1-30 |
Local appearance photo現地外観写真  November 19, shooting
11月19日撮影
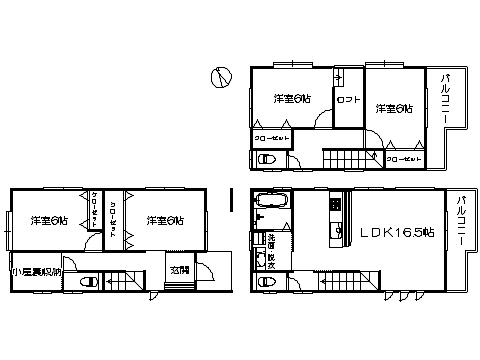
Floor plan間取り図  28,900,000 yen, 4LDK, Land area 105.68 sq m , Building area 105.15 sq m ※ Floor Plan current state priority
2890万円、4LDK、土地面積105.68m2、建物面積105.15m2 ※間取り図現況優先
Local photos, including front road前面道路含む現地写真  September 14, shooting
9月14日撮影
Primary school小学校  Meilin to elementary school 1135m
梅林小学校まで1135m
Junior high school中学校  Shiroyama to North Junior High School 2552m
城山北中学校まで2552m
Location
|