New Homes » Chugoku » Hiroshima » Asaminami


Hiroshima, Hiroshima Prefecture Asaminami
Hiroshima Rapid Transit Astram "Nakasuji" walk 10 minutes
● AL commuting Allowed! ● Super Yours within walking distance
Features pickup
Immediate Available / LDK15 tatami mats or more / Japanese-style room / Shaping land / 2-story / TV monitor interphone / Flat terrain
Event information
(Please be sure to ask in advance)
Price
29,800,000 yen
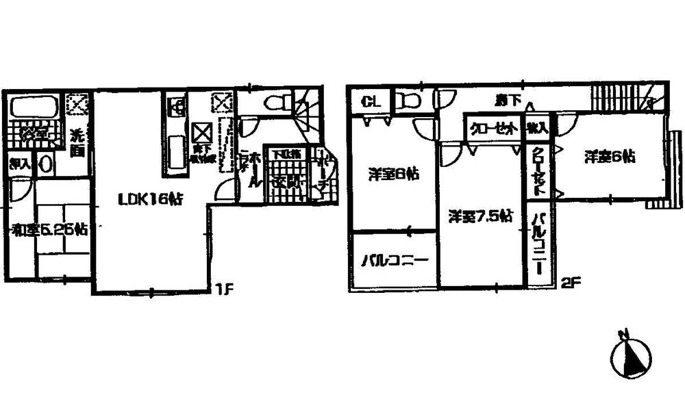
Floor plan
4LDK
Units sold
1 units
Land area
116.18 sq m (35.14 tsubo) (Registration)
Building area
95.98 sq m (29.03 square meters)
Driveway burden-road
Nothing, East 4m width
Completion date
July 2013
Address
Hiroshima, Hiroshima Prefecture Asaminami Sendai 1
Traffic
Hiroshima Rapid Transit Astram "Nakasuji" walk 10 minutes
Person in charge
Rep Mukai
Contact
TEL: 0120-322882 [Toll free] Please contact the "saw SUUMO (Sumo)"
Building coverage, floor area ratio
60% ・ 200%
Time residents
Immediate available
Land of the right form
Ownership
Structure and method of construction
Wooden 2-story
Use district
One dwelling
Overview and notices
Contact: Mukai, Facilities: Public Water Supply, This sewage, City gas, Parking: car space
Company profile
<Mediation> Governor of Hiroshima Prefecture (7) No. 005935 (Ltd.) Fuji real estate sales Yubinbango730-0847 Hiroshima medium Hiroshima District Funairiminami 1-10-20


Floor plan

Floor plan. 29,800,000 yen, 4LDK, Land area 116.18 sq m , Building area 95.98 sq m
29,800,000 yen, 4LDK, Land area 116.18 sq m , Building area 95.98 sq m

Local appearance photo

Local appearance photo. Local (11 May 2013) Shooting
Local (11 May 2013) Shooting

Local appearance photo. Local (11 May 2013) Shooting
Local (11 May 2013) Shooting

Local photos, including front road

Local photos, including front road. Local (11 May 2013) Shooting
Local (11 May 2013) Shooting



Location