New Homes » Chugoku » Hiroshima » Asaminami


Hiroshima, Hiroshima Prefecture Asaminami
Hiroshima Rapid Transit Astram "Andong" walk 10 minutes
◇ ◆ ◇ all-electric in the popularity of energy-saving housing ◆ ◇ ◆ Friendly all-electric home to earth in the household Living moments of family gatherings in the spacious 16 quires ◇ ◆ ◇ ◆ ◇ ◆ ◇ ◆ ◇ ◆ ◇ ◆ ◇ ◆
Two happy also parking ~ I would not mind in the three visitors It is the space of the room!
Features pickup
Parking two Allowed / Immediate Available / 2 along the line more accessible / It is close to golf course / Super close / System kitchen / A quiet residential area / LDK15 tatami mats or more / Around traffic fewer / Corner lot / Japanese-style room / Shaping land / Face-to-face kitchen / Toilet 2 places / The window in the bathroom / Urban neighborhood / Wood deck / IH cooking heater / roof balcony
Price
26.5 million yen
Floor plan
4LDK
Units sold
1 units
Total units
1 units
Land area
164.14 sq m (49.65 square meters)
Building area
108.47 sq m (32.81 square meters)
Driveway burden-road
Nothing, South 4.5m width
Completion date
August 2013
Address
Hiroshima, Hiroshima Prefecture Asaminami Aida 2
Traffic
Hiroshima Rapid Transit Astram "Andong" walk 10 minutes
JR Kabe Line "Omachi" walk 28 minutes
Person in charge
Person in charge of Matsumoto Koji Age: 40 Daigyokai Experience: 10 years spirited 40s of merit. Shy but is my, Thank you so my best my best. Holiday [Suites shop tour] It has a.
Contact
TEL: 0800-805-6299 [Toll free] mobile phone ・ Also available from PHS
Caller ID is not notified
Please contact the "saw SUUMO (Sumo)"
If it does not lead, If the real estate company
Building coverage, floor area ratio
Fifty percent ・ Hundred percent
Land of the right form
Ownership
Structure and method of construction
Wooden 2-story (2 × 4 construction method)
Use district
One low-rise
Other limitations
Residential land development construction regulation area, Shade limit Yes, Corner-cutting Yes
Overview and notices
Contact: Matsumoto Koji, Facilities: Public Water Supply, This sewage, All-electric, Parking: car space
Company profile
<Mediation> Governor of Hiroshima Prefecture (2) No. 009265 (Ltd.) NanaMamoru Estate Yubinbango730-0844 Hiroshima medium Hiroshima District Funairisaiwaicho 9-18


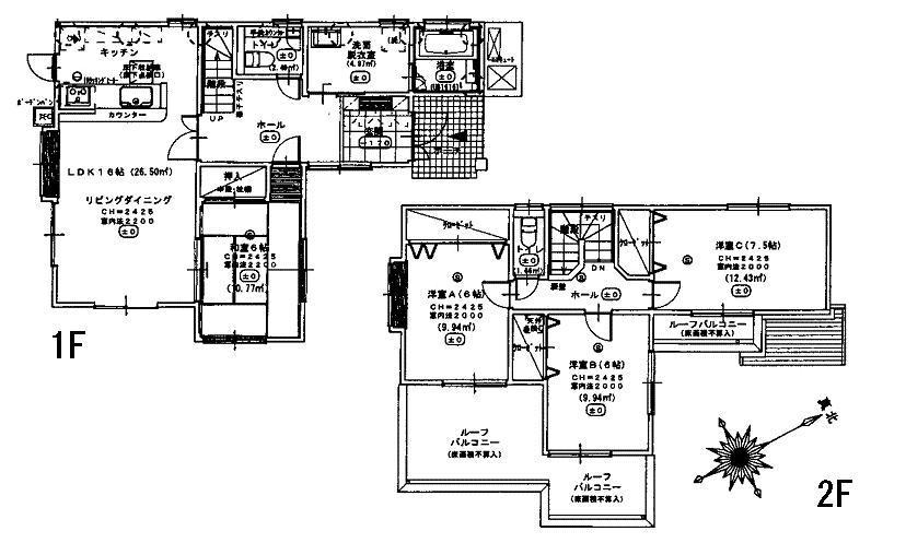
Floor plan

Floor plan. 26.5 million yen, 4LDK, Land area 164.14 sq m , Please check the building area 108.47 sq m spacious plan!
26.5 million yen, 4LDK, Land area 164.14 sq m , Please check the building area 108.47 sq m spacious plan!

Local appearance photo

Local appearance photo. Parking space is also spacious
Parking space is also spacious

Bathroom

Bathroom. Please heal the fatigue of the day
Please heal the fatigue of the day

Living

Living. Large living room can be used by connecting Japanese-style room
Large living room can be used by connecting Japanese-style room

Kitchen

Kitchen. Let's make a delicious cuisine while conversing with family!
Let's make a delicious cuisine while conversing with family!

View photos from the dwelling unit

View photos from the dwelling unit. View full of feeling of freedom is the view from the pride of the roof balcony!
View full of feeling of freedom is the view from the pride of the roof balcony!

Living

Living. Spacious is the living room of 16 quires
Spacious is the living room of 16 quires

Balcony

Balcony. Come Experience the pride of the roof balcony
Come Experience the pride of the roof balcony

Entrance

Entrance. Entrance to greet the customers is the face of the house!
Entrance to greet the customers is the face of the house!



Location