New Homes » Chugoku » Hiroshima » Asaminami
 
| | Hiroshima, Hiroshima Prefecture Asaminami 広島県広島市安佐南区 |
| Hiroshima Rapid Transit Astram "companion" walk 9 minutes 広島高速交通アストラムライン「伴」歩9分 |
| Astram is 3 rooms available all-is-electric homes. 2F of carefree even children in 6 quires more private room ☆ アストラムラインが利用出来るオール電化住宅です2Fの3部屋は6帖以上で子供たちも伸び伸びの個室☆ |
Features pickup 特徴ピックアップ | | Parking three or more possible / LDK18 tatami mats or more / System kitchen / Bathroom Dryer / All room storage / A quiet residential area / Or more before road 6m / Japanese-style room / Washbasin with shower / Face-to-face kitchen / Wide balcony / Toilet 2 places / Bathroom 1 tsubo or more / 2-story / Otobasu / Warm water washing toilet seat / Underfloor Storage / The window in the bathroom / Walk-in closet / All room 6 tatami mats or more / All-electric / All rooms are two-sided lighting 駐車3台以上可 /LDK18畳以上 /システムキッチン /浴室乾燥機 /全居室収納 /閑静な住宅地 /前道6m以上 /和室 /シャワー付洗面台 /対面式キッチン /ワイドバルコニー /トイレ2ヶ所 /浴室1坪以上 /2階建 /オートバス /温水洗浄便座 /床下収納 /浴室に窓 /ウォークインクロゼット /全居室6畳以上 /オール電化 /全室2面採光 | Price 価格 | | 28,900,000 yen 2890万円 | Floor plan 間取り | | 4LDK 4LDK | Units sold 販売戸数 | | 1 units 1戸 | Total units 総戸数 | | 1 units 1戸 | Land area 土地面積 | | 158.75 sq m (48.02 tsubo) (Registration) 158.75m2(48.02坪)(登記) | Building area 建物面積 | | 115.93 sq m (35.06 square meters) 115.93m2(35.06坪) | Driveway burden-road 私道負担・道路 | | Nothing, West 6.4m width 無、西6.4m幅 | Completion date 完成時期(築年月) | | March 2014 2014年3月 | Address 住所 | | Hiroshima, Hiroshima Prefecture Asaminami Chorakuji Temple 3 広島県広島市安佐南区長楽寺3 | Traffic 交通 | | Hiroshima Rapid Transit Astram "companion" walk 9 minutes 広島高速交通アストラムライン「伴」歩9分
| Related links 関連リンク | | [Related Sites of this company] 【この会社の関連サイト】 | Contact お問い合せ先 | | TEL: 082-568-1150 Please inquire as "saw SUUMO (Sumo)" TEL:082-568-1150「SUUMO(スーモ)を見た」と問い合わせください | Building coverage, floor area ratio 建ぺい率・容積率 | | Fifty percent ・ Hundred percent 50%・100% | Time residents 入居時期 | | April 2014 schedule 2014年4月予定 | Land of the right form 土地の権利形態 | | Ownership 所有権 | Structure and method of construction 構造・工法 | | Wooden 2-story 木造2階建 | Use district 用途地域 | | One low-rise 1種低層 | Overview and notices その他概要・特記事項 | | Facilities: Public Water Supply, This sewage, All-electric, Building confirmation number: 02294, Parking: car space 設備:公営水道、本下水、オール電化、建築確認番号:02294、駐車場:カースペース | Company profile 会社概要 | | <Mediation> Governor of Hiroshima Prefecture (1) No. 010121 bamboo Corporation (Corporation) Yubinbango732-0817 Hiroshima, Hiroshima Prefecture, Minami-ku, Hijiyama cho 4-11 <仲介>広島県知事(1)第010121号竹コーポレーション(株)〒732-0817 広島県広島市南区比治山町4-11 |
 Local photos, including front road
前面道路含む現地写真
 Local photos, including front road
前面道路含む現地写真
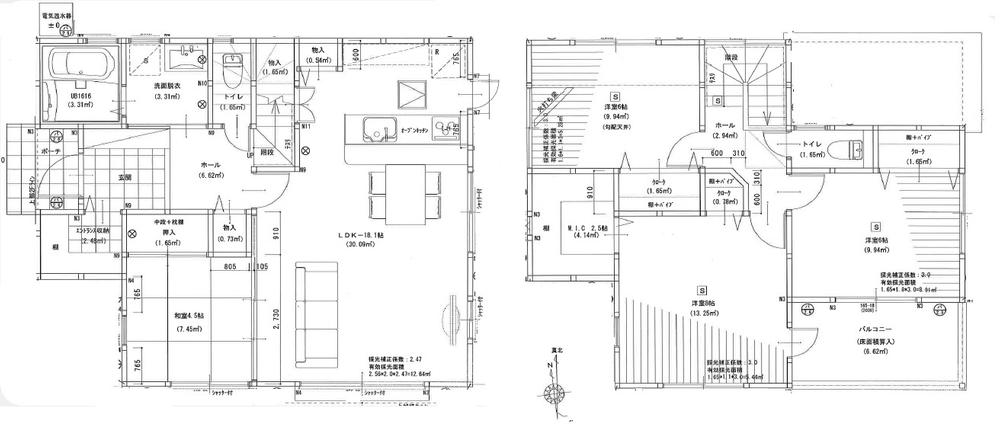
Floor plan間取り図  28,900,000 yen, 4LDK, Land area 158.75 sq m , Building area 115.93 sq m
2890万円、4LDK、土地面積158.75m2、建物面積115.93m2
Rendering (appearance)完成予想図(外観)  West side elevational view
西側立面図
Shopping centreショッピングセンター  808m to the Fashion Center Shimamura Chorakuji Temple shop
ファッションセンターしまむら長楽寺店まで808m
Rendering (appearance)完成予想図(外観)  South side elevational view
南側立面図
Supermarketスーパー  1165m until the Big House Numata shop
ビッグハウス沼田店まで1165m
Rendering (appearance)完成予想図(外観)  East side elevational view
東側立面図
Supermarketスーパー  1251m ten thousand Sou Takatori shop
万惣高取店まで1251m
Rendering (appearance)完成予想図(外観)  North side elevational view
北側立面図
Convenience storeコンビニ  854m until Lawson Hiroshima Numatachotomo shop
ローソン広島沼田町伴店まで854m
Drug storeドラッグストア  Hearty Wants to Chorakuji Temple shop 959m
ハーティウォンツ長楽寺店まで959m
Home centerホームセンター  1159m until EDION Numata shop
エディオン沼田店まで1159m
 Ho Mupurazanafuko Numata 931m to shop
ホームプラザナフコ沼田店まで931m
Junior high school中学校  1930m to Hiroshima Municipal Anzai junior high school
広島市立安西中学校まで1930m
Primary school小学校  1911m to Hiroshima Municipal Anzai Elementary School
広島市立安西小学校まで1911m
Location
|