New Homes » Chugoku » Hiroshima » Asaminami


Hiroshima, Hiroshima Prefecture Asaminami
Hiroshima Rapid Transit Astram "Nakasuji" walk 10 minutes
Event information
Open House Schedule / Every Saturday, Sunday and public holidays
Price
29,800,000 yen
Floor plan
4LDK
Units sold
1 units
Total units
1 units
Land area
116.18 sq m
Building area
95.98 sq m
Driveway burden-road
Nothing, East 4m width
Completion date
July 2013
Address
Hiroshima, Hiroshima Prefecture Asaminami Sendai 1
Traffic
Hiroshima Rapid Transit Astram "Nakasuji" walk 10 minutes
Related links
[Related Sites of this company]
Person in charge
It helps the person in charge real-estate and building Yoshiyuki Fujinaka house building has been collecting a lot of information and, if possible. Order from looking for land housing ・ Houses built for sale ・ Assessment, etc. of the dwelling, It is what the please consult.
Contact
TEL: 0800-603-3620 [Toll free] mobile phone ・ Also available from PHS
Caller ID is not notified
Please contact the "saw SUUMO (Sumo)"
If it does not lead, If the real estate company
Building coverage, floor area ratio
60% ・ 200%
Time residents
Consultation
Land of the right form
Ownership
Structure and method of construction
Wooden 2-story (framing method)
Use district
One dwelling
Overview and notices
Contact: Yoshiyuki Fujinaka, Facilities: Public Water Supply, This sewage, City gas, Parking: car space
Company profile
<Mediation> Governor of Hiroshima Prefecture (6) Article 006948 No. cosmid Real Estate Co., Ltd. Yubinbango733-0002 Hiroshima, Hiroshima Prefecture, Nishi-ku, Kusunoki-cho, 1-13-11


Local appearance photo
Local appearance photo

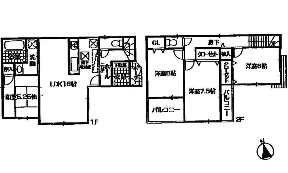
Floor plan

Floor plan. 29,800,000 yen, 4LDK, Land area 116.18 sq m , Building area 95.98 sq m
29,800,000 yen, 4LDK, Land area 116.18 sq m , Building area 95.98 sq m

Living
Living

Bathroom
Bathroom

Kitchen
Kitchen

Balcony
Balcony

Other
Other

Other
Other

Other
Other



Location