|
|
Hiroshima, Hiroshima Prefecture Asaminami
広島県広島市安佐南区
|
|
Bus "first Takatori housing complex" walk 5 minutes
バス「第一高取団地」歩5分
|
|
Elementary school nearby Flat 35S All-electric Cute LOW-E pair glass Shoes cloak With loft High class specification Good per sun Parallel parking two Allowed Astram Takatori Station
小学校至近 フラット35S オール電化 エコキュート LOW-Eペアガラス シューズクローク ロフト付 ハイクラス仕様 陽当たり良好 並列駐車2台可 アストラムライン高取駅
|
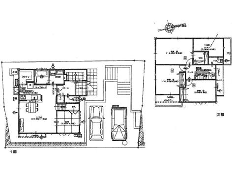
Features pickup 特徴ピックアップ | | Parking two Allowed / Toilet 2 places / 2-story / Double-glazing / loft / Walk-in closet / All-electric 駐車2台可 /トイレ2ヶ所 /2階建 /複層ガラス /ロフト /ウォークインクロゼット /オール電化 |
Price 価格 | | 28.5 million yen 2850万円 |
Floor plan 間取り | | 4LDK 4LDK |
Units sold 販売戸数 | | 1 units 1戸 |
Land area 土地面積 | | 172.9 sq m (52.30 tsubo) (Registration) 172.9m2(52.30坪)(登記) |
Building area 建物面積 | | 108.69 sq m (32.87 tsubo) (Registration) 108.69m2(32.87坪)(登記) |
Driveway burden-road 私道負担・道路 | | Nothing, East 6.3m width (contact the road width 16m) 無、東6.3m幅(接道幅16m) |
Completion date 完成時期(築年月) | | December 2013 2013年12月 |
Address 住所 | | Hiroshima, Hiroshima Prefecture Asaminami Takatorikita 1 広島県広島市安佐南区高取北1 |
Traffic 交通 | | Bus "first Takatori housing complex" walk 5 minutes バス「第一高取団地」歩5分 |
Person in charge 担当者より | | The person in charge (stock) Juken 担当者(株)住研 |
Contact お問い合せ先 | | TEL: 0800-603-3432 [Toll free] mobile phone ・ Also available from PHS Caller ID is not notified Please contact the "saw SUUMO (Sumo)" If it does not lead, If the real estate company TEL:0800-603-3432【通話料無料】携帯電話・PHSからもご利用いただけます 発信者番号は通知されません 「SUUMO(スーモ)を見た」と問い合わせください つながらない方、不動産会社の方は
|
Building coverage, floor area ratio 建ぺい率・容積率 | | Fifty percent ・ Hundred percent 50%・100% |
Time residents 入居時期 | | Consultation 相談 |
Land of the right form 土地の権利形態 | | Ownership 所有権 |
Structure and method of construction 構造・工法 | | Wooden 2-story 木造2階建 |
Use district 用途地域 | | One low-rise 1種低層 |
Overview and notices その他概要・特記事項 | | The person in charge :( stock) Juken, Facilities: Public Water Supply, This sewage, Building confirmation number: Se 01075, Parking: car space 担当者:(株)住研、設備:公営水道、本下水、建築確認番号:セ01075、駐車場:カースペース |
Company profile 会社概要 | | <Mediation> Governor of Hiroshima Prefecture (3) No. 008815 (Ltd.) Jukensha Yubinbango731-5136 Hiroshima, Hiroshima Prefecture Saeki-ku Rakurakuen 2-1-30 <仲介>広島県知事(3)第008815号(株)住研社〒731-5136 広島県広島市佐伯区楽々園2-1-30 |