New Homes » Chugoku » Hiroshima » Higashi-ku


Hiroshima, Hiroshima Prefecture, Higashi-ku,
JR Geibi Line "Akiyaguchi" walk 98 minutes
■ View good with on a hill! It has well-equipped access environment rich in convenience.
Features pickup
Parking two Allowed / LDK18 tatami mats or more / System kitchen / All room storage / A quiet residential area / Around traffic fewer / Japanese-style room / Face-to-face kitchen / 2-story
Price
21.5 million yen
Floor plan
4LDK
Units sold
1 units
Total units
1 units
Land area
158.75 sq m (48.02 square meters)
Building area
103.5 sq m (31.30 square meters)
Driveway burden-road
Nothing, Northwest 6.7m width (contact the road width 15m)
Completion date
February 2014
Address
Hiroshima, Hiroshima Prefecture, Higashi-ku, Umaki 3
Traffic
JR Geibi Line "Akiyaguchi" walk 98 minutes
JR Geibi Line "Noctuidae" walk 73 minutes
JR Geibi Line "Nakafukawa" walk 79 minutes
Contact
(Ltd.) trust one TEL: 082-297-2227 Please inquire as "saw SUUMO (Sumo)"
Building coverage, floor area ratio
60% ・ Hundred percent
Time residents
February 2014 schedule
Land of the right form
Ownership
Structure and method of construction
Wooden 2-story
Construction
(Ltd.) Totate housing
Use district
One low-rise
Overview and notices
Building confirmation number: No. H25 認広 Kense 00854
Company profile
<Mediation> Governor of Hiroshima Prefecture (1) No. 010126 (Ltd.) trust one Yubinbango733-0022 Hiroshima, Hiroshima Prefecture, Nishi-ku Tenma-cho, 6-1


Floor plan

Floor plan. 21.5 million yen, 4LDK, Land area 158.75 sq m , Building area 103.5 sq m 1 floor
21.5 million yen, 4LDK, Land area 158.75 sq m , Building area 103.5 sq m 1 floor

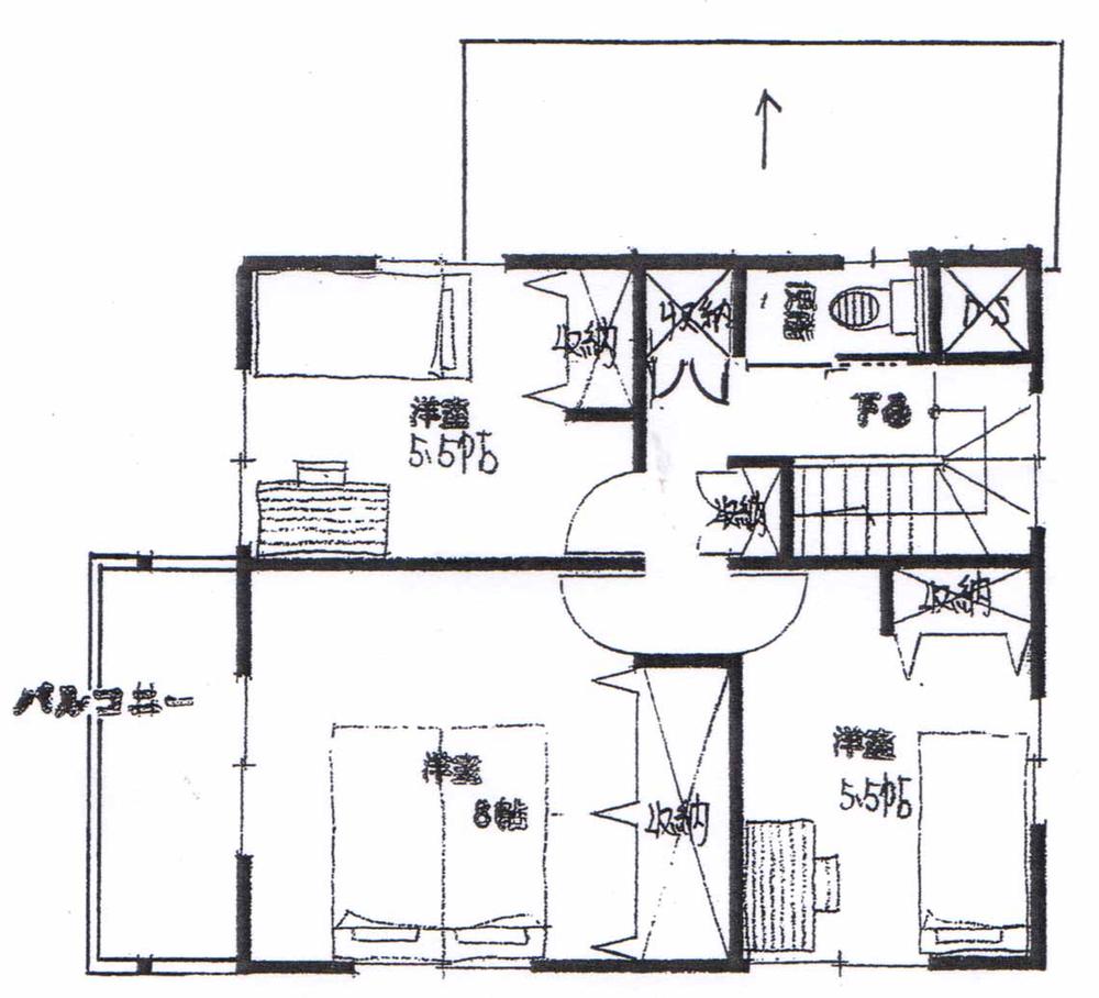
Floor plan. 21.5 million yen, 4LDK, Land area 158.75 sq m , Building area 103.5 sq m 2 floor
21.5 million yen, 4LDK, Land area 158.75 sq m , Building area 103.5 sq m 2 floor

Other local

Other local. Local (July 2013) Shooting
Local (July 2013) Shooting

Other local. Local (July 2013) Shooting
Local (July 2013) Shooting

Other local. Local (July 2013) Shooting
Local (July 2013) Shooting

Other local. Local (July 2013) Shooting
Local (July 2013) Shooting



Location