New Homes » Chugoku » Hiroshima » Minami-ku
 
| | Hiroshima, Hiroshima Prefecture, Minami-ku, 広島県広島市南区 |
| JR Sanyo Line "Koyo" walk 4 minutes JR山陽本線「向洋」歩4分 |
| 2-story, Flat to the station, Flat terrain 2階建、駅まで平坦、平坦地 |
Features pickup 特徴ピックアップ | | Parking two Allowed / Flat to the station / Around traffic fewer / Toilet 2 places / 2-story / Flat terrain 駐車2台可 /駅まで平坦 /周辺交通量少なめ /トイレ2ヶ所 /2階建 /平坦地 | Price 価格 | | 38,500,000 yen 3850万円 | Floor plan 間取り | | 3LDK 3LDK | Units sold 販売戸数 | | 1 units 1戸 | Total units 総戸数 | | 1 units 1戸 | Land area 土地面積 | | 131.76 sq m (registration) 131.76m2(登記) | Building area 建物面積 | | 96.06 sq m 96.06m2 | Driveway burden-road 私道負担・道路 | | Nothing, West 7.6m width, East 2.5m width 無、西7.6m幅、東2.5m幅 | Completion date 完成時期(築年月) | | May 2014 2014年5月 | Address 住所 | | Hiroshima, Hiroshima Prefecture, Minami-ku, Aosaki 1 広島県広島市南区青崎1 | Traffic 交通 | | JR Sanyo Line "Koyo" walk 4 minutes JR Sanyo Line "god river" walk 26 minutes JR Sanyo Line "Kaita City" walk 31 minutes JR山陽本線「向洋」歩4分 JR山陽本線「天神川」歩26分 JR山陽本線「海田市」歩31分
| Person in charge 担当者より | | Rep Onogawa 担当者小野川 | Contact お問い合せ先 | | (Ltd.) Say Aye support TEL: 0800-603-9175 [Toll free] mobile phone ・ Also available from PHS Caller ID is not notified Please contact the "saw SUUMO (Sumo)" If it does not lead, If the real estate company (株)セイエイサポートTEL:0800-603-9175【通話料無料】携帯電話・PHSからもご利用いただけます 発信者番号は通知されません 「SUUMO(スーモ)を見た」と問い合わせください つながらない方、不動産会社の方は
| Building coverage, floor area ratio 建ぺい率・容積率 | | 60% ・ 200% 60%・200% | Land of the right form 土地の権利形態 | | Ownership 所有権 | Structure and method of construction 構造・工法 | | Wooden 2-story (framing method) 木造2階建(軸組工法) | Use district 用途地域 | | Semi-industrial 準工業 | Overview and notices その他概要・特記事項 | | Contact: Onogawa, Facilities: Public Water Supply, This sewage, City gas, Building confirmation number: 1553, Parking: car space 担当者:小野川、設備:公営水道、本下水、都市ガス、建築確認番号:1553、駐車場:カースペース | Company profile 会社概要 | | <Mediation> Governor of Hiroshima Prefecture (2) No. 009445 (Ltd.) Say Aye support Yubinbango735-0006 Hiroshima Prefecture Fuchu-cho, Aki-gun, Honcho 1-13-6 Omine building <仲介>広島県知事(2)第009445号(株)セイエイサポート〒735-0006 広島県安芸郡府中町本町1-13-6 大峰ビル |
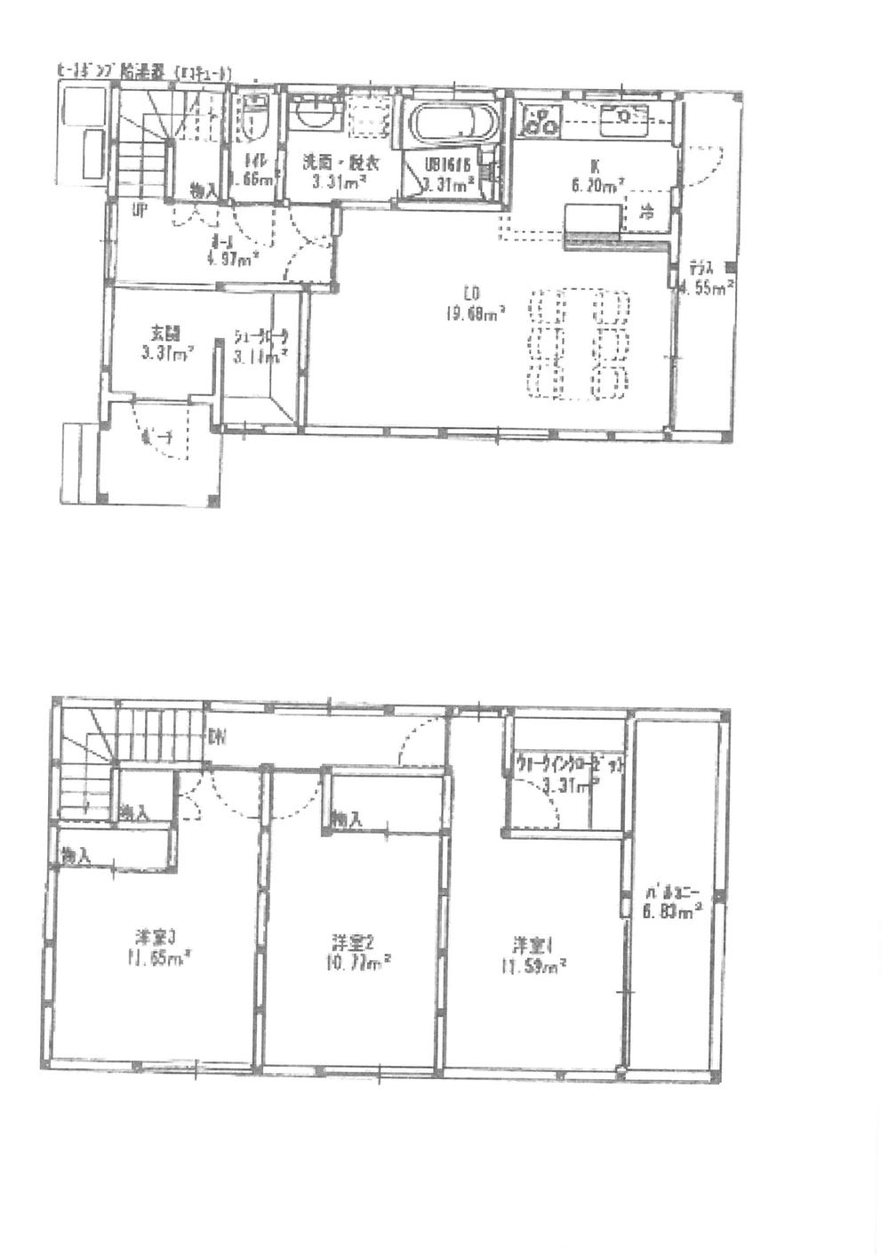
Floor plan間取り図  38,500,000 yen, 3LDK, Land area 131.76 sq m , Building area 96.06 sq m
3850万円、3LDK、土地面積131.76m2、建物面積96.06m2
Local photos, including front road前面道路含む現地写真  Local (12 May 2013) Shooting
現地(2013年12月)撮影
Local appearance photo現地外観写真  Local (12 May 2013) Shooting
現地(2013年12月)撮影
 Local (12 May 2013) Shooting
現地(2013年12月)撮影
Location
|