|
|
Hiroshima, Hiroshima Prefecture, Nishi-ku,
広島県広島市西区
|
|
JR Sanyo Line "west Hiroshima" walk 9 minutes
JR山陽本線「西広島」歩9分
|
|
Also available on-site is a spacious all-electric homes JR
敷地広々のオール電化住宅ですJRも利用できます
|
Features pickup 特徴ピックアップ | | Land 50 square meters or more / System kitchen / All room storage / A quiet residential area / LDK15 tatami mats or more / Japanese-style room / Washbasin with shower / Face-to-face kitchen / Toilet 2 places / Bathroom 1 tsubo or more / 2-story / 2 or more sides balcony / Zenshitsuminami direction / The window in the bathroom / IH cooking heater / All-electric 土地50坪以上 /システムキッチン /全居室収納 /閑静な住宅地 /LDK15畳以上 /和室 /シャワー付洗面台 /対面式キッチン /トイレ2ヶ所 /浴室1坪以上 /2階建 /2面以上バルコニー /全室南向き /浴室に窓 /IHクッキングヒーター /オール電化 |
Price 価格 | | 26,800,000 yen 2680万円 |
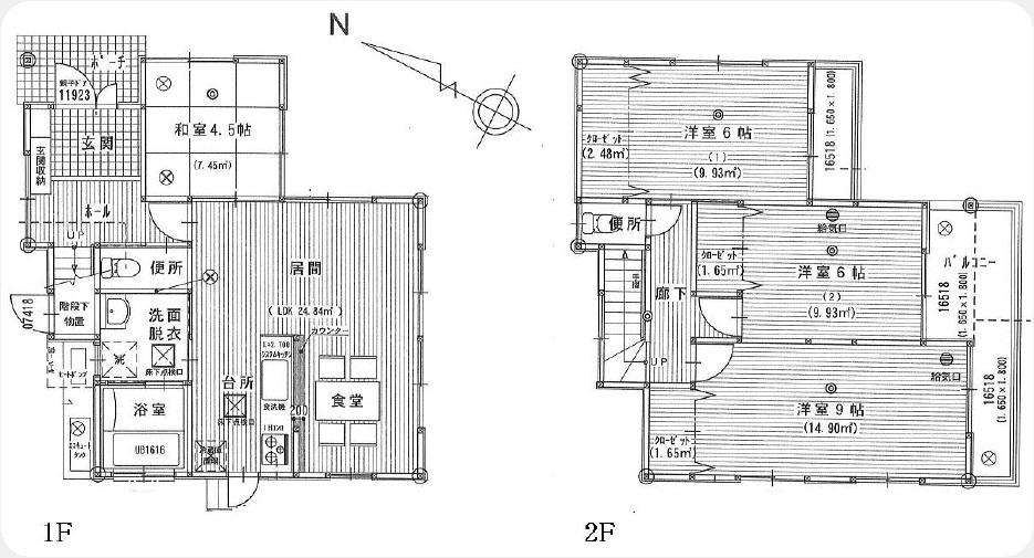
Floor plan 間取り | | 4LDK 4LDK |
Units sold 販売戸数 | | 1 units 1戸 |
Land area 土地面積 | | 267.82 sq m (81.01 tsubo) (Registration) 267.82m2(81.01坪)(登記) |
Building area 建物面積 | | 97.7 sq m (29.55 square meters) 97.7m2(29.55坪) |
Driveway burden-road 私道負担・道路 | | Nothing, Southeast 3.7m width 無、南東3.7m幅 |
Completion date 完成時期(築年月) | | December 2013 2013年12月 |
Address 住所 | | Hiroshima, Hiroshima Prefecture, Nishi-ku, Koinaka 2 広島県広島市西区己斐中2 |
Traffic 交通 | | JR Sanyo Line "west Hiroshima" walk 9 minutes Bus "Itopia entrance" walk 3 minutes JR山陽本線「西広島」歩9分 バス「イトーピア入口」歩3分 |
Related links 関連リンク | | [Related Sites of this company] 【この会社の関連サイト】 |
Contact お問い合せ先 | | TEL: 082-568-1150 Please inquire as "saw SUUMO (Sumo)" TEL:082-568-1150「SUUMO(スーモ)を見た」と問い合わせください |
Building coverage, floor area ratio 建ぺい率・容積率 | | Fifty percent ・ Hundred percent 50%・100% |
Time residents 入居時期 | | January 2014 2014年1月 |
Land of the right form 土地の権利形態 | | Ownership 所有権 |
Structure and method of construction 構造・工法 | | Wooden 2-story 木造2階建 |
Use district 用途地域 | | One low-rise 1種低層 |
Overview and notices その他概要・特記事項 | | Facilities: Public Water Supply, This sewage, All-electric, Building confirmation number: 00082, Parking: car space 設備:公営水道、本下水、オール電化、建築確認番号:00082、駐車場:カースペース |
Company profile 会社概要 | | <Mediation> Governor of Hiroshima Prefecture (1) No. 010121 bamboo Corporation (Corporation) Yubinbango732-0817 Hiroshima, Hiroshima Prefecture, Minami-ku, Hijiyama cho 4-11 <仲介>広島県知事(1)第010121号竹コーポレーション(株)〒732-0817 広島県広島市南区比治山町4-11 |