New Homes » Chugoku » Hiroshima » Nishi-ku
 
| | Hiroshima, Hiroshima Prefecture, Nishi-ku, 広島県広島市西区 |
| Bus "Koinaka school entrance" walk 6 minutes バス「己斐中学校入口」歩6分 |
| Koi Kyoritsu quiet corner lot in the Heights ☆ 己斐共立ハイツ内の静かな角地☆ |
| High fever cost saving life in the all-electric homes ☆ Welcome you in a neat entrance of the large storage installation ☆ オール電化住宅で高熱費節約生活☆大型収納設置のすっきりとした玄関でお客様をお出迎え☆ |
Features pickup 特徴ピックアップ | | Parking two Allowed / System kitchen / A quiet residential area / Corner lot / Face-to-face kitchen / Barrier-free / Toilet 2 places / 2-story / Southeast direction / Warm water washing toilet seat / TV monitor interphone / IH cooking heater / Dish washing dryer / All-electric 駐車2台可 /システムキッチン /閑静な住宅地 /角地 /対面式キッチン /バリアフリー /トイレ2ヶ所 /2階建 /東南向き /温水洗浄便座 /TVモニタ付インターホン /IHクッキングヒーター /食器洗乾燥機 /オール電化 | Price 価格 | | 27,800,000 yen 2780万円 | Floor plan 間取り | | 4LDK 4LDK | Units sold 販売戸数 | | 1 units 1戸 | Total units 総戸数 | | 1 units 1戸 | Land area 土地面積 | | 147.92 sq m (44.74 tsubo) (Registration) 147.92m2(44.74坪)(登記) | Building area 建物面積 | | 104.75 sq m (31.68 tsubo) (Registration) 104.75m2(31.68坪)(登記) | Driveway burden-road 私道負担・道路 | | Nothing 無 | Completion date 完成時期(築年月) | | November 2013 2013年11月 | Address 住所 | | Hiroshima, Hiroshima Prefecture, Nishi-ku, Koiue 2 広島県広島市西区己斐上2 | Traffic 交通 | | Bus "Koinaka school entrance" walk 6 minutes バス「己斐中学校入口」歩6分 | Person in charge 担当者より | | The person in charge (stock) Juken 担当者(株)住研 | Contact お問い合せ先 | | TEL: 0800-603-3432 [Toll free] mobile phone ・ Also available from PHS Caller ID is not notified Please contact the "saw SUUMO (Sumo)" If it does not lead, If the real estate company TEL:0800-603-3432【通話料無料】携帯電話・PHSからもご利用いただけます 発信者番号は通知されません 「SUUMO(スーモ)を見た」と問い合わせください つながらない方、不動産会社の方は
| Building coverage, floor area ratio 建ぺい率・容積率 | | Fifty percent ・ Hundred percent 50%・100% | Time residents 入居時期 | | Consultation 相談 | Land of the right form 土地の権利形態 | | Ownership 所有権 | Structure and method of construction 構造・工法 | | Wooden 2-story 木造2階建 | Use district 用途地域 | | One low-rise 1種低層 | Overview and notices その他概要・特記事項 | | The person in charge :( stock) Juken, Facilities: Public Water Supply, This sewage, Building confirmation number: 4568, Parking: car space 担当者:(株)住研、設備:公営水道、本下水、建築確認番号:4568、駐車場:カースペース | Company profile 会社概要 | | <Seller> Governor of Hiroshima Prefecture (3) No. 008815 (Ltd.) Jukensha Yubinbango731-5136 Hiroshima, Hiroshima Prefecture Saeki-ku Rakurakuen 2-1-30 <売主>広島県知事(3)第008815号(株)住研社〒731-5136 広島県広島市佐伯区楽々園2-1-30 |
Local appearance photo現地外観写真  November 21, shooting
11月21日撮影
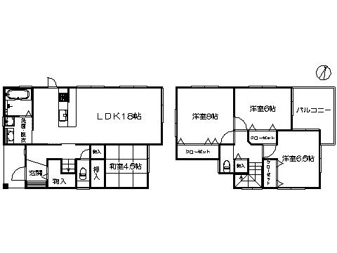
Floor plan間取り図  27,800,000 yen, 4LDK, Land area 147.92 sq m , Building area 104.75 sq m ※ Floor Plan current state priority
2780万円、4LDK、土地面積147.92m2、建物面積104.75m2 ※間取り図現況優先
Local appearance photo現地外観写真  November 21, shooting
11月21日撮影
 Same specifications photos (living)
同仕様写真(リビング)
 Same specifications photo (bathroom)
同仕様写真(浴室)
 Same specifications photo (kitchen)
同仕様写真(キッチン)
 Non-living room
リビング以外の居室
Entrance玄関  November 21, shooting
11月21日撮影
 Wash basin, toilet
洗面台・洗面所
 Receipt
収納
 Toilet
トイレ
Convenience storeコンビニ  FamilyMart Koiue 524m up to two-chome
ファミリーマート 己斐上二丁目店まで524m
Otherその他  Balcony
バルコニー
 Entrance
玄関
Drug storeドラッグストア  Wants Until Koiue shop 666m
ウォンツ 己斐上店まで666m
Junior high school中学校  Koinaka 394m to school
己斐中学校まで394m
Supermarketスーパー  Furesuta Until Koiue shop 726m
フレスタ 己斐上店まで726m
Primary school小学校  Koi to elementary school 1165m
己斐小学校まで1165m
Supermarketスーパー  Pure Cook Until Koiue shop 1840m
ピュアークック 己斐上店まで1840m
Shopping centreショッピングセンター  Izumi Until Koi shop 1845m
イズミ 己斐店まで1845m
Location
|